Byt z 30. let v pražských Holešovicích má svého nového majitele. Samotný prostor se nachází v činžovním domě a je součástí bloku bytových domů v klidné části Prahy. Klient začal svou spolupráci s 0,5 Studiem již při konzultacích o koupi tohoto bytu. Když se nakonec rozhodl investovat do koupě, svěřil interiér právě architektům Pavlu Novotnému a Vítu Svobodovi z 0,5 Studia.

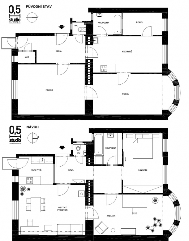
Přáním investora bylo především přizpůsobit prostory předmětům, které si do bytu přestěhuje on sám, a zároveň zachovat původní atmosféru místa. Požadavky na dispozice byly následující - vytvoření pohodlných obytných prostor s kuchyní, ložnicí a ateliérem, který by měl v budoucnu posloužit jako dětský pokojík. Architekti začali právě tímto přehodnocením původních prostor a pustili se do rekonstrukce. První změnou prošla kuchyně s obytnou místností, která byla přemístěna do prostor orientovaných na jih, a stala se tak příjemným prosluněným místem. Následovalo další zjednodušení dispozic, díky kterému na sebe místnosti logicky navázaly.

V obytné místnosti, ateliéru i ložnici byla zachována původní podlaha tvořená smrkovými prkny. Prkna byla pouze zbroušena a ošetřena bílým voskem. Pro zachování autenticity byly přiznány tmavé spáry a ani drobné nerovnosti nejsou v tomto případě chybou řemeslníků. Celý byt prostoupila bílá barva a záře denního světla, která je v obslužných místnostech narušena výrazným geometrickým obkladem. Dlaždice z Los Kachlos se stávají dominantním prvkem interiéru, proto je nábytek a vybavení voleno jen velmi jednoduché. Například všechna stropní osvětlení majitel pořídil dobová, aby byla atmosféra rekonstrukce kompletní.



Šedá kuchyňská linka navazuje na barevnost dekoru a svým jednoduchým tvarem ho nijak nenarušuje. Z kuchyně je přístup rovněž na malý balkon, skrze jeho dveře prostupuje na pracovní plochu dostatek světla. Hned naproti je umístěna makrolonová stěna, která je schopna část tohoto záření propustit až do vstupní haly. Ta je tak částečně osvícena denním světlem, aniž by se v této středové místnosti nacházelo okno. Když se setmí, ozáří kuchyni diodové světlo nad ostrůvkem, které architekti pro prostor navrhli na míru.

Prosluněný ateliér se stal domovem několika květinám a pár kusům nábytku. Bílou místnost zde narušují jen různobarevné prvky, stejně jako je tomu v obytné části. Autoři sami dodávají: „Naším cílem bylo obnovit starší prvky bytu a vytvořit neutrální prostředí, které by se nabízelo jako prostor pro zabydlení“. Místnosti se tak stávají doslova bílým pozadím, které slouží různobarevným předmětům a především jejich uživateli.


Ložnice vznikla propojením dvou původních místností, konkrétně kuchyně a malého pokoje pro služebnou. Do této místnosti se vchází posuvnými dveřmi, které nikterak nenarušují prostor a ráz jednoduché ložnice. Kromě postele a dvou poliček, zde nalezneme také vestavěnou skříň podél celé protější stěny. Vybavení ložnice navazuje na koncept modrých stolů umístěných po celém bytě, které architekti zkombinovali z původních podnoží a desek na míru vyrobených.


Koupelna byla proti původnímu dispozičnímu řešení zvětšena a taktéž zčásti pokryta geometrickými obklady modrošedé barvy. Původní okno dovoluje prostoupit přirozenému světlu, které je v koupelně tolik žádoucí. Četnost hranatých a ostrých tvarů narušuje pouze použité zaoblené zrcadlo spolu se svítidlem. K ohřevu vody majiteli slouží kotel, který byste v koupelně nalezli jen po důkladném bádání. Architekti ho rafinovaně ukryli do bílé vestavěné skříně na míru. Stejným způsobem si poradili taktéž s pračkou.


Jestliže si nový majitel bytu přál vytvořit prostředí, které bude poskytovat dostatek volnosti pro jeho předměty a doplňky, dozajista dnes spokojeně bydlí. Čisté prostory žijí ze své původní podstaty a funkce. Prosvětlené místnosti obohacené o geometrický obklad jistě učarují nejedné návštěvě.

Jaký je Váš názor?

Autor:
Přidejte se k Insidecor komunitě...
Insidecor
Insidecor na Instagramu