Zkombinovat zájmy otce a syna není nic jednoduchého. Přesto se to pařížskému studiu Glenn Medioni podařilo v případě rekonstrukce bytu Buttes Chaumont, který je umístěn v blízkosti centra francouzské metropole. Díky veselým barevným kombinacím a elegantnímu uspořádání nepostrádá bydlení přitažlivost pro potomka, ani pro rodiče.
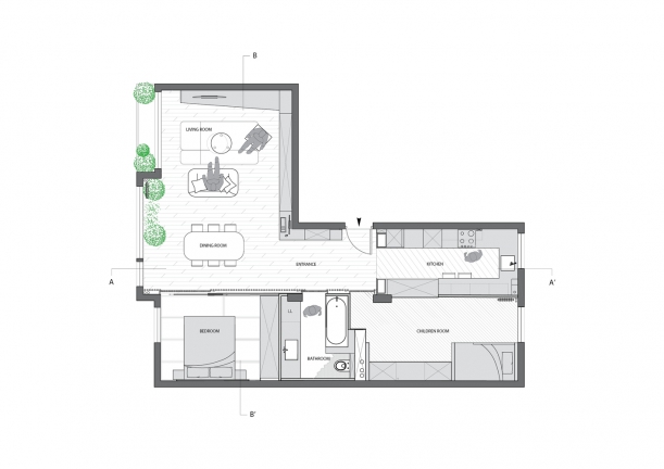
Půdorys o velikosti 73 m2 má tvar písmene L. Vstupní část je umístěna tak, aby z ní bylo možné vejít do většiny pokojů – kuchyně, dětského pokoje, koupelny nebo ložnice a nakonec přirozeně přechází v jídelnu s obývacím prostorem.


Kuchyně je tvořena bílou plochou kuchyňských skříněk a tmavými masivními parketami, které plynule navazují na světlejší podlahu obývacího pokoje. Bělost pracovní plochy pak dokresluje šedá boční stěna s oknem, ze kterého sem proudí dostatek denního světla pro vaření všemožných pokrmů.

Nalevo od místnosti určené k vaření objevíme vstup do rohového dětského pokoje ukrytý v obložené stěně, která dělí intimní prostory pokojů obou obyvatel od těch společně sdílených. Samotná místnost poskytuje nejmladšímu členovi domácnosti plochu plnou interakce a hravosti. Také slouží k více účelům – chlapec si zde může hrát, učit se nebo si třeba číst na sedacím pytli. Veselost sem kromě nábytku vnáší hlavně použití různorodých barev, které dohromady tvoří kreativní zázemí pro dítě – barevné schéma se skládá převážně z bílé, žluté a modré. Sem spadá i hravé linoleum vytvořené ze žlutobílých pruhů, které je nejen originální, ale i odolné vůči případnému poničení.


Postel je řešena podobně jako u lodní kajuty – musí se do ní vyšplhat po žebříku.

Prostor osvěžují i vestavěné poličky jasně žluté barvy, které slouží jako důstojný rám pro menší hračky.
Hned vedle dětského království se nachází koupelna, která je řešena vyloženě jako mužská záležitost – dominují jí totiž tmavé stěny a strohé osvětlení. Dřevěně skříňky a ledabyle rozsypané bílé hexagonové dlaždičky na podlaze sem pak vnáší extra porci elegance, potřebné hřejivosti a jsou vlastní interpretací dospělé hravosti.



Dveře do koupelny a ostatních místností se liší od okolní stěny svou kompozicí ve směru úhlopříček.
Za koupelnou leží otcova ložnice, která je obdobně jako předešlá místnost charakteristická jednoduchým a noblesním zařízením. Proto zde najdeme pouze základní vybavení: postel a velkou šatní skříň. Díky ladění do modré barvy však nepostrádá šmrnc či eleganci a statečně se tak vyrovnává s nepřítomností oken.


Designéři šikovně využili dřevěného obložení i k zakrytí pevných posuvných dveří nacházejících se přímo za laťkami. Ty zajišťují dostatek soukromí i zvukovou izolaci.
Žlutobílá nástěnná knihovna udává tón obývacímu pokoji a stává se i spojovacím prvkem bytu – podobnoé odstíny nalézáme třeba i v dětské místnosti. Světlou kombinaci pak dolaďují šedé tóny na stěnách a některých kusech nábytku.




Šedá barva dominuje i jídelní části, a to v případě židlí i závěsných lamp Copenhagen od dánského studia Space Copenhagen. Tvarem mohou připomínat námořní svítilny a jejich světlo působí harmonicky s dřevěným pozadím, které vytváří nejdelší stěna bytu obložená různě umístěnými laťkami. Dostatek světla sem pak přináší prostorná okna po straně a prosklené dveře na balkón, který poskytuje venkovní útočiště i v okolí městského ruchu.



Něco pro otce i něco pro syna. To splnili architekti z pařížského studia převážně díky funkčnímu rozdělení ložnic a koupelny od zbylé části bytu – dřevem obložená stěna dominuje objektu a svou délkou vytváří hřejivé pozadí viditelné ze všech jeho zákoutí. Osvěžující barevné kombinace s ní pak příjemně kontrastují a dohromady tak tvoří veselý prostor k životu.
Jaký je Váš názor?
Související články

House AB: Úspěšná renovace díky zachování starého a přidání nového
Byt od studia YCL by mohl být vzorem francouzského luxusního bytu
Byt vytvořený na míru gentlemanovi
Elegantní loft ateliéru Cakov and Partners
Byt jako jeden velký večírek
Autor:
Přidejte se k Insidecor komunitě...
Insidecor
Insidecor na Instagramu