Ostrov Skiathos si i přes svou stále vzrůstající popularitu dokázal prozatím udržet přirozenou krásu tkvící především v panenské přírodě. Uprostřed typicky řecké krajiny se ale nachází moderně pojatý rezidenčí objekt K-studia, který se na toto místo navázal svým specifickým způsobem. Léto na řeckých ostrovech je jako stvořené pro pobyty na slunci, celá koncepce tak propojuje vnitřní prostory s vnějšími a snaží se maximalizovat výhody obou prostorů.
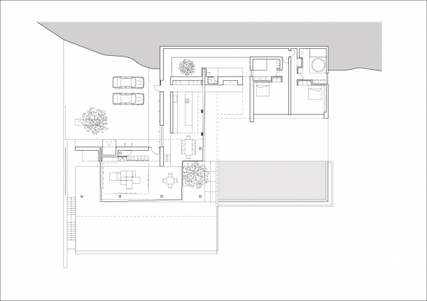
Obytný objekt si v žádném případě netvoří nároky na dominanci či narušení prostoru plného zeleně. Horizontální linie a celkové vodorovné rozvržení domu naopak vytváří dojem splynutí se svahem. Plane House upouští od sevřeného vztahu s krajinou a otevírá se jako dlaň směrem k moři. Celý dům je jednou obří terasou, která poskytuje výhled na malebné pobřeží v rozpětí až 270 stupňů.


V exteriéru i interiéru jsou použity především přírodní materiály, které nenarušují atmosféru místa a naopak se snaží minimalizovat nežádoucí dopad na krajinu kolem. Architekti se vyhýbali extravagantním barvám, které by poutaly pozornost a dali tak prostor vyniknout květům a rostlinám obecně. Objekt je doslova pohlcen přírodou.


Horizontální členění domu poskytuje dostatek stinných ploch a zároveň umožňuje čerstvému vánku proudit skrz. V horkých letních dnech jistě ideální řešení pro strávený den venku. Nebo uvnitř? Prostory zde takřka splývají v jeden. Plocha mezi jednotlivými rovinami je definována pouze pomocí flexibilních panelů nebo prosklených tabulí. Místa určená pro vaření, stravování či relax jsou od sebe tedy odděleny, aniž by byla obětována otevřenost.




V interiéru se setkáváme s jistým napětím mezi rámem a krajinou. Dům je součástí přírody, ale zároveň na ni poskytuje výhled. Rezidence se stává objektem, který nám vytváří ohraničení panoramatické fotografie a propojuje popředí s pozadím.

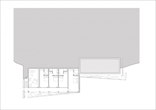
Přilehlý bazén navazuje na terasu tak samozřejmě, až se zdá, že se jedná pouze o rozdílný materiál podlahy, o další vodorovnou plochu, která nenápadně parceluje půdorys. Vodní lázeň je ve stejné úrovni především z důvodu ochlazování vzduchu. Mořský vánek klouže po povrchu vody a tak se chladí. Podobně funguje také střecha. Umístění fotovoltaických panelů navíc umožňuje přeměnu světla na elektrickou energii, která pohodlně postačí na obsluhu bazénu a může být využita k recyklaci šedé vody, ta je následně upotřebena např. pro zavlažování či splachování toalety.
Uplatnění hrubé hmoty v kontrastu se subtilnějšími skleněnými či tenkými kovovými prvky tvoří z tohoto místa dohromady harmonické prostředí ideální k odpočinku.


Tvarovou přísnost a ostrost všech linií a hran narušují Shell Chairs od Hanse J. Wegnera navžené již v roce 1963. Židle z přírodního materiálu jsou však adekvátním doplňkem prostoru, kde strom prorůstá patrem domu, zem je vysypána kamínky a obložena dřevem.



Uvnitř rezidence evokují přechody mezi jednotlivými materiály téměř koláž, ve které jsou jednotlivé části plochy skládány nebo lepeny k sobě. Použití přírodního kamene odkazuje k lokalitě, kde se rezidenční obydlí nachází. Užitá bílá barva v kuchyňské části odráží světlo a provzdušňuje celý interiér.


Kruhová vana stojící samostatně, hraje určující roli v celé místnosti. Obří miska překvapí nejen svou černou barevností, ale také zmíněným kruhovým tvarem, který je v celé rezidenci velmi výjimečný.

Letní bydlení, které slouží člověku, ne člověk jemu - to je Plane House. Dům, jehož vzhled vykrystalizoval z jeho funkce a který se přizpůsobí vašim potřebám.


Jaký je Váš názor?

Autor:
Přidejte se k Insidecor komunitě...
Insidecor
Insidecor na Instagramu