Rekonstrukce turínského bytu o rozloze 70 m2 se skládala ze dvou částí. Z tepelné a architektonické. O tepelnou rekonstrukci bytu se postaral sám majitel, profesionál. O druhou část, architektonickou, se postaralo tamější studio BLA Architettura, založené v roce 2011 architekty Albertem Lessanem a Jacopem Braccem.

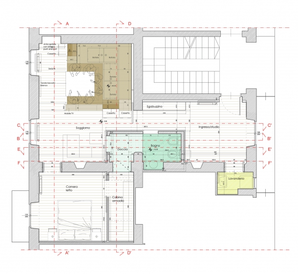
Hlavním záměrem bylo vytvořit světlý prostor za použití dobře vybraných a kvalitních materiálů. Byt není příliš velký. Skládá se z kuchyně, obývacího pokoje, jedné ložnice, vstupní haly a hygienických a technických zařízení. Vše je poměrně jasně organizováno. Ze vstupní haly můžete vejít buď do koupelny, prádelny či menšího kumbálu, nebo do obývacího pokoje. Ten je položen mezi kuchyní, která je společná s jídelnou, a ložnicí, jejíž součástí je rovněž i šatna.


Nejzásadnější prvek rekonstrukce spočíval v přidání nové jednotky do starého uspořádání bytu. Tím byla koupelna. Protože byla vstupní hala poměrně rozsáhlá, mohli si architekti dovolit přidat sem novou architektonickou buňku. K její konstrukci použili dřevo a panely z mléčného skla. Mléčné sklo má tu vlastnost, že není plně průsvitné, tudíž je zajištěno soukromí člověka v koupelně, ale stále odráží světlo v koupelně a slouží tím jako jakási lampa v obývacím pokoji.


Koupelna je zajímavá nejen svým vznikem, ale i interiérovým designem – málokde najdeme tak prostornou sprchu, ze které navíc vede vchod i do šatny, která je z druhé strany propojena s ložnicí. Praktická propojenost tohoto nového modulu s dalšími částmi bytu nepostrádá ani nápaditost, ani praktické využití. Místnost navíc omezuje výhled ze vstupní haly do obývacího pokoje, a dodává mu tak více soukromí.


Na podlahu hlavního prostoru, který propojuje halu s kuchyní a obývacím pokojem, se využil o něco tmavší odstín dřeva, než u koupelnové jednotky. Dvě různé dřevěné varianty ozvláštňují jinak převážně bílý prostor a svou hřejivostí doplňují světlost, kterou do bytu vnáší bílá barva a okna. Architekti rovněž zanechali původní cihlové stěny bytu, ale bez omítky, a natřeli je na bílo, tudíž cihlový materiál získal úplně jiný nádech. Díky dřevu, bílé barvě a mléčnému sklu byt nepostrádá světlost a vzdušnost. K tomu napomáhají i vysoké stropy.



Kuchyně je vyvýšená o několik stupňů od zbytku centrální místnosti pomocí několika dřevěných schodů. Tím pádem se i jídelní kout, který je vytvořen v bufetovém stylu, nachází pod hladinou kuchyňské podlahy. Jídelní stůl je stejně jako kuchyňská linka z materiálu Corian. Navíc se dá ale rozložit až do šířky dvou metrů.



Obývací pokoj se prakticky skládá ze zelené sedací soupravy s výhledem do kuchyně. Přesto je z pravé strany ozvláštněn dřevěným obkladem a mléčným sklem stěny koupelny.


Ložnice zachovává základní krédo bytu – spojení dřeva s bílou barvou. Díky průchodnosti s koupelnou do ní vedou dva vchody, druhý z obývacího pokoje. Přesto se jedná o nejméně otevřenou místnost v bytě a je zde tak zajištěna nejvyšší míra soukromí.

Díky přidání nového modulu do centrální části bytu se architektům podařilo vytvořit zcela nový prostor, kde je vše velmi pečlivě vymyšlené a funkčně propojené. Architektům ze studia BLA Architettura se tak podařilo využít potenciál menšího bytu a jeho majitelům poskytnout velmi příjemné místo k životu.
Jaký je Váš názor?
Související články

House AB: Úspěšná renovace díky zachování starého a přidání nového
Koupelna podle architektky Radky Valové z ateliéru OOOOX
Byt od studia YCL by mohl být vzorem francouzského luxusního bytu
Maximální využití prostoru se v Kyjevě povedlo bez ztráty elegance
Byt vytvořený na míru gentlemanovi
Autor:
Přidejte se k Insidecor komunitě...
Insidecor
Insidecor na Instagramu