Údolí Millahue v jihoamerickém Chile je místo plné potenciálu. Není se co divit, že v jazyce indiánů tato dolina označuje místo dokonce zlaté. Její poloha je totiž přímo pohádková – nachází se mezi dvěma vysokými pohořími, Andami a Cordillera de la Costa, pouhé dvě hodiny od hlavního města Santiago. Kotlina je plná vinic, jejichž panorama pak dotváří velké jezero Humedal de Millahue. Právě zde se nachází hotelový resort Viňa Vik, který vznikl pod taktovkou studia Marcelo Daglio Arquitectos. V něm si můžete dopřát vinné lázně či zhlédnout expozici děl moderního umění.



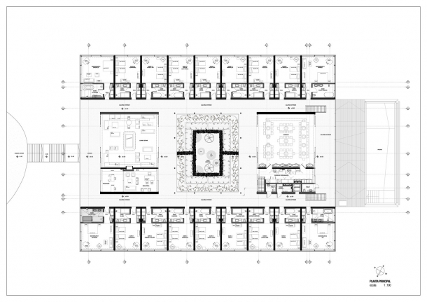
Viňa Vik je jednopodlažní objekt nacházející se na ploše o velikosti 3200 m2. Hotel je budován jako centrální kompozice, v jejímž srdci najdeme společné a administrativní prostory: jídelnu, recepci, rozsáhlý obývací pokoj a dvůr, odkud dovnitř proudí denní světlo. Samotné hotelové pokoje jsou rozmístěny po obvodu stavby tak, aby nepřišli ani o centimetr fenomenálního výhledu do okolní přírody.


Hotel obsahuje celkem 22 ložnic. Jedenáct z nich je umístěných na severní straně a stejný počet i na straně jižní. Jelikož se hotel nachází na vrcholu kopce, z obou dvou jsou krásné výhledy do okolí. Všechny pokoje, s výjimkou čtyř rohových, jsou koncipovány stejně: po vstupu se vchází do menší předsíně, odkud vedou dvoje dveře, do koupelny a ložnice.

Nárožní apartmá jsou o něco exkluzivnější a díky své poloze skýtají nejlepší výhledy do okolí – stěny jsou totiž téměř celé prosklené. Pokoje jsou vždy dvoulůžkové a tematicky vybavené – charakter pokoje se pak odráží i v jeho jménu. Zvolili byste pokoj se jménem Hollywood, Minimalist nebo Retro?


Pro střechu využili architekti titan od španělské společnosti Quinta Metálica, který je velmi ohebný. I díky tomu mohli autoři návrhu vybudovat tvar střechy, který napodobuje okolní prostředí a navíc i odráží světlo. Vlnité formy titanu mohou vzdáleně připomínat Guggenheimovou muzeum v Bilbau od Franka Gehryho, mimo jiné i autora Tančícího domu v Praze.



Obnovitelné zdroje a udržitelnost budovy hrály v tomto projektu rovněž důležitou roli. Kromě nejnovějších technologií, použili architekti materiály s nízkými náklady na údržbu a s vysokou životností, jako jsou titan, hliník, ocel, beton či sklo.


Budova je postavena na betonovém podstavci, který ji mírně vyzdvihuje nad úroveň půdy.
Hotel zahrnuje také vinné lázně, kde si můžete dopřát různé terapeutické a relaxační procedury, knihovnu, venkovní bazén, kde se můžete opalovat za dechberoucího výhledu na nedaleké vrcholky hor a jezero, či fitness centrum. To vše doplňují díla moderního výtvarného umění a designu, která dotváří nezapomenutelný charakter budovy.


Hladina bazénu zabudovaného do dřevěné terasy splývá s horizontem jezera Humedal de Millahue v pozadí.
Uruguayské studiu Marcelo Daglio Arquitectos naplno využilo místní genius loci a vytvořilo prostor, kde vám k dokonalé relaxaci a nerušenému odpočinku snad už nemůže nic chybět. Návštěvníci zde mohou skloubit široké množství aktivit, jež hotel sám a jeho okolí nabízí a strávit dovolenou samými pozitivními činnostmi.
Jaký je Váš názor?
Související články

city.city: designová oáza v železné Ostravě
Usedlost Salabka: Historie, duch místa a hodnota pro budoucí generace
Hotel Emblem: Ráj v centru Prahy políbený art decem
Hotel Ett Hem
Alpský hotel Wiesergut
Autor:
Přidejte se k Insidecor komunitě...
Insidecor
Insidecor na Instagramu