Norské studio Filter Arkitekter pracovalo od počátku s požadavkem na údržbově nenáročné bydlení, jehož hlavním stavebním materiálem bude beton. Vzhledem k povaze terénu, do kterého byl dům zasazen, splnil beton nejen svoji estetickou, ale především svoji praktickou funkci. Stavba leží uprostřed svahu v horské oblasti Sirdal v jižním Norsku. Oblast je známá díky lyžařským střediskům i krásným výhledům na místní jezera.

Dům s celkovou plochou 165 m2 je rozdělen do dvou pater, kde přízemí je z velké části zapuštěno do svahu a první patro slouží jako výkladní skříň pro výhled do okolí. Celkem mají majitelé k dispozici 8 místností, z nichž největší je obytný prostor na prvním patře. Záměrem architektů bylo dům zapustit do svahu tak, aby se postupem času stal nedílnou součástí svého okolí a se svahem nenávratně splynul.

Průřez celým domem.

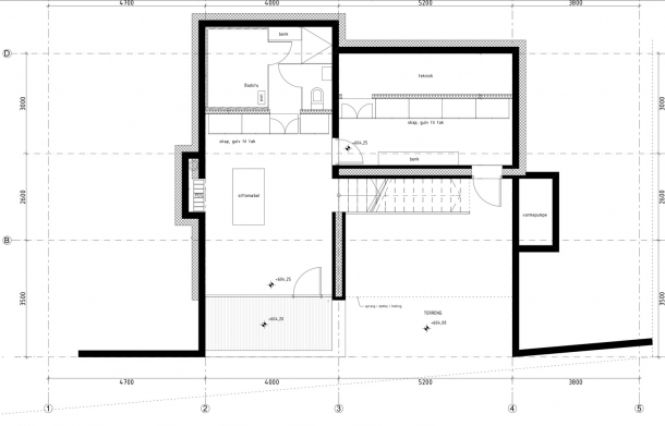
Půdorys přízemí.

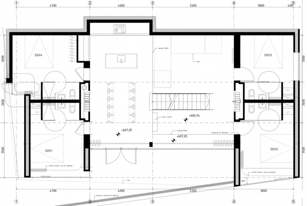
Půdorys prvního patra.
Jak již bylo řečeno, beton byl pro stavbu složitě situovaného domu z hlediska stavebního materiálu dobrou volbou. Aby však nezůstal dojem z bydlení tak chladný, použili architekti jako další materiál dřevo - hlavně v kuchyni, sauně, u dveří a zábradlí. Významným prvkem pro navození vlídné a hřejivé atmosféry se stal krb, respektive krby. První krb je umístěn v obývacím pokoji spodního patra a záměrně postavený v linii s krbem v horním patře. Při pohledu dolu ze schodů, nebo naopak nahoru do schodů se majitelům naskytne uspokojivý pohled na plápolající oheň.



Zatímco přízemí zahrnuje garáž, úložný prostor, technickou místnost, saunu a obývací pokoj, na prvním patře mají majitelé k dispozici velkou obytnou místnost, kolem které jsou rozloženy 4 stejně dispozičně řešené ložnice. Hlavní obývací prostor je situovaný na jih, proto se architekti rozhodli kompletně otevřít přední fasádu domu a poskytnout tak jedinečný výhled na okolí. Kuchyně a jídelna jsou od obývacího pokoje oddělené zvýšenou podlahou, což prostor opticky rozbíjí a dělá dojem většího počtu místností.




Z jídelny je možné přejít na venkovní terasu, která je díky zastřešení přístupná i v horším počasí.


Na projektu, který primárně vedlo architektonické studio Filter Arkitekter, se od počátku podílel také institut Norwegian Geotechnical Institute, který vypracoval studii s návodem pro vyměření a následnou stavbu domu. Přispění NGI bylo nutné z důvodu neobvyklého umístění stavby v hůře dostupném terénu.

Záměrem architektů při stavbě bylo zasadit dům do svahu a nechat ho splynout s okolím. Na vybraném místě je již nyní obklopen vegetací a přilehlými skálami. Postupem času získá betonová fasáda "obnošený" vzhled a zaroste mechem. Dům se tak doslova stane součástí hory, ke které byl zpočátku jen přidružen.
Jaký je Váš názor?
Související články

Norská krajina jako Mekka umění i architektury
Lesní domek působí jako betonová skrýš
Rekonstrukce horské stodoly ve Švýcarsku ukazuje dřevo ve všech podobách
Nizozemská horská chata
Autor:
Přidejte se k Insidecor komunitě...
Insidecor
Insidecor na Instagramu