Londýnský ateliér Craft Design realizoval konverzi půdního prostoru z kanceláře na plnohodnotný byt. Stísněný prostor v londýnském Camdenu, který je omezen možnostmi, vedl ateliér k inteligentnímu řešení.

Cílem bylo maximalizovat množství volného místa, aniž by se narušilo jednoduché a úsporné řešení prostoru. Architekti Hugo D’Enjoy a Armando Elias rozdělili byt na dvě části.

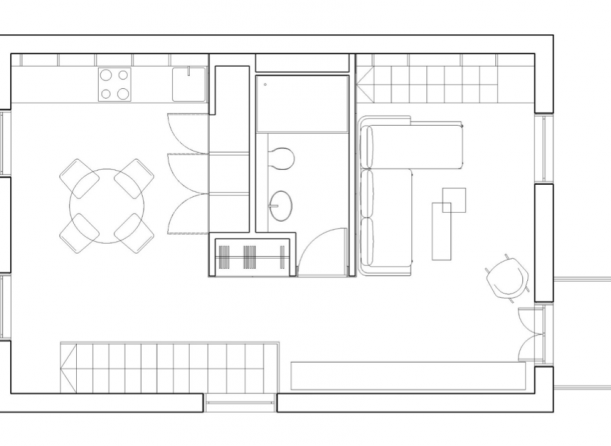
Rozčlenění není zcela standardní a je docíleno vložením koupelny, která utváří kvádrovitý objekt uprostřed půdního prostoru. Mimo to, že nově vzniklá místnost v sobě skrývá koupelnu, nabízí její obal a samotné umístnění další možnosti využití.

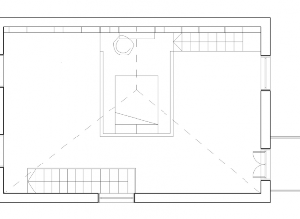
Dělení bytu na dvě části utváří kuchyňský a jídelní prostor na jedné straně, na straně druhé vznikl obývací pokoj. Z něj vedou schody nahoru na mezanin.

Na mezaninu se nachází ložní prostor a pracovní stůl. Umístění postele v této výšce pomyslně vytváří další místnost, a tudíž soukromí v rámci daných možností.

Objekt s koupelnou je maximálně využitý a jeho funkčnost je rozšířena pomocí povrchu krychle. Ten skýtá úložné prostory v podobě skříněk.

Architekti také umístili úložné prostory na zeď, která je propojená s koupelnou. Dlouhá stěna je vytvořena z různě poskládaných poliček, jež pokrývají celou zeď. Jsou také provázány se samotným schodištěm na mezanin; to pod sebou rovněž skrývá prostory pro skladování.

Podobně jako v newyorském projektu jsou i v Londýně obytné plochy velice drahé a takováto úsporná řešení jsou adekvátním přístupem k malým prostorům. Poukazují na to, že komfort nemusí být ztracen kvůli malé ploše a vysokým cenám nemovitostí.


Jaký je Váš názor?
Související články

Když Baťa nedělá cvičky, ale domy
Život v kostce
Vzletná Letná
Pracovat i spát ve skříni
Autor:
Přidejte se k Insidecor komunitě...
Insidecor
Insidecor na Instagramu