Dva pokoje a stísněný prostor. To byla výzva, před kterou stálo interiérové studio JAAK. V Hong Kongu se mu na malé ploše povedlo vytvořit vzdušný prostor, a to hlavně díky nábytku na míru. Designéři hledali inspiraci s japonských domovech a architektuře, která často umí smysluplně využít každého centimetru.

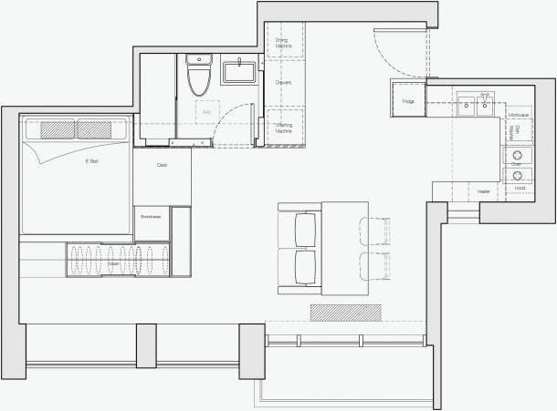
V bytě o 33 metrech čtverečních žije mladý pár, který si přál světlý a flexibilní prostor. Majitelé zároveň nepotřebovali druhou oddělenou ložnici, jelikož děti zatím neplánují.

„I když je Hong Kong tradiční čínské město, všímáme si, že se hodnoty některých čínských rodin pomalu mění,“ říká Calvin Cheng, který stál v čele projektu. Na mysli má hlavně stoupající ceny nemovitostí a stagnující platy. V závislosti na tomto novém modelu posiluje tzv. třída DINC – Double Income, No Children. Tedy dvojí příjem, žádné děti.

„Na tuto změnu nicméně nestačí reagovat developeři a trh s realitami. Proto stále nabízejí byty, které odpovídají tradiční rodině, a mají proto hodně vzájemně oddělených prostorů,“ pokračuje Cheng.

Právě striktně oddělených místností se v tomto bytě ateliér JAAK vzdal. Zato dal prostor velkým oknům, která do bytu přivádějí denní světlo. Podél oken vede chodbička, díky které se světlo dostává do celého prostoru.

V bytě najdete zejména nábytek na míru, který symbolicky určuje funkce jednotlivých částí bytu. Jediná oddělená místnost je koupelna, schovaná za téměř neviditelnými dveřmi.


Částečně oddělená je i ložnice, na kterou navazuje vestavěný pracovní stůl. Otevřený prostor mezi postelí a stolem je možné oddělit roletou, aby se majitelé vzájemně nerušili.


Na studené betonové stěny navázali designéři světlým dubovým dřevem a mramorovou kuchyňskou deskou. Tato kombinace má umocňovat krásu přirozeného světla.


Na míru vznikly i všechny úložné prostory. Třeba boxy nad koupelnou, nebo úložný prostor pod postelí. Spaní designéři schválně umístili na vyvýšenou platformu, aby získali více místa pro ukládání věcí. Spotřebiče se zase schovávají ve skříních, aby prostor stále působil čište a elektronika nenarušovala jeho celistvost. Díky tomu byt nepůsobí přeplácaně, a proto zároveň vypadá větší.


Za zmínku stojí i díla od různých grafických ateliérů – obrazy inspirovaly filmy o vesmíru, třeba známý snímek Apollo 13. Designéři z ateliéru JAAK tak v Hong Kongu ukázali, jak může vypadat bydlení, které reaguje na sociodemografické změny ve společnosti.

Jaký je Váš názor?

Autor:
Přidejte se k Insidecor komunitě...
Insidecor
Insidecor na Instagramu