Budova, jež nápadně připomíná mušli, leží v části japonského Nagana jménem Kitasako. Zastavěná plocha čítá 329 metrů čtverečních. Víkendové sídlo pro rodinu dokončilo v roce 2008 studio ARTechnic. Projekt vedl architekt Kotaro Ide.



Podnebí v této časti země je charakteristické vysokou vlhkostí vzduchu a nízkými teplotami. Proto se stává, že klasicky konstruované projekty tu začnou chátrat. Mnoho z tamních vesnic je proto již řadu let neobývaných. Málokdy se zde na stavbě používá beton – přesto ho studio ARTechnic použilo a právě díky němu se budova chrání před velkou vlhkostí.


Architekti se snažili zakomponovat okolní přírodu do vily tak moc, jak jen to bylo možné. Velký důraz kladli i na pohodlí. Snažili se zabránit tomu, aby sídlo vyžadovalo náročnou údržbu jako mnoho jiných tradičních chat v okolí a jeho majitelé se více mohli věnovat odpočinku.

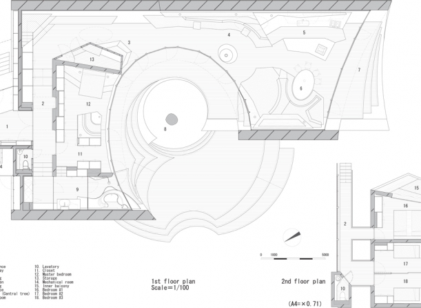
Těžištěm budovy je obrovský jedle a z prosklené stěny domu mají jeho obyvatelé výhled do okolního lesa. Podlaha se nachází 140 centimetrů nad zemí a objekt jako by se vznášel ve vzduchu. Architekti se snažili využít plochu domu na maximum a nábytek vměstnali i do těch nejnižších částí oválu.





Díky centrálnímu systému může rodina všechny mechanické a elektrické přístroje ovládat pouze třemi tlačítky. Dům je také vybaven bezpečnostním zařízením a vytápěnou podlahou. Když jsou majitelé zrovna mimo svou chatu a teplota klesne k bodu mrazu, spustí se automatický zahřívací systém.


Realizace vrhá jiný pohled na prázdninové bydlení a díky svým organickým tvarům hravě koresponduje s divočinou, jež chatu obklopuje. Přesně tak, jak to má japonská architektura ráda.



Jaký je Váš názor?

Autor:
Přidejte se k Insidecor komunitě...
Insidecor
Insidecor na Instagramu