Vnitroblok činžovního domu nedaleko Staroměstského náměstí. Industriální půvab historické stavby. Tři investoři. Architektka Mária Maninová a ateliér MAAT, grafik a designér Petr Hanousek, architekt Noro Gáfrik. To vše stálo u vzniku nového coworkingového centra Opero, které najdete ve Štencově domě. Dřív tu od rána do večera pracovali grafici a fotografové, dnes tu lidé posedávají nad počítači a kávou.


„Chtěli jsme vytvořit reprezentativní coworking, který se bude lišit kvalitou služeb, interiérů i vybavení,“ vypráví o začátcích Pavel Přikryl, jeden z investorů. Prostě místo, kam se firmy nebudou stydět vzít důležitého klienta. Objekt v dvorním traktu historického domu byl pro takový projekt ideální řešení, a to hlavně díky rozmanitosti prostorů. Pracuje se tu jak v neformálním open spacu, tak v uzavřených zasedacích místnostech, kancelářích, kavárně i venku.




„Díky paní Škabradové, vnučce původního majitele, jsme měli spoustu informací o historii domu,“ začíná vyprávět architektka Mária Maninová. Secesní dům byl postaven mezi lety 1909–1911 a u jeho vzniku nestál nikdo jiný než architekt Otakar Novotný, autor budovy Spolku výtvarných umělců Mánes, kterému dokonce dlouho předsedal. Na začátku 20. století dostal za úkol navrhnout tiskárnu a obytný dům pro nakladatele Jana Štence, který tehdy patřil mezi středoevropskou špičku v oboru. V Salvátorské ulici se od té doby scházely významné osobnosti tehdejší kulturní a umělecké scény – třeba malíř Max Švabinský, architekt Jan Kotěra a sochař Jan Štursa. „Salvátorská ulička je vzdálená sotva sto kroků od velkého střediska pražského, a přece tak nerušená jako spící zátoka,“ řekl o lokalitě sám Štenc.



Komunistického puče se Jan Štenc nedožil. Po roce 1948 byl objekt zestátněn a sloužil i nadále jako tiskárna – jeho společenská funkce byla ale pryč. V devadesátých letech prošel Štencův dům důkladnou rekonstrukcí, při které se vrátilo mnoho původních prvků, například repliky průmyslových oken. Tehdy tu sídlil výrobce vlasové kosmetiky Wella, který v bývalých ateliérech provozoval školicí centrum. Pak budovu opustil a posledních pár let se tu příležitostně točily filmy, konaly prezentační akce nebo přehlídky.


Ve Štencově domě byly původně grafické dílny a scházely se tu významné osobnosti kulturního života.
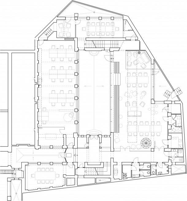
Původní půvab oprášila Mária Maninová se svým ateliérem MAAT. „Byla tu spousta sádrokartonu, podhledů a bílých kachlí,“ vzpomíná architektka. Tovární okna, kovová zábradlí a cihelné stěny doplnila odhalenými betonovými stropy. Očistila kamenná schodiště, koberce a dlažby nahradila novými podlahami. Všechny místnosti jsou situované kolem atria, kde roste ambroň západní.




Stav před renovací: koberce, bílé kachličky a spousta sádrokartonu.



Vizualizace ateliéru MAAT.
Zatímco některé místnosti jsou plné živých barev, jiné spíš tlumené: tak, aby si každý mohl vybrat, v jakém prostředí chce pracovat či jednat. Naprostá většina nábytku vznikla na míru z jasanového dřeva, podlahy z dubu a marmolea. Recepční a kavárenský pult zase tvoří ocelové plechy. V největší zasedací místnosti stojí dubový stůl na mohutných betonových podnožích a zdi zdobí zvětšeniny snímků, které se tu na začátku 20. století vyvolávaly – potomci Štence je shromáždili v archivu.




Hlavní coworkingová místnost je oproti tomu hravá, posedět můžete třeba na lavici, která vznikla z jasanových lamel a zakrývá topení. Pracuje se i v křeslech nebo u stolů na ochozu. Architektka sem umístila i kuchyňku a takzvanou hovornu, akusticky izolovanou místnost. „Dá se tu nerušeně telefonovat či skypovat,“ popisuje. Nejbarevnější místnost se žlutou stěnou a barevnými židlemi slouží hlavně pro workshopy.






Většinu židlí a křesel vzala architektka od firmy LD Seating, koberce dodal obchod Maimana. O zakázkovou výrobu se postaralo truhlářství Bakule Blažek.




Do Opera se dostanete jen s členskou kartou – můžete si jednorázově zamluvit zasedačku, nebo si koupit celoroční členství a pracovat ve sdílených prostorách. Několik firem tu má také stálé kanceláře. Výjimkou jsou ale veřejné společenské akce. Pořádají se tu diskusní večery, workshopy a výstavy, na které může přijít každý. „Štencovu domu tak vracíme společenskou funkci, kterou kdysi míval,“ vysvětluje Pavel Přikryl.



Pravidelně se tu koná třeba talk show Operitiv, na které vystupují inspirativní řečníci – promluvil tu mimo jiné kritik architektury Adam Gebrian, dirigent Václav Luks či šéfka českého a slovenského Googlu Taťána Le Moigne. Další Operitiv se plánuje na 12. září a o týden později můžete zajít na první díl přednáškového cyklu Žárovky: na podium se postaví mladí talentovaní lidé a přiblíží publiku specifika svých oborů.



Pavel Přikryl vede také poradenskou firmu; s klienty se často schází právě v Operu. „Je to bezvadné místo na navazování kontaktů. Jsme tu přes půl roku a už vidíme, jak se lidé spojují a zakládají nové projekty,“ popisuje. V listopadu oslaví Opero první narozeniny. „Zatím vše šlape dokonce lépe, než jsme plánovali. Důkazem je i to, že máme všechny kanceláře pronajaté,“ shrnuje.

Opero v dvorním traktu vítá i Viola Škabradová, vnučka Jana Štence. „Dědečkův odkaz se snažím důstojně udržet. O využití domu se zajímala řada lidí, ale s industriálním prostorem si nedokázali poradit, nedokázali ho uchopit,“ popisuje. Povedlo se to prý až Pavlu Přikrylovi a jeho týmu – Štencův dům díky nim zase ožil.
Opero, design Mária Maninová a ateliér MAAT
Salvátorská 8, Praha 1
Jaký je Váš názor?
Související články

K10 - Místo, kde se práce mění v potěšení
Kanceláře firmy LEO prostupuje interakce
Kanceláře Kindred Group: Hravý prostor pro kreativní hlavy
Přísné i rozverné kanceláře firmy KKCG
Etneteria: Pracovní prostory, které ctí své zaměstnance
Autor:
Přidejte se k Insidecor komunitě...
Insidecor
Insidecor na Instagramu