Co vás napadne, když se řekne Karlín? My ho máme v hledáčku už dlouho, pečlivě Karlín sledujeme v této mapce. Naší pozornosti tudíž neušel ani nováček v karlínských ulicích: Bistro Proti Proudu. Povídali jsme si s jeho majiteli i architekty, kteří dostali realizaci na starost.

Červené venkovní posezení vás k bistru láká už z dálky.
„Oba jsme novináři a můj manžel chtěl mít vždy kavárnu. Já ho v nápadu podpořila a protože se dlouhodobě věnuji gastronomii, došla jsem k závěru, že je čas plnit si sny úplně,“ vysvětluje spolumajitelka bistra Karolina Konečná, jaké impulsy stály za zrodem podniku.


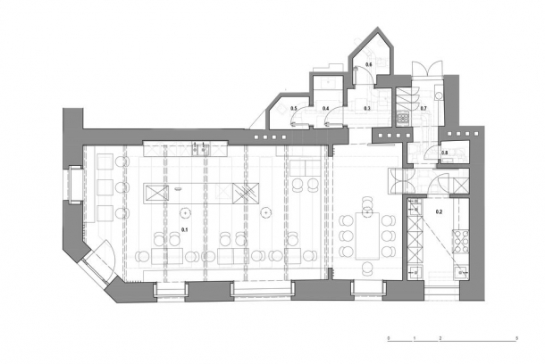
Manželé Koneční od začátku věděli, že své vysněné bistro svěří do rukou architektům. Na obrázku půdorys a profil bistra.
Manželé Koneční se rozhodli jít na jistotu a návrh bistra, jež se nachází v domě ze 30. let 20. století, svěřit do rukou profesionálů. „,Od začátku jsme věděli, že si najmeme architekty. Měli jsme celkem jasnou představu o tom, co chceme, ale věřili, že náš nápad architekti dokážou posunout dál,“ říká paní Konečná. A opravdu se tak stalo.

Architekti koncept bistra pojali jako hold Františku Křižíkovi.
Koneční původně oslovili architekta Dušana Řezáče z ateliéru Modulora a ten se spojil s spřáteleným ateliérem Mimosa. Na projektu tak spolupracovala celá skupina architektů.
Na místě se původně nacházela červeně vymalovaná a nepěkná hospoda. Hlavním cílem architektů bylo prostor prosvětlit a otevřít. Předělali především okna: snížili parapety na úroveň původně plánovanou v návrhu činžovního domu. Do bistra tak přivedli více světla a vizuálně jej propojili s ulicí. Jedna z mála věcí, kterou architekti v bistru ponechali, jsou klenby a kamenná podlaha, jež byla leta schovaná pod kobercem.

¨

V portfoliu ateliéru Mimosa najdete především rezidenční projekty. „Zadání tohoto typu jsou příjemným zpestřením naší práce,“ říká architekt Pavel Matyska.
Snad nejzajímavěji architekti řešili osvětlení: kabely od lamp nad stoly nechali záměrně odhalené a viditelně spojené s vypínači za barem. Ty jsou vedle sebe na stěně poskládány v kompozici, která odpovídá rozmístění stolků v bistru. „Kabely vedoucí od stolků za bar mají mimo jiné symbolizovat propojení hostů a obsluhy,“ říkají architekti. Elektřinu reflektuje i název bistra. Architekti navíc do bistra umístili takzvané edisonské žárovky, jejichž vlákno je po rozsvícení viditelné.

Seskupení vypínačů na překližkové stěně odpovídá půdorysu rozmístění stolů v bistru. Na rastr zdi jsou navázány veškeré prvky na stěně.
Ne náhodou kladli profesionálové z ateliérů Modulora a Mimosa důraz právě na osvětlení. Elektřinu pojali jako hold Františku Křížíkovi, známému vědci a mágovi světla, který měl svou továrnu právě v Karlíně. „Nechtěli jsme vytvořit místo bez příběhu,“ říká za ateliér Mimosa architektka Lenka Pechanová.




Stěny bistra budou zdobit výstavy. Momentálně si na zdech můžete prohlédnout věty, které skupina žen sbírala z každodenního života.

Prostor architekti zahalili do bílé barvy, kterou kombinovali s dřevěnými židlemi TON a stoly na míru. „Líbí se nám přirozená patina, kterou věci ze dřeva časem získají,“ říká architektka Lenka Pechanová z ateliéru Mimosa. Dominantou bistra je působivý bar s dubovou deskou. Železné pláty, ze kterých je vyroben, nechali architekti záměrně zreznout.



Grafické prvky včetně nápisu na baru dostal na starost grafik Radek Rytina.

Architektům z ateliérů Modulora a Mimosa se podařilo vytvořit místo, které konceptem navazuje na historii lokality, v níž se nachází. Majitelé svěží design doplnili čerstvým menu. Že svou práci odvedl celý tým dobře, dokazuje i to, že je bistro v podstatě pořád plné, i když se v okolí nachází řada dalších podniků. „V Karlíně je v oblasti gastronomie velká konkurence, což nám vyhovuje. Nemůžeme usnout na vavřínech,“ uzavírá spolumajitelka Karolina Konečná.

Jaký je Váš názor?
Související články

Kavárna Místo: Labyrint provoněný kávou a dřevem
Love Kidó: Inspirace a klid v každém koutu
Phill's Twenty7: Obnažené bistro
Bistro No. 19: Designové produkty jako předkrm, výstava jako zákusek
Interiér nabitý emocemi, příběhy a kávou
Autor:
Přidejte se k Insidecor komunitě...
Insidecor
Insidecor na Instagramu