V krásném funkcionalistickém domě v srdci hlavního města najdete novou restauraci Gran Fierro. Je skrz na skrz protkaná Argentinou – od kuchyně až po interiér, který vytvořily architektky Dagmar Štěpánová a Katarína Varsová. Jsme velice pyšní, že jsme mohli stát za vznikem tohoto podniku, který je skvělý nejen po gastronomické, ale i designové stránce. V našem textu vám představujeme příběh i koncept místa.
Právě insidecor spojil dvojici architektek s Argentincem Juanem Cruzem Pacinem, který tehdy provozoval jen malé bistro El Fierro Grill v Rumunské ulici. Titěrné občerstvení navrhl sám a rozhodl se, že je čas otevřít větší a pořádnou restauraci.

O náplni jídelníčku měl jasno – vařit se budou jak pokrmy z jeho rodné země, tak ze zbytku Jižní Ameriky a Hispánie. Chtěl nabízet prvotřídní steaky i vína a vytvořit místo, kam můžete přijít v jakoukoliv denní dobu. Potřeboval ale profesionála, který by mu prostor navrhl. Nechtěl riskovat a vytvořit projekt svépomocí, byť měl poměrně jasnou představu, jak má výsledek vypadat.


Juan se tedy ozval našemu týmu, jenž mu po osobní konzultaci dal tipy na několik ateliérů, které by realizovaly interiér dle jeho přání. Nejlépe mu sedla právě Dagmar Štěpánová, o které se více dozvíte v našem interview; ta si k sobě přizvala Katarínu Varsovou, s níž se zná z ateliéru Mimolimit, kde dříve působila. Tým byl kompletní a mohlo se začít.


PÁSEK JAKO JEDINEČNÝ DOPLNĚK
Protože Dagmar strávila nějaký čas v Jižní Americe a poznala tamější kulturu, tušila, jakým směrem se projekt bude ubírat. Hodiny s Juanem strávila povídáním o jihoamerickém koloritu. „Nechtěli jsme to přehnat a vytvořit naprostou kopii argentinských podniků plnou klišé, cílem bylo navrhnout lehce industriální prostor, ze kterého bude Argentina cítit. Juan si navíc přál, aby interiér obsahoval tyrkysovou modř,“ vzpomíná Dagmar.




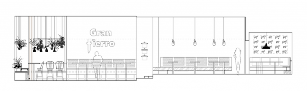
V Gran Fierro najdete mnoho působivých a propracovaných detailů, které vás na okamžik přenesou o více jak 10 000 kilometrů jinam. Kožené polštáře například připínají vzorované pásky do kalhot dovezené z Buenos Aires. Díky tomuto hravého nápadu se dají polštáře jednoduše odepínat, vyměňovat a přemisťovat. Zatímco v tomto případě architektky pásky využily v novém kontextu, obsluha je nosí tam, kde mají být – v džínách. Interiér tak vlastně spoluvytvářejí i zaměstnanci.

Hravé detaily najdete i na prostírání, které je lemované typickými argentinskými vzory. Menu zase zdobí kravská srst; jídelníčky nechal Juan vyrobit na zakázku v Argentině. Steak dostanete na kovovém talířku posazeném na dřevěném tácku, který Dagmar navrhla podle argentinské předlohy.

Veliký nápis s malými žárovkami uvnitř vytvořil Juanům kamarád, Mexičan Franco, který se živí jako industriální sochař.

Zámečnické práce, jako například působivou klec v přední části restaurace, vyrobila rodinná firma Kurel. Stoly, bar a další dřevěné elementy na zakázku dodala společnost Dyzyk. Následně všechen dřevěný nábytek prošel drásáním a poté patinováním pod rukama Aleše Poláčka. Tak vzniklo dřevo, které má výraznou, na dotek příjemnou texturu a tmavší barvu.

Šikovné jsou háčky na kabelky, které najdete na každém stole. Lavice jsou vyrobené z lazurované překližky. Na zemi použily architektky zalakovanou epoxidovou stěrku, která je odolná vůči poškození a snese velkou zátěž. V zadní části podniku je stěrka v bleděmodrém odstínu.
V Gran Fierro najdete několik různých typů osvětlení. Jeho intenzita se se dá regulovat, lze si tak hrát s atmosférami prostoru. Industriální skleněné baňky koupily architektky u holandské firmy Zangra. Od stejné firmy jsou i nástěnná černá svítidla. Betonové širmy jsou od firmy Kare a doplňují je kabely z elektrických kytar. „Chtěli jsme dát interiéru exotický nádech, a tak jsme použili i elharové modře gradientované lampy,“ říká Dagmar.

V krásných velkých oknech visí rostliny od projektu Zahrada na niti. Do detailu architektky myslely i při volbě dlaždiček: zatímco bar je obložen tyrkysovými dlaždicemi s černými spárami, v kuchyni najdete černé dlaždice s tyrkysovými spárami.

Stoličky u baru i židle s koženým potahem jsou od francouzského výrobce Manufactori, Dagmar si je vyhlídla na francouzském festivalu designu Maison et Objet stejně jako barové židle v zadní části. Ty byly původně bílé – architektky je ale nechaly galvanizovat, aby se lépe hodily do interiéru. Mnoho nábytku je rustikálnějšího ražení: třeba busty býků jsou z loděnického Snelu. Jiné doplňky sehnaly v Industrial či Aron antiku. „Tři víkendy jsme jezdily po různých bazarech. Bylo to sice náročné, ale zábavné a stálo to za to,“ říkají autorky návrhu. Úspěch u návštěvníků sklízí třeba tmavohnědé křesílko. „Jeden ambasador ho prý dokonce chtěl koupit, Juan se ho ovšem nevzdal,“ říká Dagmar.

I do Gran Fierro Dagmar umístila svůj oblíbený doplněk, který najdeme ve více jejích realizacích, bukové špalky. Toto dřevo má například oproti dubovému velkou výhodu: nepouští pryskyřici.

Stěny salonku zdobí siluety krav z ocelového plechu, které nakreslila Katarína. Ze stropu visí červená lampa z Industrial antiku. Nedávno přibyla i knihovna, která obsahuje mimo jiné jihoamerickou literaturu, kuchařky či společenské hry. „Důležité je, že mají všechny hezké přebaly,“ směje se Dagmar.


Jako u mnoha realizací, i zde se objevily komplikace, se kterými nikdo nepočítal. „Na poslední chvíli se zjistilo, že veškeré vodovodní trubky ve zdech jsou úplně zrezivělé, všechny bylo třeba vyměňit,“ vzpomínají architektky.
Za zmínku stojí i název podniku: gran znamená velký, fierro zase ve spisovné španělštině železo. Ve slangu Buenos Aires však může jít o gril, dobré auto či orgasmus.

TANEC MÍSTO VEČEŘE
Do Gran Fierro můžete zavítat i tehdy, nemáte-li zrovna hlad. Každé úterý od 20 do 23 hodin se tu pořádají taneční večery: naučit či procvičit si můžete třeba argentinské tango. Jindy zase hraje DJ, pravidelně se tu schází i španělsky mluvící pražská komunita a pořádají se tematické večery – nedávno třeba andaluský. Pořídit si tu také můžete gurmánské speciality. „Když lidem něco zachutná, ingredienci si mohou pořídit přímo u nás. Nabízíme mimo jiné pravé chorizo,“ říká Juan.


Gastronomie se s prostorem pojí již dlouho. Dříve se na adrese Voršilská 14 nacházela restaurace Pod křídlem noci, kde obsluhovali lidé, kteří nevidí. Zadní a přední prostory od sebe původně oddělovala zeď. „Hned jsme s Juanem věděli, že se zdi musí odstranit, aby se otevřela i zadní část,“ vypráví Dagmar. Díky tomu máte v podstatě z jakékoliv části prostoru dobrý výhled na celý podnik. Kuchyň se zbytkem prostorů architektky záměrně spojily velkým otvorem, aby bylo vidět, jak kuchař připravuje jídlo. S kuchyní má dnes restaurace přes 200 metrů čtverečních a posadí se zde až 115 lidí.
Nahlédnout pod ruce můžete argentinskému šéfkuchaři Sergiu Guerrerosovi a jeho kolegům. „Díky pestrému kulturnímu zázemí můžeme vytvářet jídla z celé Jižní Ameriky,“ říká Juan. Každý den tu na vás čeká jiné exotické polední menu. A když sem mezi pátou a osmou večerní zajdete na koktejl, dostanete k němu zdarma jihoamerické tapas.



Juan se řadu let pohyboval na poli reklamního průmyslu. Původně do Prahy přijel vyučovat na filmové škole, nakonec se rozhodl zůstat. „Práce s Juanem byla nesmírně příjemná. Je vzdělaný, inteligentní a má dobrý vkus. Vše probíhalo hladce, určitě jde o jednu z našich nejoblíbenějších realizací,“ říkají architektky. A my jsme moc rádi, že jsme mohli stát za vznikem takového místa. Až tedy budete mít dost Prahy, zajděte do Gran Fierro. Argentina ještě nikdy nebyla tak blízko.
Jaký je Váš názor?
Související články

Soho: pohádkový prostor, v němž se rokoko snoubí s modernou
Usedlost Salabka: Historie, duch místa a hodnota pro budoucí generace
Dagmar Štěpánová: Po dokončení každé realizace cítím smutek
K Hoffovi za koktejly, hudbou a nevšedním interiérem
Interiér nabitý emocemi, příběhy a kávou
Autor:
Přidejte se k Insidecor komunitě...
Insidecor
Insidecor na Instagramu