„Už jste u nás někdy byli?“ ujistí se obsluha hned, jak otevřete dveře. V bistru Špejle to totiž chodí trochu jinak – jídlo si neobjednáváte, ale berete sami z dlouhého baru. V každém pokrmu je zabodnutá špejle, která má hodnotu 29 korun. Když jste s jídlem skončili, jednoduše zaplatíte počet použitých špejlí.


Vybírat můžete jak z vegetariánských, tak masových chlebíčků i teplé kuchyně, kterou přímo před vámi připravuje kuchař. V některých pokrmech jsou zabodnuté dvě špejle, v jiných jen jedna. Najdete tu i dezerty a saláty – bistro je samoobslužné a objednáváte si jen pití. Inspiraci našli majitelé ve Španělsku, kde jsou populární tzv. pinchos – tedy drobné pokrmy podávané na špejlích, které jsou často součástí společenských událostí a hosté je zakusují během klábosení. Od klasických tapas se liší právě v dřevěných špejlích.


Za neotřelým konceptem stojí kuchař Josef Pleskač a barman Jan Braniš, kteří už se dlouho pohybují na české gastronomické scéně. Pleskač vévodí kuchyni a Braniš je odborník na drinky – vlastní známý koktejlový bar Bugsy's, a tak i do Špejle dodává ty nejlepší destiláty. Místní specialitou je gin s tonikem, který dostanete v různých variantách a kombinacích. S sebou si můžete odnést třetinku gin toniku, který ve Špejli prodávají s vtipným nápisem „na poslední metro“. Bistro si navíc nechává vařit vlastní světlý ležák v pivovaru Lužiny a na druhém čepu se střídají pivní speciály.

Povídání u špejlí
Ale teď už k designu interiéru, který dostal na starost ateliér Coll Coll. Ten se svým návrhem vyhrál soutěž a architekti brzy s majiteli vyrazili do Barcelony. I když se pinchos tradičně jí hlavně na severu Španělska, postupně se dostávají i do Katalánska, kde je investoři objevili.


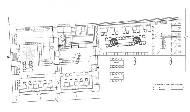
V 80. letech se v činžovním domě nacházelo studio Československé televize, dnes tu zákazníci posedávají u dřevěných stolů vyrobených na míru. Každý z nich má uprostřed stojánek na špejle, který je ke stolu přichycen magnetem. Sedět se dá i v atriu, které je součástí přilehlé administrativní budovy. Barevné akcenty do interiéru vnáší hlavně jídlo, nahlédnout ale můžete i do pestrobarevných kuchařek a turistických průvodců.


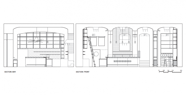
Samoobslužný bar z válcovaného plechu má 15 metrů. A že se při vybírání jídla hosté někdy trochu tlačí? „Díky tomu spolu musí mluvit. V zahraničí lidé běžně postávají u baru a povídají si,“ říká Krištof Hanzlík.


Vpředu živo, vzadu klid
Právě různorodost posezení a dělení na zóny je jednou z velkých předností Špejle. Zatímco barové židle u vysokých stolů v přední části nabízejí živý kontakt s ulicí a střední část zase dovoluje koukat pod ruce kuchařům, v salonku najdete klid. V uzamykatelných skříňkách se tu navíc schovávají nabíječky na telefon, nemusíte proto prosit o dobití za barem. Mezi stoly rostou fíkusy dubolisté, které ze salonku dělají zelenou oázu.




Aby hosté nemuseli kvůli mytí rukou až na toalety, vybavili architekti obě hlavní místnosti umyvadly. Lavice k sezení jsou potažené alcantarou, která se často používá na potahy autosedaček. Důraz kladli autoři návrhu také na osvětlení – nad stoly visí tlumené žárovky, zatímco nad barem leží jídlo v ostrém a až galerijním světle.



Zajímavým detailem jsou hexagonální dlaždice, které v zadní části plynule navazují na dřevěnou podlahu, aniž by byly zaříznuté. „Podlaháři nás proklínali,“ směje se architekt. Architekti je použili i na stěnách; výsledkem jsou divoké zubaté hrany. Nejnáročnější bylo vyřešit technické zázemí, které je opravdu malé. „Obsluha nosí jídlo z kuchyně, která je o patro níž, a tak jsme museli myslet na to, aby se jednotlivé provozní cesty nekřížily,“ popisuje architekt. Pomohlo třeba otočení směru schodiště.

A protože v zázemí nejsou žádné úložné prostory, musely posloužit stěny – jsou obložené vysokými policovými systémy z březové překližky, které sahají až ke stropu. Architekti přiznávají, že takové řešení není ideální, jinak ale kvůli limitované ploše postupovat nemohli. „Vyžaduje to velkou vnitřní organizaci personálu,“ dodávají. S realizací studiu pomáhala Česká interiérová společnost.


Špejle sem, špejle tam
Špejle najdete jak v pokrmech, tak na stěnách, které zdobí pravidelný potisk. U vchodu visí velká dřevěná instalace připomínající mikádo. Tuto oblíbenou stolní hru dokonce dostanete, pokud dorazíte s dětmi. Také grafické zpracování loga a nápojového menu odkazuje ke špejlím – jeho autorem je Jan Škuta.

„Prostor jsme vymysleli tak, aby měla obsluha co nejvíc času na hosty, musela se co nejméně starat o chod bistra jako takového a usmívala se i po osmihodinové směně,“ popisuje architekt. O autonomní provoz se stará propracovaný systém, který reguluje teplotu v interiéru i hlasitost hudby.


V bistru, kde se rozhodně nudit nebudete, si užijete jak neformální posezení s přáteli, tak důležitou pracovní schůzku. „Špejle může a nemusí být drahá restaurace,“ uzavírá architekt Krištof Hanzlík, „záleží, na kolik špejlí se cítíte.“
Špejle, design ateliér Coll Coll
Jindřišská 16, Praha 1
Jaký je Váš názor?
Související články

La Bottega Linka: Itálie nejen na talíři
RÁNO KÁVU VEČER VÍNO: Nový podnik nabízí celodenní pokušení
Momoichi Coffetearia: Nejkratší cesta do Japonska
Nejen Bistro od ateliéru mar.s: Posezení lepší jak doma
Phill's Twenty7: Obnažené bistro
Autor:
Přidejte se k Insidecor komunitě...
Insidecor
Insidecor na Instagramu