Londýnské studio Procter-Rihl se pustilo do odvážné realizace v brazilském městě Porto Alegre. K dispozici byl architektům pouze zlomek parcely o 210 m², na které postavili stavbu s úzkým obdélníkovým půdorysem jménem Slice.

V projektu se studio snažilo snoubit moderní britskou i brazilskou architekturu. Z Evropy si tým vypůjčil zálibu v asymetričnosti budov. Z brazilské zase velké otevřené prostory, využití betonu a dřeva, bazén, venkovní posezení a bohatou flóru – tu do prostoru zapojili po vzoru britské architektury v méně formálním kontextu.


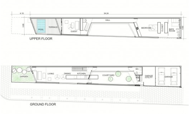
Budova je charakteristická svým úzkým nudlovitým půdorysem. Díky nepravidelné geometrii, jež byla při realizaci použita, interiér vypadá mnohem větší.


Stěny klopené v sedmdesátistupňovém úhlu opticky místnosti rozšiřují. Lidské oko je totiž zvyklé vnímat místa lemovaná pravými úhly a jakmile se rozjede hra s úhly, posuzuje velikost prostoru jinak.

Dvě patra domu jsou jedním velkým otevřeným prostorem. V takových případech zrak většinou vnímá prostor jako malý – tomu architekti zabránili použitím neortogonálních parametrů – šíře půdorysu se pohybuje mezi 3,7 a 4,8 metry.

Strop v centrální části domu se svažuje do výšky 2,1 metru před vstupem do ložnice. Díky tomu se soukromé prostory v domě zdají odlehlejší od společenských místností.

Nejvýraznějším prvkem interiéru a exteriéru zároveň je bazén v prvním patře. Jeho dno zasahuje do obývacího pokoje v přízemí, kterému tak zprostředkovává zajímavý vizuální zážitek jak za denního, tak nočního světla, kdy se rozzáří umělé osvětlení bazénu.

Pozemků jako je ten, na kterém stojí dům Slice, je dost. Málokdy jsou ovšem efektivně využité a hojně se při realizacích novostaveb expanduje za město. Tato tendence je jedním z problémů současné architektury.
Procter-Rihl Architects dokázali, že není vždy třeba megalomansky mířit za hranice metropole, ale lze chytře využít na první pohled malé pozemky a velikost prostoru dohánět interiérovým řešením. Architektura příštích dnů by měla jít v jejich šlépějích.
Jaký je Váš názor?

Autor:
Přidejte se k Insidecor komunitě...
Insidecor
Insidecor na Instagramu