Popis
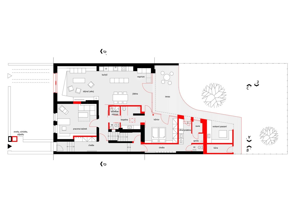
Rekonstrukce zahrnuje celkovou modernizaci domu postaveného ve 30. letech 20.století. Důraz je kladen na nové dispoziční uspořádání splňující požadavky moderní rodiny s možností vícegeneračního uspořádání. Při pohledu z interiéru do zahrady a naopak jsou kontrastně propojeny nové a původní stavební zásahy. Návrh vyzdvihuje symbiózu nového a starého v rámci další stopy v historii domu.
Designérstudio AEIOU Otevřít
Tagy-
Atypický byt v Praze
Atypický byt v Praze
-
Minimalistický byt v Liberci
Minimalistický byt v Liberci
-
Rodinný dům Křečovice
Rodinný dům Křečovice
-
Vila Praha 6 Haunspalka
Vila Praha 6 Haunspalka
-
Bezobložková pouzdra BELPORT
Bezobložková pouzdra BELPORT
-
Horská chata na úpatí Alp
Horská chata na úpatí Alp