Břehy u Libeňského mostu se pomalu plní novostavbami. Za velkým projektem Marina stojí developerská společnost Daramis, kterou už několik let jako hlavní architekt vede Gal Karagula. Bydlení u Vltavy ho nadchnulo, a tak si tu rovnou zařídil byt. Vycházel především z prvků, které definují lokalitu a s ní i celý prostor: přirozené světlo a voda. Kladl důraz na propracované detaily, vzdušnost a světlost bytu podpořil skleněnými prvky.


Vysoké bytové domy Marina Townhouse dokončil původem izraelský architekt teprve nedávno, už teď ale ví, že je o ně zájem. „Všechny byty už jsme prodali,“ vysvětluje. Za úspěšností projektu podle něj stojí nejen nadstandardní bydlení a skvělá občanská vybavenost, ale taky příroda. Domy obklopují drobné parky a z řady bytů se nabízí působivý výhled na vodu.

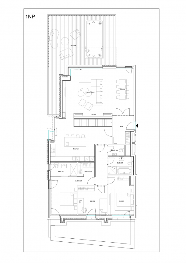
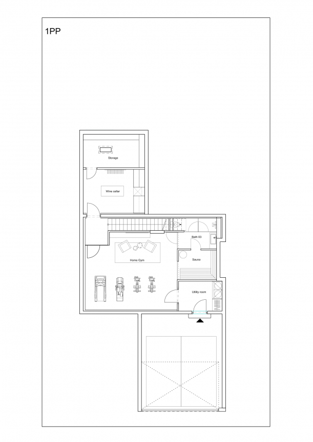
Sám architekt si vybral byt v přízemí. Už u vstupních dveří je jasné, jak je prostor koncipovaný. „Vždy se snažím navrhnout prostor tak, aby se v něm lidé dobře orientovali,“ popisuje autor návrhu. Vpravo vejdete do prostorného obýváku, po levé straně leží další pokoje a kuchyň. Schody vedou do suterénu, kam Gal umístil domácí fitness, saunu a bar. Právě tady najdete to správné odpočinkové prostředí. Ze suterénu se dostanete do garáže a skrze ni úplně ven. Součástí bytu je také prostorná terasa, do které Gal zasadil bazén.



Byt upravil architekt tak, aby byl co nejtransparentnější a vzdušný. Pracoval s přírodními barvami a světlým dubovým dřevem. Společenské dění se točí kolem krbu – hosté usedají na pohodlné sofa a pokud se zrovna vaří, můžou přihlížet od kuchyňského ostrůvku.

Dominantou interiéru jsou velké prosklené stěny, zasazené do kovových rámů. V přízemí vytvořil architekt dvě ložnice a koupelny. Součástí hlavní ložnice je dámská šatna. Stylové zázemí nabízí salonek s kosmetickým stolkem.



Co by Gal Karagula vyzdvihl na interiéru nejvíc? „Rozhodně detaily. Mám rád, když jsou i ryze technické prvky pojaté chytře a neruší estetiku prostoru,“ říká architekt. Na mysli má třeba minimalistické zábradlí, které zabudoval do stěny podél schodů, anebo vysoké bílé dveře, jež dělí kuchyň od soukromých pokojů a opticky prostor zvětšují.


V každé místnosti použil architekt akcent v podobě výrazného doplňku. Nad kuchyňským ostrůvkem visí na námořnických provazech skleněná svítidla Knot od české sklárny Brokis, která prodává firma Bulb. Stejná firma dodala lustr nad jídelní stůl. V obývacím pokoji stojí mimo jiné křeslo s otomanem, které navrhli v roce 1956 Ray a Charles Eamesovi. Podlahy s výrazným vzorem šipek dostali na starost ve společnosti Soliter Parket.




Kombinace dřeva a světlých barev se objevuje i v koupelnách, které dodala firma Asso. Pozoruhodná je 3D modelace bílých zdí – ze stěn vystupují geometrické tvary a vytvářejí zajímavou stíhnohru.






Nový rozměr dostane celý byt v létě. Dlouhé teplé noci budou mít jedinečné kouzlo. A to hlavně díky terase, která nabízí únik z rušného velkoměsta a uklidňující pohled na vodní hladinu.
Jaký je Váš názor?
Související články

Úsporné a chytré řešení bytu podle architekta Gala Karaguly
Gal Karagula: Mnoho budov dnes vzniká bez kontextu
Byt jako jeden velký večírek
Autor:
Přidejte se k Insidecor komunitě...
Insidecor
Insidecor na Instagramu