Vytěžit z malého prostoru maximum. To byl hlavní úkol původem izraelského architekta Gala Karaguly, který dnes pracuje v Praze pro developerskou skupinu Daramis. Majitel bytu v rezidenčním objektu si přál zrenovovat nevelké prostory tak, aby žádný metr nepřišel nazmar.

Původní návrh bytu byl naprosto standardní: z malé předsíňky se mělo vcházet do dalších místností bytu. Vstupní prostor však architekt v realizaci omezil na minimum a získal tak větší prostor pro obytné místnosti. Vchodové dveře tak vedou přímo do obývacího pokoje.

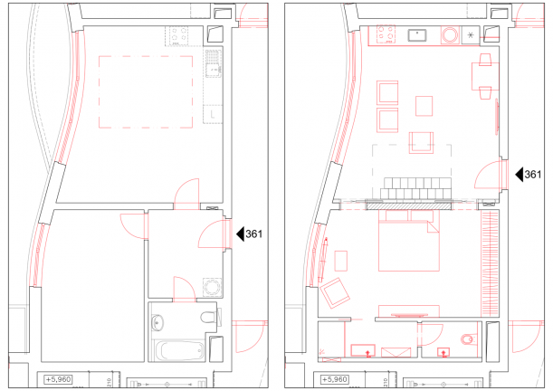
Před a po: původní řešení prostoru vidíte vlevo, nové vpravo. Gal Karagula vyřešil dispozice tak, že nepřijde vniveč jediný metr čtvereční.
I tato realizace dokazuje, že se vyplatí oslovit architekta v takové fázi projektu, kdy ještě pevně nestojí všechny stěny a může měnit dispozice, aniž by musel složitě vybourávat stěny. Architekt pracoval na projektu od začátku a včasnou intervencí dokázal využít každý metr čtvereční prostoru.

Opticky architekt zvětšil prostor použitými barvami, a to především bílou. Tu spojil s dřevěnou podlahou a materiály. „Dřevo je ideální způsob, jak regulovat teplotu interiéru. Nejraději mám přírodní dub, který rovněž prostor rozjasňuje,“ říká. Červené reproduktory, které přitahují pozornost, navrhl architekt Jerry Koza z Atelieru SAD.

V ložnici najdete postel od firmy Konsepti. Veškeré objekty, které tu najdete – například obrazy s očima – vytvořil sám architekt.


„V koupelnách rád používám kombinaci dvou materiálů: výraznější dlaždičky pro stěnu a zem v kombinaci se dřevem,“ vypráví architekt. Při rekonstrukci změnil dispozici koupelny a napojil ji na ložnici.


Jedním z nejzajímavějších prvků prostoru je schodiště vedoucí na rozlehlou terasu. Původně bylo spirálovité, architekt ho však zajímavě tvarovanými minimalistickými schody s čistými liniemi, jež zabírají méně prostoru. Všechnu zakázkovou výrobu provedla firma Lachman, podlahy Solitaire Parket.




V realizaci architekt Gal Karagula dokázal najít kompromis mezi malým rozpočtem a kompletním předěláním prostoru. Finance v tomto případě neinvestoval do drahého nábytku, nýbrž do dispozičně chytrého, úsporného, a přesto elegantního řešení. Líbí se vám jeho pojetí projektu?
Jaký je Váš názor?
Související články

Noblesní hra s prostorem ateliéru Ivana Dombková Architektura
Byt jako jeden velký večírek
Nedbalá elegance z Barcelony
Hravý skvost pražského Smíchova
Ilustrovaný apartmán studia SMLXL
Autor:
Přidejte se k Insidecor komunitě...
Insidecor
Insidecor na Instagramu