Dávno už tu většina z nich stát neměla. Jejich životnost, která se původně odhadovala na zhruba čtyřicet let, se ovšem navzdory předpokladům stále prodlužuje. Českým panelovým domům i bytům se však jen zřídka dostává takové péče, aby mohly platit za vzory kvalitního bydlení.
Renovace fasád se obvykle řeší pestrými barvami a povedené přestavby interiérů se také objevují pramálo. Panelové domy přitom poskytují domov skoro každému třetímu Čechovi: v Praze dokonce čtyřiceti procentům obyvatel. Ze statisíců podobných bytů nás zaujala přestavba jednoho konkrétního, která má s obecným fenoménem panelových sídlišť společného jmenovatele: radikálnost.
Na projektu žižkovského panelového bytu se potvrzuje produktivita časté těžkosti, které se všichni zúčastnění snaží obvykle vyhnout. Tedy že velký časový tlak často vede k výborným výsledkům. Od oslovení architektů po nastěhování klientů uběhl při tomto projektu pouhý půlrok.

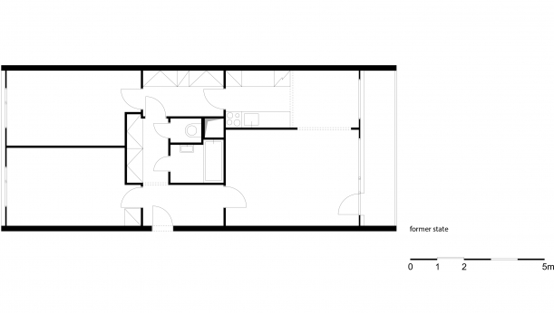
Panelový byt v původním stavu před rekonstrukcí.
Největší zásluhu na úspěšné realizaci připisuje architektonické studio BY architects osvícenosti klientů, kteří se zcela ztotožnili s radikálním konceptem přestavby. Své zadání přitom formulovali zcela jasně: požadovali bydlení pro mladou čtyřčlennou rodinu, dostatek úložných prostor, oddělenou kuchyň, velkou knihovnu, malou domácí pracovnu, dvě toalety s koupelnami a zachování průchodnosti bytu.


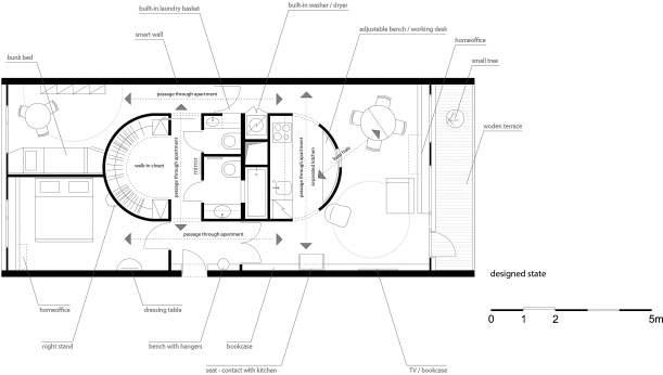
Architekti zmíněné požadavky vyřešili vložením sádrokartonového oválu do středu bytové dispozice o celkové velikosti třiasedmdesáti čtverečních metrů. Získali tím technické jádro bytu, do kterého mohli vložit kromě dvojice toalet, pračky se sušičkou a koupelny, také prostornou šatnu a kuchyň. Radikální řešení umožnila situace bytu, kde nosnou funkci mají pouze obvodové zdi.



Projekt v procesu - vizualizace navržených zásahů od By architects.

Ještě před začátkem celé rekonstrukce dali architekti majitelům šanci si všechny změny lépe představit přímo na místě - s pomocí papírového modelu v reálné velikosti umožnili klientovi otestovat prostor před finálním rozhodnutím.

Byla tím zároveň zachována důležitá myšlenka průchodnosti, protože prostor bytu může kolem vsazeného jádra volně probíhat i díky absenci dalšího přepažení. Opticky průchodnost podporují také kruhové otvory v oválu, které navíc přivádějí přirozené světlo do míst, kam před rekonstrukcí nemohlo.

Prostor jídelny oživuje především promyšlené řešení interiéru. Repasovaný nábytek zde doplňují ikonické židle Plastic Side Chair DSW od manželů Charlese a Ray Eamesových a dřevěný model CH24 Wishbone, který roku 1950 navrhl designér Hans Wegner. Prostorovou hru vtipně doplňuje dětská lokomotiva, kroužící kolem vloženého oválného jádra.

Interiéru vládne bílá barva lakovaného vestavěného nábytku i všech zdí, které příjemně kontrastují s tmavým dřevem. Pro police byla použita borová překližka a podlahu architekti vybavili novými dubovými parketami.

Vestavěná knihovna zabírá téměř celou podélnou stěnu obývacího prostoru, ve svém středu ovšem ponechává místo pro televizi a zavěšenou lavici, sloužící jako čtecí koutek.

Koncept sází na důmyslnost interiérového uspořádání. Architekti zmiňují, že při praktickém užívání bytu klienti velmi oceňují především umístění pračky a vestavěného koše na prádlo, který je přístupný z koupelny i chodby vedoucí k dětskému pokoji.

Kruhové a oválné motivy nacházíme po celém bytě. V ložnici rodičů například u nočního a toaletního stolku v podobě jednoduchých dřevěných polic půlkruhového tvaru.


S vložením oválného jádra byla velká pozornost věnována prostorovým detailům, které museli architekti řešit. Například ložnice a obývací pokoj jsou řešeny velmi účelně.Výsuvná deska nad topením slouží také jako pracovní stůl.

Atypicky rozvržený interiér architekti vybavili vestavěným nábytkem, který zdůrazňuje jedinečnost celého bytu. Elegance a funkčnost tak splývá v jednom prostoru. Umyvadla vznikla z variabilního materiálu Corian, stejně jako pracovní deska v kuchyni.

Nejčastěji zmiňovanou nevýhodou panelákových bytů bývá unifikace jejich dispozic v rámci celého domu. Tato i další chytré rekonstrukce však ukazují, že i ze šedivého základu se dá vykouzlit maximálně zajímavý prostor, splňující kritéria moderního bydlení. A můžeme si být jisti, že podobných realizací bude přibývat – s tak velkým počtem panelových bytů je jednoduše nutné pracovat.

Autor: Markéta Zdebská
Spolupráce: Jana Horecká, Pavla Hradilová, Marek Žáček, Jan Drška
Jaký je Váš názor?
Související články

Ilustrovaný apartmán studia SMLXL
Vzletná Letná
Autor:
Přidejte se k Insidecor komunitě...
Insidecor
Insidecor na Instagramu