Jak se z obyčejného bytu stane útulné a originální bydlení? O tom ví své architekti z ateliéru BY architects, kteří se pustili do kompletní rekonstrukce panelákového bytu, primárně určeného k pronájmu. Původní stav nebyl podle architektů nikterak přívětivý, ale jeho umístění v nejvyšším patře umožnilo využít rozlehlou terasu s nádherným výhledem.
„Inspirací nám byl klientův optimismus, a především prostor samotný. Takové nečekané orlí hnízdo s výhledem na celou Prahu,“ říkají k projektu architekti.

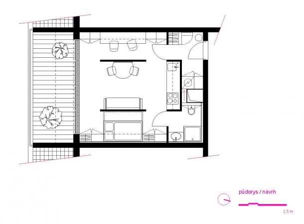
Původní paneláková jednotka měla koupelnu a toaletu v typickém umakartovém jádru, kam se vstupovalo z předsíně, respektive zakopávalo o boty tam i zpět. Kuchyň v takto malém bytě byla nesmyslně až za dvěma zatáčkami. Špatně oddělitelná spací část zase neumožňovala soužití páru s odlišným časovým nastavením denních aktivit.
V úvodních koncepčních úvahách a předběžném zařizování bytu jednotlivými kusy nábytku vyšlo najevo, že není zdaleka nejvýhodnější mít kompletně otevřený prostor. „Ty stěny najednou chyběly. Proto jsme navrhli jednoduché a až diagramatické členění na jednotlivé funkční zóny,“ dodává architektka.


„Naším cílem bylo především zpřehlednit provozní vazby, umožnit pohodlně si lehnout, pracovat, jíst. A to bez složitého skládání, zasouvání, otáčení či stlaní. Chtěli jsme udržet otevřenost prostoru, ale zároveň zachovat určité obytné zóny pro každodenní život,“ vysvětluje Markéta Zdebská z BY architects.


Architekti se zaměřili především na vlastnosti materiálů, od nichž se odvíjel vzhled interiéru. Byt má být nájemní, a tak architekti zvolili téměř nezničitelnou kaučukovou podlahu, od níž se odvíjelo vše ostatní.
„Když je podlaha takto neutrální a byt má působit přívětivě, je třeba pracovat s dalšími prvky. Těmi se staly dělicí panely. Ty kontrastují se světlou podlahou a stropem, a zvýrazňují tak koncepci prostorového uspořádání. Zároveň interiér příjemně zateplují,“ říkají architekti.

Členění prostoru podporuje také osvětlení, které nabízí různé režimy i míru intimity. Architekti mu věnovali velkou péči. „Mám ráda světla, která skutečně plní svou základní funkci: osvětlují dle potřeby daný prostor. Nerada pracuji se světlem jako s dekorací, rozhodně ne primárně,“ vysvětluje architektka Markéta Zdebská.

Kuchyně, koupelna i prádelna jsou chytře přimknuté k instalačnímu jádru. Do kuchyňské linky se navíc podařilo architektům integrovat klimatizační jednotku, což bylo jedno z klientových přání. Kolmo ke kuchyni se řadí tři zóny: hlavní obytný prostor, pracovna a ložnice.



Veškeré vybavení bytu vzniklo na míru a je přirozeně integrované do prostoru. Klient si navíc přál vybavit byt akustickými předstěnami, což se do paneláku, kde je všechno slyšet, ideálně hodí.



V předsíni stojí prostorná šatní skříň s botníkem a úklidová skříň s vestavěnou pračkou, sušičkou a košem na prádlo, do nějž vede shoz z koupelny přimknuté z druhé strany instalačního jádra.


Byt má k dispozici velkou terasu, ze které se otevírá jedinečný výhled na celou Prahu. Proto ji architekti zahrnuli do obytného prostoru. Pobyt venku i uvnitř, respektive pohyb tam i zpět, zpříjemňují dvě široká posuvná křídla nové prosklené stěny a šikmá, šest metrů dlouhá, screenová roleta přes celou šíři bytu. Takové otevření bytu si vyžádalo specifické řešení radiátorového soklu, který je vyzvednutý nad podlahu a obložený kaučukem a mřížkou ve stejné barvě.


„Na celém projektu nás nejvíc bavil klientův přístup. Otevřenost a důvěra, se kterou naši práci přijímal,“ říká na závěr architektka Markéta a dodává: „Měla jsem možnost v již hotovém bytě strávit celý den, a to při focení s Aleksandrou Vajd. Byli jsme tam my čtyři a kocour a bylo nám skvěle. Nesmírně jsme si to užili a večer se nám ani nechtělo pryč.“


Bělehradská 48
Praha 2
Jaký je Váš názor?
Související články

Studio Flat White vytvořilo útulnou rekonstrukci bytu v severském stylu
Kouzelná rekonstrukce pavlačového bytu od No Architects
Ateliér SMLXL: Práce na rekonstrukcích bývá zajímavější než na novostavbách
Autor:
Přidejte se k Insidecor komunitě...
Insidecor
Insidecor na Instagramu