Obdivuhodný dům, tak bychom mohli nazvat rezidenci v Tel Avivu, která se může pochlubit neotřelým řešením. Tým architektů ze studia Pitsou Kedem Architects zde propojil interiér s exteriérem a pohrál si také s dispozicí zahrady, která se nachází v různých úrovních domu. Celé atmosféře, připomínající oázu klidu a harmonie, přispívá také stále se měnící choreografie obrazců ze světla a stínů.

Dům, který dostal jméno J House, má vyvýšenou střechu a už z dálky září jeho bílá fasáda s částečnou perforací, odkazující na tradiční regionální mřížkovou strukturu. Pohled z ulice směřuje na pevnou kamennou cestu, chodník, asfalt a venkovní stěnu, za níž je rezidence částečně skryta. Odhaluje pouze části, jež jsou rozděleny do vodorovných pásem a poskytují majitelům soukromí podle potřeby.

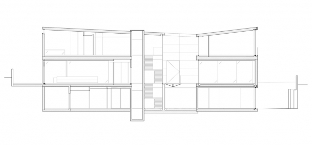
Třípodlažní rodinný dům o rozloze 800 metrů čtverečních se nachází v Herzliya, proslulé části okresu Tel Aviv. Je postaven ve svahu, čímž vzniknul originálně řešený prostor, propojený s venkovní dispozicí. „Parcela je velmi dlouhá. Využili jsme ji k tomu, abychom vytvořili jedinečnou a dynamickou fasádu postavenou ze dvou protichůdných úhlů, které jí dodávají jistou živost,“ říkají architekti.


Do vstupní části domu vede můstek, kterým se dostanete rovnou do prvního patra. Svahovitý terén odhaluje bohatou zahradu s rostlinami a stromy, které obklopují spodní úroveň suterénu.


Veliké okno lemující celý obvod stavby zajišťuje dostatek přirozeného světla a zároveň, díky mřížkové perforaci, dopřává majitelům i lehký stín. Po celý den se tak v interiéru odehrává jedinečná hra světel a stínů, jejichž tempo udává přes den slunce a v noci záře vnitřního osvětlení.



Po vstupu do obydlí se návštěvníkům otevírá rozlehlý prostor prvního patra, které je zároveň přízemím. Z jedné strany je totiž možný vchod přes most a z té druhé plynulý přechod rovnou do zahrady. Nachází se zde obývací zóna, kuchyň i jídelna, které se rozprostírají směrem k terase s bazénem v zadní části budovy.


Architekti zvolili bílý nábytek, lehce doplněný o černé tóny, teplou dřevěnou podlahu i designové osvětlení, které se stává šperkem celé kuchyně. Svoboda designu je úzce spojena s jeho složitostí napříč úrovněmi. Jistý minimalismus s důrazem na detail se stává hlavním motivem interiéru.



Posuvnými bloky lze prostor otevřít a maximálně propojit vnitřní prostory s těmi venkovními. Na částečně zastřešené terase se rozprostírá venkovní posezení s bazénem.


O kousek dál byste našli venkovní jídelnu, která je další příjemnou relaxační zónou. Všechny tyto aspekty, integrované do návrhu, rozšiřují rozměr celé architektury. Nejen různá venkovní posezení, ale i anglický dvůr, odrážející se hladina bazénu či vstupní most. Vše přenáší stejnou myšlenku, a tou je přítomnost a jedinečnost daného okamžiku.





Spodní část domu, kde se nachází suterén, je z části odhalená s prosklenými stěnami a krásným výhledem do zahrady a z části pod zemí. Hodně prosvětlené jsou zde například ložnice, a naopak méně denního světla zaujímají části, které jej tolik nepotřebují.


Prostory zahrnují kromě ložnic s koupelnou také soukromý salonek s barem, který je obložen černým kamenem a protihlukovou stropní izolací. Zde mohou majitelé pořádat společenské akce, večírky i běžné posezení s přáteli do pozdních hodin bez nějakého omezení, aniž by rušili okolí.


Spodní chodbu zdobí černé strukturované obložení, které kontrastuje s bílými zdmi i schodištěm, jež propojuje všechna patra obytných zón.

Železné schodiště je prosvětlené a vzdušné. Díky celoproskleným stěnám je viditelné i zvenčí, a tvoří tak nedílnou estetickou součást domu.



Nejvyšší část domu je jistým způsobem nejzajímavější. Ukazuje sestupnou zahradu v celé své kráse, poskytuje výhled na bazén i okolní stěny a taktéž na všechna venkovní posezení. Kromě dalších ložnic se tu nachází i pracovna a odpočinkové zóny propojené dřevěnou podlahou, tak jako tomu je i v jiných koutech domu.





Po setmění dům ožívá vlastním životem s kouzelnými odrazy a všudypřítomnými stíny.




Jestliže se vám líbil dům v Tel Avivu, nahlédněte s námi také do našich končin. V malebných Beskydských horách se nachází Prosklený dům s výhledy na panorama Beskyd nebo v jiné části třeba Hotel mezi plůtky.
Jaký je Váš názor?
Související články

V Brazílii vzniklo bydlení plné přírodní harmonie
Luxusní rezidence na břehu řeky Leie v Belgii vás okouzlí
Pagoda House: Dům na pomezí velkoměsta a hor
Vila filmaře Michaela Baye v L.A. nepostrádá dynamiku ani styl
Když je dům uměleckým dílem: obytný ráj na březích Atlantiku
Autor:
Přidejte se k Insidecor komunitě...
Insidecor
Insidecor na Instagramu