V průběhu minulých týdnů jsme zde publikovali články o stavbách, kde dominuje jeden stavební materiál. Jednalo se o dřevo, beton a kámen. Tento projekt je poslední ze série článků a možná nejvíce jedinečný: architekti z norského studia JVA tu totiž použili jako hlavní materiál hliník. Dům se nachází na přímořském pobřeží a jeho okolí poskytuje krásné uklidňující výhledy na hladinu moře.

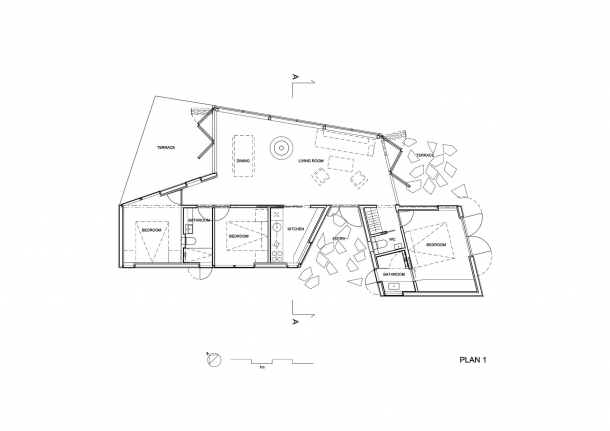
Tento dům nahradil původní už nepoužívanou a nepraktickou chatu, která se na místě nacházela. Nová budova o rozloze 90 m2 se dělí na tři části, kdy část prostřední, tedy obývací pokoj, propojuje ložnici v pravé části s ložnicemi v levé části. Vchod do kuchyně se také nalézá v obývacím pokoji. Koupelny se pak nachází vždy v blízkosti ložnic.


V domě najdeme celkem tři venkovní prostory, které tvoří významný prvky domu: vchod a dvě terasy. Obě terasy se nacházejí podél obývacího pokoje, každá z jedné strany, a lze na ně vejít skrze posuvné dveře.



Díky velkým proskleným stěnám v obývacím pokoji zde najdeme krásné výhledy na moře přímo z pohovky, a pokud by nám ani tyto výhledy nestačily, jsou zde dvě boční terasy s pohodlnými lehátky, kde si pohledů na pobřežní krajinu mohou obyvatelé domu užít dosyta.



Co se týče hliníkového materiálu, který architekti použili jako voděodolné obložení domu, najdeme ho nejen v exteriéru. Hliníkové prvky se totiž objevují i uvnitř jako součást interiéru. Je tomu tak například u okenních či dveřních rámů nebo u některých prvků nábytku.


Hliníkový obklad je také specifický tím, že se v něm odráží okolní krajina a tvoří tím zajímavý a proměnlivý pohled z venku.


Dům navíc leží mezi dvěma velkými kameny, které poskytují domu určité zázemí a klid. Díky tomu dům plynule navazuje výškou na okolní terén.


Hliníkové obložení opravdu nevídáme často a je to škoda. Projekt domu na norském pobřeží ukazuje, jak zajímavý materiál hliník je. Jasně zde vidíme výhody tohoto materiálu: voděodolnost, trvanlivost, zajímavý vzhled a proměnlivost světelných odrazů.
Jaký je Váš názor?
Související články

Spisovatelské doupě od Architectare propojuje jednoduchou stavbu s přírodou
Lesní domek působí jako betonová skrýš
Rekonstrukce horské stodoly ve Švýcarsku ukazuje dřevo ve všech podobách
Autor:
Přidejte se k Insidecor komunitě...
Insidecor
Insidecor na Instagramu