Do Krkonoš nemusíte vyrážet jen na lyže, ale taky za pivem. V Horní Malé Úpě najdete pivovar Trautenberk, který unaveným horalům a lyžařům nabízí lahodné osvěžení. Součástí horské chaty je i ubytování ve stylu alpských nocleháren. Za projektem stojí architektonický ateliér ADR, který se s projektem dostal do finále České ceny za architekturu 2018.


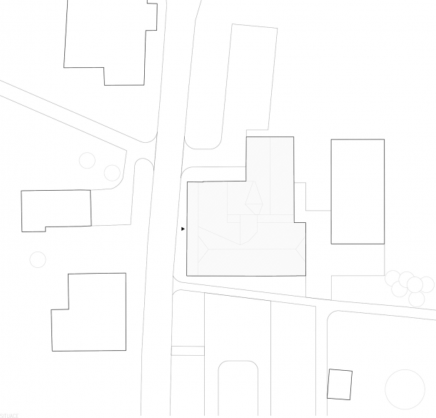
Chata stojí na samé hranici s Polskem, vznikla začátkem 20. století a po starém místním rodu dostala jméno Tippeltova bouda. Jak to tak bývá, za komunismu sem přibyla řada necitlivých zásahů a stavba dostala i nové přízvisko – hotel Družba, rekreační středisko ROH.



S osudem kdysi slavné chaty to nevypadalo dobře. Chátrala tak dlouho, až se dostala do havarijního stavu. Podnikatel Martin Kulík, který vlastní místní skiareál, se ale rozhodl chatě navrátit původní slávu, citlivě ji renovovat a přispět k oživení celé Malé Úpy. A tak formou akciové společnosti založil pivovar Trautenberk. Podíl na projektu tedy mají také další zdejší chataři, kteří si přejí, aby Malá Úpa žila i mimo lyžařskou sezónu.

Martin Kulík si zároveň přál kvalitní architektonické zpracování, a tak oslovil ateliér ADR, se kterým už měl dobrou zkušenost. Architekti Aleš Lapka a Petr Kolář pro něj navrhovali třeba hostivařský pivovar Hostivar. Rekonstrukce krkonošské chaty byla o poznání komplexnější. „Chata byla v podstatě na zbourání. Martin ji ale chtěl zachránit, což je dobře, protože historická stavba hezky zapadá do okolí. Náklady se nicméně vyšplhaly vysoko, nakonec byly dvakrát větší, než kdybychom chatu strhli a postavili novou,“ vypráví architekt Aleš Lapka.

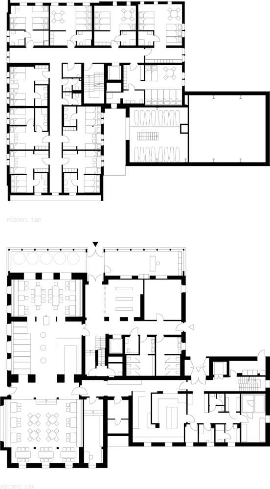
Architekti museli nahradit většinu konstrukčních prvků, očistit prostor od nepovedených přestaveb, obnovit tradiční dřevěný obklad s kamenným soklem a předělat přístavbu ze zeleného falcovaného plechu.

Zároveň bylo nutné zajistit, aby chata dokázala odolat drsným horským podmínkám a lyžákům, ve kterých hosté do restaurace občas přijdou. Od toho se odvíjela volba materiálů. Ve vstupní části použili architekti gumovou průmyslovou rohožku, jinde zase podlahu na bázi kaučuku. V restauraci položili podlahu ze dřeva, která bude přirozeně stárnout. Architekti zároveň nepracovali s drahými designovými produkty, spíš se soustředili na funkčnost a odolnost.


Dřevěné podlahy v restauraci doplňuje nábytek s kovovými detaily. Veškeré truhlářské práce obstarala společnost Kelner, židle dodala firma TON. Teplo zajišťují kamna od českého výrobce Kanuk.



Vyřezávané lustry navozují atmosféru krkonošských pohádek. Architektům je nabídl bývalý ředitel hotelu Družba s tím, že je zachránil z původní chaty. „Jde o pomyslný otisk doby,“ říkají architekti.



Kontrast k dekorativním svítidlům tvoří přes sto let staré ocelové konstrukce, které architekti odkryli při renovaci. „Měly i původně výraznou barvu. Pravděpodobně šlo o protipožární nátěr,“ vysvětluje architekt Aleš Lapka. Ryze konstrukční prvek se v tomto případě stal dominantou interiéru. Při renovaci narazili architekti také na unikátní pískovcové schody, do té doby skryté pod linoleem.


Ubytování najdete ve vyšších patrech a pod střechou. Cestovatelé tu přespávají na velkých dřevěných pryčnách, naskládaní vedle sebe. „Víme, že takový nocleh není pro každého. Nápad jsme převzali z alpských chat, kde je tento způsob nocování naprosto běžný. Horalové přijdou, odloží batoh, vyspí se a druhý den zase vyrážejí na cestu,“ popisuje architekt Aleš Lapka. Součástí ubytovny je rovněž spacákovna. Tady dostanete matraci a prostě se uložíte na zem. Kdo si potrpí na klasiku, může složit hlavu v apartmá.








Lyžařská a horalská výstroj není zrovna skladná, a tak museli architekti myslet na úložné prostory. Chytře je zabudovali do postelí, v pokojích najdete i oddělené přihrádky pro jednotlivé cestovatele. Vestavěný nábytek vznikl ze smrkového dřeva. Součástí ubytovny je víceúčelový sál s pingpongovým stolem a promítačkou. „Vytvořili jsme prostor, kde můžou horalové promítat fotky z horolezeckých výprav. Podobně to chodí například na chatě Jelení louky v Peci pod Sněžkou,“ říká Aleš Lapka.


Pivovar dokáže uvařit až deset tisíc hektolitrů piva ročně. U varen objevíte několik detailů, které dokazují, že si architekti s návrhem vyhráli. Na stěny v pivovarském zázemí například obtiskli větve a šišky, které kopírují logo pivovaru. Branding dostal na starost ateliér Dynamo design, který pro chatu vytvořil také jednotný informační systém.





Pokud si pivovar Trautenberk zamilujete a zároveň toužíte po dalším dobrodružství, prozkoumejte černobílou mapu u vchodu do restaurace. Najdete na ní další chaty v okolí, kde Trautenberka čepují. Když vás už nohy dál nedonesou, není nic jednoduššího než se svalit do místní spacákovny a do hor vyrazit až ráno.
Minipivovar Trautenberk, ADR architekti
Horní Malá Úpa 87
Malá Úpa 542 27
Jaký je Váš názor?
Související články

Javornická palírna: rodinný podnik, který vznikl srdcem
Pivovar Hostivar
Autor:
Přidejte se k Insidecor komunitě...
Insidecor
Insidecor na Instagramu