Mladé ruské studio INT2architects představuje návrh interiéru přístavby domu pro mladou rodinu s dvěma dětmi. Projekt třípatrového domu je prezentován vcelku jasnými půdorysy doprovázenými velice realistickými vizualizacemi, pro nezkušené oko často i zaměnitelnými s fotografiemi. Takovýto způsob prezentace nutno číst s jistým odstupem z několika důvodů.
Vizualizace je zobrazení prostoru generované počítačem a může, i když ne vždy, vytvářet nereálné podmínky (světelné, barevné i finanční). Její prvotní účel je srozumitelné zobrazení návrhu klientovi a pro autora představuje nástroj k přibližnému prověřování navrženého. Prezentace takových obrázků, kdy jen ztěžka poznáme rozdíl s fotografií, diváka klame a zvyšuje jeho očekávání od výsledku, obecně pak také jeho představy dosažitelného standardu a možná i jeho touhu po zobrazovaném způsobu života.
Ve světě 3D je vše je dostupné a možné. Problém nastává ve chvíli konfrontace představy a faktického výsledku. Ty se budou vždy lišit. Rendrovací programy pokryjí modelovanou hmotu vzorem povrchu, nastaví hloubku jeho vrásnění, odlesky jeho povrchu. Předejdou přílšné novosti nebo naopak opotřebení a mohou zahladit nedokonalosti ve sladění barvy, na styku jednotlivých materiálů. Řemeslník není přesný jako počítač, detaily možné ve virtuálním světě nemusí být nutně uskutečnitelné v tom reálném. Materiály není jednoduché napojovat tak, aby přechody mezi nimi byly bezchybné, obsahují přirozeně vady a rozdíly, musíme je tedy pečlivě vybírat a pokud to možnosti dovolují, testovat jejich kombinaci fyzicky. Je tedy nutné korigovat naše očekávání při jejich nahlížení. Pojďme to společně zkusit v tomto případě.

Posaďte se u nás. Kávu?
Vizualizace zobrazují interiér, dle autorů kombinující skandinávský design měkkých nuancí v povrchu a detailu světlých materiálů a vložené kontrastně barevné prvky hrubého ,,industriálního” rázu.


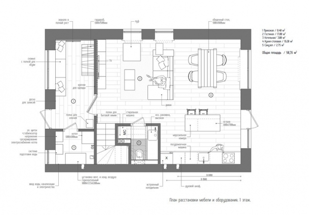
Půdorysy a řezy, nejvýpovědnější část projektu, je důležité se s trpělivostí začátečníka naučit číst. Definují základní neměnné prostorové vztahy a rozměry, vše ostatní se dá lehce variovat. Nikdy také nemají možnost vás klamat. INT2architects zveřejňují pouze plány prvního a třetího patra. V levé spodní části vidíme koupelnové jádro opakující se v každém patře, nejpevnější část půdorysu, zbytek je prostě dělen nábytky nebo lehkými příčkami.


Vstupní hala s praktickou pohotovostní koupelnou navazuje na otevřený prostor kuchyně s jídelnou a obývacím pokojem. Světlá dřevěná dlažba a hrubá bílá omítka jsou doprovázeny různorodými kusy nábytku, i židle u jídelního stolu se liší jedna od druhé, stejně tak světla nad ním. Kuchyň kombinující bílé a dřevěné desky s mramorovou linkou a částečně i obkladem zdi, je pomyslně vymezená kachličkovým obkladem s kontrastní černou tabulovou zdí a pánvemi zavěšenými nad kuchyňským ostrůvkem se snídaňovým pultem.

Vizualizace je velmi detailní - rajčata na stole, polštáře, květináč s mátou, nápisy na zdech. Ale při detailnějším pohledu prozrazuje svou nereálnost. Zelenina i látky jsou nepřirozeně vypjaté, přestože by se rády jen tak ležérně povalovaly. Interiér je zaplněn luxusními desginovými kousky, od masivního jídelní stolu s vysazenýma nohama přes tři typy židlí a křesílek až po osvětlení.

Celým domem prostupuje blok koupelen a toalet, které uvnitř i vně pracují s principem kontrastu. V barvě a měřítku obkladů vymezují jednotlivé prostory relaxace – vana, sprchový kout, toaleta. Opět neodolatelně perfektní obrázek je odhalen pohledem na styk kachliček v rozích na zdi ve sprchovém koutě. Bílé spáry se trochu zašpiní, zkosený roh a strop sprchového kouta je těžký jak na realizaci tak údržbu. Je důležité si rizika uvědomovat i s tím, že ale existují jejich řešení.


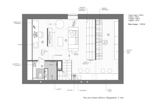
Druhé patro, ložnice dětí a rodičů, má odkryté dřevěné konstrukce stropu a jednoduchý design – odstíny šedé, pro dospělé dřevo, pro děti bleděmodrý nátěr. Pomineme-li vždy skvělé světelné podmínky, můžeme sledovat perfektně rovné latě masivní dřevěné podlahy s širokými spárami a stejně jako prkna a trámy stropů. Dřevo se však prodlužuje a smršťuje změnami vlhkosti a teploty. Pracuje, kroutí se, spáry tedy mezi sebou nemají stejnou šířku a odsazení od zdi se liší prkno od prkna. Chování dřeva se však vždy odvíjí od jeho kvality (proto se také ceny dřeva někdy tolik liší) a péče, kterou mu věnujeme.





Podkroví je věnované odpočinkovému prostoru mediatéky s pracovnou, barem a šatnou. Opět se opakují světlé základní plochy hrubé bílé omítky a prkenných podlah, dokonce i kachličkový obklad zdi u baru je stejný jako v kuchyni v přízemí. Bar s pípou a kávovarem podpírají rudé barely, po kachličkovém obložení se plazí tovární lampy s po zdi taženými černými kabely. Příčka oddělující pracovní plochu a televizi je z neomítnutých perforovaných betonových dlaždic opatřně bezpečně rámovaných dřevěnými latěmi.






Zde můžeme sledovat několik komplikovaných styků – dřevěného obložení krovu a omítkou či dlaždicemi, již zmiňovaného dřevěného rámu s betonovými tvárnicemi a opět prkenné podlahy se zdmi. Každý materiál pracuje jinak a vyniknou tak mezi nimi spáry - místa umožňující jejich pohyb.

Při realizaci je možné prakticky vše. Buď najednou anebo ve fázích, nejsou-li naše finanční možnosti neomezené. Klíčové je se zaměřit na pevné části jako podlahy, obklady, omítky, parapety, dveře, topení a sanitární vybavení. Při navrhování interiéru je podstatné strávit nějaký čas přemýšlením o prostoru, jejž měníme, očekáváních budoucích obyvatel, funkcích, které musí být zahrnuty a stylu, který je nejvhodnější. Všechny aspekty je třeba pečlivě naplánovat a provést: vždyť v místě budou dotyční trávit každý den spoustu času. Dobré vizualizace mohou pomoci ukázat, co můžeme od prostoru očekávat. Jen s pomocí odborníka však můžeme tohoto výsledku dosáhnout.
Jaký je Váš názor?
Související články

Byt vytvořený na míru gentlemanovi
Když je dům uměleckým dílem: obytný ráj na březích Atlantiku
Vzdušnost + útulnost = byt kyjevského ateliéru 2B.group
Dotek přírody uprostřed pulzujícího velkoměsta
Polská nádhera
Autor:
Přidejte se k Insidecor komunitě...
Insidecor
Insidecor na Instagramu