Vzdušný a útulný zároveň. Takový je byt od ukrajinského ateliéru 2B.group, který začal vznikat na konci roku 2011 v Odesse. Majitelka si přála vytvořit místo, jež bude sloužit jí i jejím hostům. Pojďte se podívat, jak se úkolu studio chopilo.
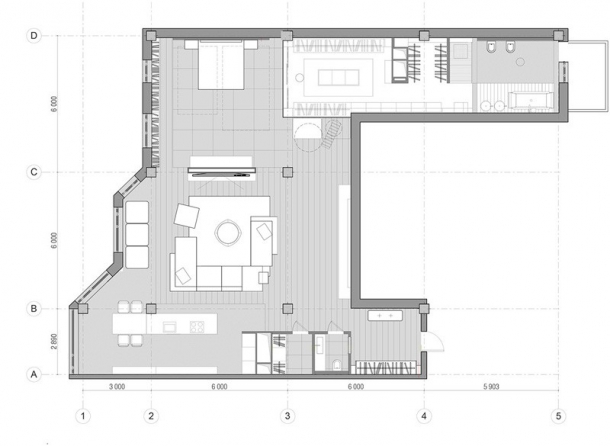
Pro interiér o 180 metrech čtverečních je charakteristické minimum dveří a stěn, díky kterému architekti byt opticky otevřeli. Obývací pokoj, kuchyně, pokoj pro hosty, ložnice majitelky a dvě koupelny jsou tak v podstatě součástí jednoho velkého prostoru. Zdi jsou použity výjimečně, je jimi odděleno hlavně hygienické zázemí.

Přechod mezi jednotlivými místnostmi znázorňují použité materiály a vyvýšené části. Dřevěná podlaha v obývacím pokoji kontrastuje s betonovou podlahou v kuchyni, která je pro vaření díky jednoduché údržbě jako dělaná.

Stylově na ni navazují betonové sloupy. Tento materiál však není jedinou dominantou interiéru:, na různých místech bytu architekti použili cihlovou zeď: jednou bílou, jednou přirozeně červenohnědou. Pomocí různých textur a materiálů oddělili jednotlivé místnosti, aniž by k tomu potřebovali dveře a zdi.



V bytě rovněž nenajdete žádné haly či chodby. Jednotlivé dispozice jsou od sebe odděleny skříněmi či panelem s televizí. Místnosti se přelévají jedna v druhou, aniž by však omezovaly soukromí obyvatel apartmánu.


Celý byt je protkaný uměním. Architekti vytvořili v prostoru poutavá zákoutí, do kterých umístili právě umělecké instalace.

Zmínku zaslouží i práce s osvětlením, kterou architekti předvedli. Pomocí různých typů osvětlení vytvořili odlišné atmosféry a definovali jednotlivé funkce bytu: nad jídelním stolem najdete velkou lampu, která vytváří intimní prostředí a v jednom z koutů vytvořili ve stropě dva otvory, které zajímavé nasvětlili. Máte tak pocit, že se za nimi skrývá obloha, na níž lze vylézt po žebříku. Žluté křeslo Cloudscape Chair v designu od Dieselu u nás koupíte v obchodě Konsepti.

Plochu projektu nezabírají ani objekty postavené v prostoru. Například knihovnu architekti umístili ke stěně tak, aby nepůsobila jako překážka v prostoru a orámovali jí okna v ložnici majitelky.

Dominantním prvkem ložnice jsou světla, která jsou vystouplými linkami spojená se zemí a navazují na ně i malé lampičky na čtení u hlavy postele.






V koupelně použili architekti hygienické vybavení, které připomíná umělecká díla – například skleněnou vanu, která stejně jako umyvadlo udivuje svou transparentností, a zajímavě tvarovaná umyvadla.



I v druhé koupelně mysleli architekti na transparentnost, kterou symbolizují prostupnost prostoru.

Ateliéru 2B.group se v jedné realizaci podařilo skloubit několik vlastností, které z bytu v Odesse vytvářejí jedinečný projekt. Odstraněním všech překážek v prostoru vytvořili vzdušný prostor, zároveň však použitím rozmanitých materiálů a nábytku nedopustili, aby místo působilo chladně. A co si o realizaci myslíte vy?
Jaký je Váš názor?
Související články

Athénská akropolis jako na dlani
Spojením historie a moderny k unikátnímu minimalismu
Minimalisticky bydlet a kochat se
Autor:
Přidejte se k Insidecor komunitě...
Insidecor
Insidecor na Instagramu