Tento web používá k poskytování služeb, personalizaci reklam a analýze návštěvnosti soubory cookie. Používáním tohoto webu s tím souhlasíte.

V pořádku

RD v Družci

Popis

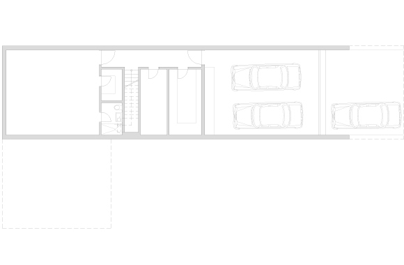
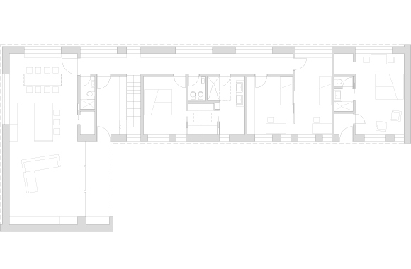
Navrhovaný objekt je citlivě zasazen do území, dbá na pozitivní využití výrazné morfologie pozemku a snaží se být pokorný k místu i okolí. Výrazně svažitý terén a snaha o zachování jeho původní modelace umožnily zapustit část nadzemního obytného podlaží a celý technické zázemí pod okolní úroveň. Dům tak splývá s pozemkem, dává dýchat sousedním objektům a nevytváří výškovou bariéru.

Designér

PROGRES ATELIER Otevřít

Tagy

Rezidenční projekty Zahrada/ Terasa PROGRES ATELIER moderní