Nápadité řešení rekonstrukce malého bytu, který nese název Bazillion, od litevského studia YCL spočívá ve vytvoření dvou zcela odlišných pásem. Jednomu dominuje sporé osvětlení a hliněné dlaždice, druhému pak světlé barvy zalité paprsky denního světla. Přestože se jedná o skromný prostor, architektům se do něj podařilo vnést interaktivitu umožňující vysokou funkčnost jednotlivých místností.
Bazillion o rozloze 45 m2 se nachází v domě s téměř stoletou minulostí blízko historického jádra hlavního města Litvy, Vilniusu. Stáří domu udává některé klíčové aspekty tohoto bydlení: tlusté stěny, rozměrné okenní otvory či vysoké stropy. Před tím, než se architekti z tamějšího studia YCL pustili do práce, šlo o dvoupokojový byt z portfolia místní developerské společnosti. Protože toto uspořádání majitelům nevyhovovalo, rozhodli se požádat tým pod vedením Tomase Umbrasase o návrh na kompletní přestavbu.

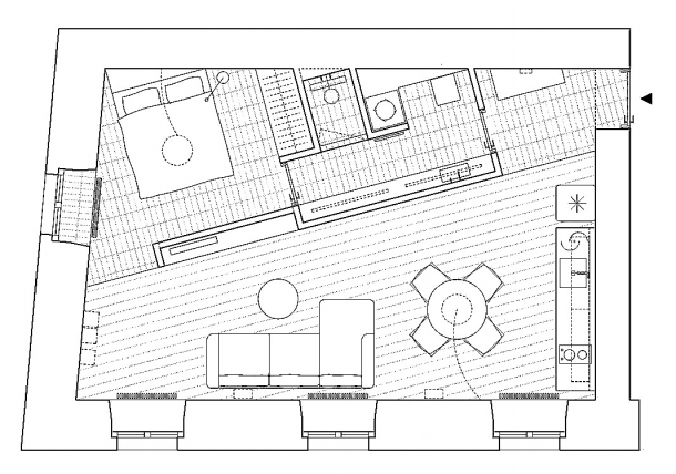
Hlavní myšlenkou projektu se stalo rozčlenění obdélníkového půdorysu na dva nepravidelné lichoběžníky, které budou reprezentovat zcela odlišné atmosféry. Jakoby se v bytě vytvořily dva zcela odlišné světy: intimní, kde vládne přítmí a tlumené odstíny barev, a společný plný světla a minimalismu.


Rozdělení malého bytu na dvě zóny docílili architekti pomocí sofistikovaně umístěné stěny přímo doprostřed projektu. Ta vytvořila výraznou hranici mezi místnostmi, kde vládne šero a klid, a mezi světlem zaplavenými prostory určenými pro konverzaci či relaxaci.
p://www.insidecor.cz/public/content-images/cz/article/ycl-bazillion-apartment-plan-60741_big.jpg

Uspořádání bytu se řídí logickou orientací v prostoru – dál od oken (a tedy i od přísunu světla) se nachází ložnice, koupelna a vstupní hala. Pocit intimity pak v ložnici posiluje přepážka, která ji odděluje od obývacího pokoje. Přestože se pokoj nachází ve světelně izolovanější části objektu, paprsky světla sem procházejí skrze otvor na krb uprostřed stěny z portlandského cementu.




Díky diagonálně umístěnému přepažení zůstávají jednotlivé prostory variabilní ve vzájemném propojení i jednoduché proměně v navzájem izolované místnosti. Koupelna tak zůstává v interakci s ostatními zónami rezidenčního bydlení – nezarámované dveře po obou stranách se dají zcela otevřít a v bytě tak rázem vzniká průchozí kruhový prostor. Umyvadlo a úložné skříňky umístěné podél dělící stěny svou délkou a černým dřevěným povrchem nábytku evokují tvary klasické kuchyňské linky. Tmavé povrchy desek jen dotvářejí privátní atmosféru, která je pro tuto část tak typická.


Do oranžova laděné dlaždice designéři použili i při obkladu sprchového koutu. Ten tak zcela koresponduje s celkovým charakterem koupelny a ložnice a je jeho plynulým pokračováním.

Interiér multifunkční místnosti na druhé straně cihlové stěny je zcela jiného rázu - slouží zároveň jako obývací pokoj, jídelna i kuchyně. Bílé stěny, betonový strop a dubovou podlahu ozařují světelné paprsky přicházející z vysokých oken a šero sem již nemá přístup povolen. Charakteristická je také trojčlenná barevná škála pokoje: bílá – šedá – černá, která kontrastuje s vloženou přístavbou v barvě tenisové antuky.

Obývací pokoj tvoří šedá pohovka a černý odkládací stolek orientovaný čelem ke slínkové zdi s vestavěným krbem. Stěna z hliněných dlaždic svou strukturou a materiálem evokuje povrch městských fasád a vytváří tak přirozenou tapetu, která připomene nejedno zákoutí pobaltské metropole. Použití cihel také odkazuje k historické tradici staveb, které se díky nedostatku obvyklého stavebního materiálu – kamene, používaného v minulosti poměrně standardně napříč celou Evropou, uchýlilo k výstavbě z pálených cihel. Vilnius, Riga ale i Trakai si pobaltskou cihlovou gotikou získali široký věhlas již ve 13. století.


Kuchyňský kout byl vytvořen v duchu minimalismu – geometrické tvary a bíločerné kombinace tvoří jeho jádro, ať už se jedná o úložné krychlové skříňky umístěné nad pracovní plochou v nepravidelných formátech a polohách nebo o bílou retro lednici od ikonických Smeg, kteří již šedesát let udávají trendy na poli domácích spotřebičů.



Litevské studio YCL, které má s přestavbou bytů v historických domech své zkušenosti, vytvořilo pomocí dvou zcela odlišných zón prostor, kde má každý kout svou funkci. Kontrastní řešení stavebních materiálů navíc umožnilo architektům a designérům umístit do prostoru menší množství decentního nábytku, které dokáže ve svém okolí vyniknout. Díky pečlivému rozčlenění a promyšlené práci s propojením jednotlivých místností tak Bazillion disponuje, i přes značně limitovanou rozlohu, všemi předpoklady ke spokojenému bydlení až dvou osob.
Jaký je Váš názor?
Související články
-
BY architects ukazují atypickou přestavbu typického panelákového bytu
-
Tradiční cihly cobogó působí v brazilskému bytu jako umělecké dílo
-
House AB: Úspěšná renovace díky zachování starého a přidání nového
-
Byt od studia YCL by mohl být vzorem francouzského luxusního bytu
-
Úsporné a chytré řešení bytu podle architekta Gala Karaguly

Autor:
Přidejte se k Insidecor komunitě...
Insidecor
Insidecor na Instagramu