Mladé architektonické studio Platform 5 sídlící v Londýně funguje na trhu již od roku 2006 a specializuje se na veřejné i rezidenční projekty. Mezi jeho největší úspěchy patří ocenění v sekci třiceti nejtalentovanějších architektonických kanceláří časopisem Wallpaper. Není proto divu, že majitelé viktoriánského domu svěřili rekonstrukci právě ateliéru Platform 5.

Architekti byli požádáni, aby upravili stávající půdorys domu ve tvaru písmene L tak, aby poskytoval vhodnější společenské prostory ideální pro rodinné zázemí. A to včetně kuchyně a jídelního koutu, který se otevírá do zadní zahrady.

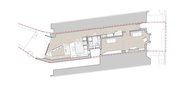
Projekt získal název Fazetový dům; odkazuje na šikmé vnitřní plochy a střechy vytvořené kroucením půdorysu.
Modernizováním a rozšířením stávajícího půdorysu se podařilo vytvořit dostatečné množství úložných prostor pro celou rodinu a zároveň interiér prosvětlit. Důraz na kvalitní zpracování každého detailu se stal jednoznačnou předností interiéru.

Velké okno poskytuje interiéru dostatek přirozeného osvětlení a neustálý kontakt s přírodou.
Obývací pokoj se nachází hned při samotném vstupu do domu. V interiéru je patrná tlumená barevnost v tónech od bílé přes pískovou až po odstíny šedé. Jednou z mála reminiscencí původních prostor je krb v zelené barvě a zdobené štukové obruby. Zařízení obývacího pokoje je nyní ryze komfortní – od starého houpacího křesla až po minimalistická sedátka v čele místnosti.

Obývací pokoj lze rozdělit na dvě části pomocí složitelné stěny ve středu místnosti.

Jednoduchá křesílka, osvětlení a stará černá kamna skvěle dotváří atmosféru útulného pokoje.

Důmyslně skryté kliky a madla v obložení zdí neztrácí praktickou funkci a zároveň celý interiér tiše propojují, aniž by jej narušiliy dalším tvarem či materiálem.
Dubové parkety v elegantním rybím vzoru pokrývají celou podlahu bytu. V minimalisticky zařízené kuchyni jsou kombinovány s bílými porcelánovými dlaždicemi, jež opticky i materiálově odlišují omyvatelné části určené kuchařskému umu od těch jídelních.

Za tuto realizaci získali architekti cenu Don't Move, Improve! od nezávislé platformy New London Architecture za nejlepší interiér.
Netypicky seříznutá kuchyňská linka poskytuje dostatek pracovní plochy a svým tvarem koresponduje s netradičním půdorysem. Zajímavým detailem, propojujícím obě části bytu, je malé okénko umístěné nad kuchyňskou linkou.

Interiéru jednoznačně vládne bílá barva, jež byla použita zejména kvůli optickému zvýšení stropu a celkovému rozšíření prostor.

Jednoduchým optickým trikem, jenž spočívá v narušení pravidelnosti parket, se architektům povedlo interiér symbolicky a nadčasově ozvláštnit.
Dalším příkladem vynikající truhlářské práce je i dřevěná lavice, jež tvoří spojnici mezi kuchyňskou deskou a dveřmi do zahrady. Neobvyklý půdorys místnosti se tak díky jejímu tvaru maximálně využije a vytvoří se i dostatek míst k sezení pro případné návštěvy.

Bílé ikonické židle Vitra Plastic Side Chair od manželů Eamesových interiér nezatěžují a vytváří spolu s dřevěnou lavicí komfortní základ pro rodinná setkání.

Dostatek úložných prostor je v kuchyni zaručen minimalisticky řešeným policovým systémem.

Světlo do kuchyně přivádí také malé střešní okno.
Jídelnu doplňuje na míru zhotovený asymetrický dřevěný stůl, jehož deska je vytvořena z parket. Jeho netradiční tvar nám napovídá, že je navržen tak, aby mohl být umístěn ve stejném směru jako vzor na podlaze.

Architektům se i přes rozsáhlé úpravy domu podařilo zachovat původní punc anglické solidnosti. Zakomponováním několika originálních prvků a prosvětlením interiéru dosáhli neopakovatelného výsledku.
Jaký je Váš názor?
Související články

Peter's House: Dům plný chladné oceli i zeleně
Kachličky plné příběhů
Cocoon House: Perla městské ulice
Z továrny na boty luxusní rezidencí
House AB: Úspěšná renovace díky zachování starého a přidání nového
Hra o kachličky aneb když designéři navrhují obklady
Autor:
Přidejte se k Insidecor komunitě...
Insidecor
Insidecor na Instagramu