Starými továrnami i moderními střešními zahradami. Tím vším se inspirovali architekti z dánského Studia David Thulstrup při realizaci svého posledního projektu pro renomovaného fotografa Petera Krasilnikoffa. Soukromá rezidence, která spojuje původní umělcovo studio s nově přistavěným bydlením, se nachází v přístavní části Kodaně a obsahuje velkorysý prostor o velikosti 500 m2 plný zeleně a surových materiálů.

Dům tvoří tři podlaží: přízemí s hlavními společenskými místnostmi, první patro s ložnicí a příslušenstvím a střechu, která ukrývá kousek přírody i výhled do okolí.




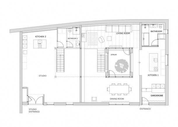
Díky přání klienta zachovat cihlové stěny původní garážové struktury, která se na pozemku nacházela před kompletní přestavbou, bylo problematické vnést do objektu dostatek světla a zároveň tak splnit i druhé přání majitele - integrovat do interiéru co největší množství zeleně. Architekti to vyřešili vnesením proskleného atria přímo do centrální části domu – zelená plocha tak propojila všechna podlaží a zároveň jim dodala dostatek přirozeného světla.


Flóra atria byla pečlivě vybrána tak, aby připomínala listnaté skandinávské lesy.
Podobně i jako ostatní části domu i přízemí je koncipováno s akcentem na atrium – jednotlivé obytné místnosti obepínají tuto centrální buňku a kousek zeleně i příval denního světla tak najdeme téměř ve všech částech domu. Po vstupu se ocitáme v menší šatně, která nás svým vzhledem připravuje na to, jak to bude vypadat dále – po pravé straně se nachází zachovaná cihlová stěna, která vytváří kulisu i přilehlému kuchyňskému koutu.

Právě do kuchyně vedou dále naše kroky. Ta sestává z volně umístěné kuchyňská linka z teraca, jejíž pozadí tvoří již zmíněná cihlová stěna, zde ještě doplněna o dřevěné masky. Pracovní stůl byl umístěn schválně tak, aby si mohl člověk zpříjemnit chvilky vaření pohledem na zelené zátiší přímo před ním. Zajímavý kontrast materiálů pak vzniká díky betonové podlaze a obložení z téhož materiálu, pouze tmavšího odstínu.


Za kuchyňskou částí se nachází koupelna, která využívá taktéž teraco, tentokrát pro jiný účel – masivní umyvadlo a obložení sprchového koutu přináší do prostoru jemnou mozaiku, která ozvláštňuje jinak poměrně sterilní bílou plochu.

Kolmo k těmto místnostem leží obývací pokoj, který nepostrádá posezení s výhledem na vzrostlý strom nebo možnost zapálit si v chladných večerech v krbu. Díky nahrazení betonového obložení bílými stěnami a dřevěným trámovým stropem, působí místnost mnohem komorněji a hřejivěji než převážně betonová kuchyně.


Podél třetí strany atria se nachází schodiště vedoucí do horních pater a podél té čtvrté pak objevíme jídelnu, která skýtá dvě velkoryse prosklené plochy: atrium a vysoké okno vedoucí do ulice. K zachování soukromí slouží silné purpurové zástěny od proslulých Kvadrat. Jinak si prostor zachovává čistotu tvarů i materiálů – chladný beton doplňuje pouze dřevěný stůl a ojedinělé kusy nábytku, s přírodním pozadím však působí místnost živě a příjemně.



První patro nenajdeme na celém půdoryse přízemí, ale jen v jeho části, což architektům umožnilo ponechat v jídelně i kuchyni výrazně vysoké stropy, které nechávají prostory zhluboka nadechnout. Obvyklé rozměry obývacího pokoje a koupelny naopak vnáší do místností útulnost a potřebné soukromí.


Schodiště vedoucí do horních pater bylo vyrobené ze zčernalé oceli, která vnáší do interiéru industriální atmosféru.
Velikost však není jediný rozdíl mezi oběma podlažími – zatímco přízemí je plné chladných a surových materiálů, v horním patře převažuje dubové dřevo, a to jak na stěnách i na podlaze. Totožný materiál pak architekti využili i k zakrytí úložného prostoru naproti schodišti. Díky tomu, že se listnatý strom z atria klene i do vyšších pater, ani zde nechybí potřebný kousek zeleně a kontakt s přírodou.


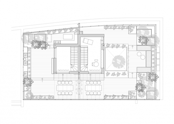
Pomocí schodiště je možné se dostat i na nejvyšší platformu domu – střešní zahradu. Ta je tvořena dvěma přilehlými částmi: do jedné se vstupuje ze studia, které na místě stálo již před přestavbou, druhá je pak spjata s novým objektem. Přímo uprostřed se nachází konstrukce, která zastřešuje přístupové schodiště. Podél pak najdeme nejenom rostliny a stromy, ale také prostorná posezení pro nejedno slunečné odpoledne.


Za zmínku stojí i samotný exteriér budovy. Přestože jde o poměrně jednoduchou kvádrovou strukturu s přistavěným modulem na střeše, díky obložení z latěk z tvrdého brazilského dřeva a klenoucím se korunám stromů, působí dům zvenku velmi přirozeně a nenásilně. Dřevěné obklady mají navíc výhodu postupného stárnutí a změny barvy v industriální stříbřitou šeď.
Pečlivá struktura a výběr materiálů daly vzniknout domu, kterému nic nechybí: velkoryse i intimně pojaté místnosti či umně vytvořená zákoutí plné zeleně. Architekti pod vedením zkušeného Davida Thulstrupa, který si vyzkoušel spolupráci s francouzským architektem Jeanem Nouvelem či Američanem Peterem Marinem, vytvořili dům, kde se interiér prolíná s exteriérem a vše je promyšlené do posledního detailu podle potřeb klienta.
Jaký je Váš názor?
Související články

Cocoon House: Perla městské ulice
Oak Pass House: Dubová oáza v Beverly Hills
K eleganci rezidence El Mirador přispívá i použití železničních pražců
Nenápadná hra s přírodou ateliéru Hipposdesign
Vytvořte si svou osvěžující oázu
Autor:
Přidejte se k Insidecor komunitě...
Insidecor
Insidecor na Instagramu