Vřesoviště byla vždy plná tajemství a melancholické nálady. A přesně tuto atmosféru použili architekti noa* network of architecture jako ústřední inspiraci pro rekonstrukci horského hotelu. Bývalý hotel Moarhof na konci údolí Valser v jižním Tyrolsku proměnili v nový čtyřhvězdičkový hotel Silena, který je obestřený tajemnem a mystickou atmosférou. Stejně jako okolní ryzí příroda.



Hotel se nachází 1 300 metrů nad mořem a díky své organické struktuře a integraci do krajiny se zdá, že vyrůstá přímo ze země jako místo klidu, síly a duševní rovnováhy, které je navržené do těch nejmenších detailů.


Vnější kovová fasáda připomíná bažinné rostliny. Struktury kapradin zdobí jak exteriér hotelu, tak i jeho interiér. Hosté, kteří do těchto míst zavítají, se můžou těšit na luxusní zážitek plný relaxace. Do všech čtyř podlaží vnesli architekti i dotek Asie. Kromě elegantních pokojů se zde nachází také rozsáhlý relaxační komplex se saunami a bazény. „Pro konečný výsledek byl rozhodující okolní archaický charakter krajiny. Stejně jako jihovýchodně-asijský dotek interiérů i rozsáhlý doprovodný program, který si klient tolik přál,“ vysvětlují architekti.





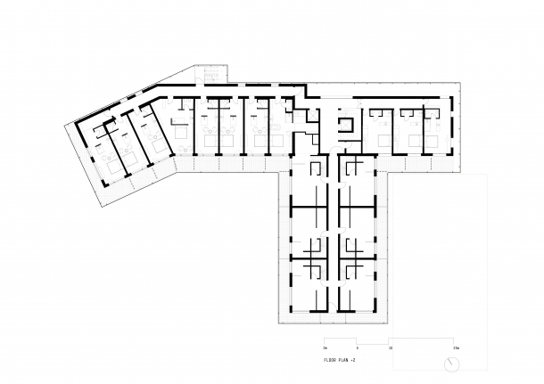
Nejstarší část původního hotelu se nachází na jihozápadní straně objektu. V průběhu rekonstrukce byla tato část z většiny zbourána a přepracována podle asijského konceptu. Struktura jihovýchodního křídla zůstala zachována. Můžete zde spatřit harmonické propojení starých a nových konstrukcí, ke kterým přispívají i zemité barvy a hliníková panelová fasáda.


Architekti renovovali první a druhé patro hotelu, v nichž nově navrhli a rozšířili pokoje s balkony. Každý z pokojů teď disponuje prostorem více než 30 metrů čtverečních. Třetí patro bylo kompletně přestavěno a nabízí další pokoje a apartmá s vlastní saunou a wellness oázou.


Vřesoviště, přírodní motivy i jihovýchodní Asie dominují designu všech 29 nově postavenýmch pokojům a apartmá, včetně čítárny, wellness zón, restaurace, lobby a salonku i knihovny. Architekti záměrně integrovali exteriér do samotného konceptu interiéru. Zdi zdobí tapety s motivy snové přírody, jež dodávají pokojům měkkou a beztížnou atmosféru. Lůžka s kvádrovou konstrukcí, bílými pokrývkami a zelenými přehozy zase podtrhují romantický dotek. Útulnou atmosféru s nádechem tajemna pak dokreslují tmavé dřevěné podlahy i nábytek a ostatní interiérové doplňky.





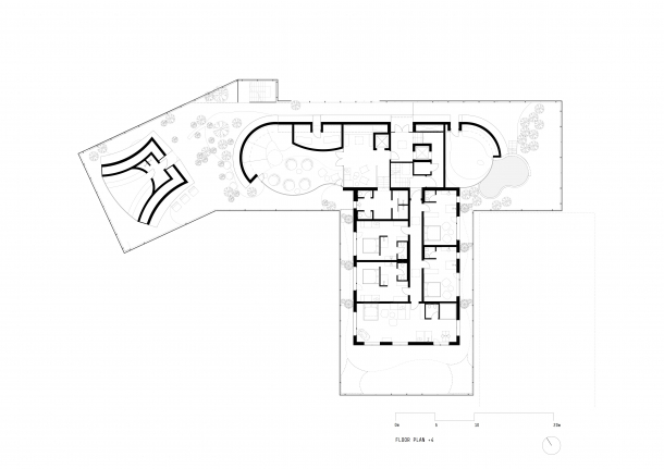
Na střešní terase byste našli panoramatickou saunu, relaxační místnost, salonek a střešní zahradu, bohatě osazenou mechem a trávou. Samotná střecha svým vzhledem ideálně zapadá do zeleně okolních hor i celého přírodního prostředí.

Hosté se mohou potkávat nejen ve společných saloncích, ale také u dobrého jídla v restauraci. Ocení zde jistě prosvětlený a vzdušný interiér i krásné výhledy do širokého okolí. Rozšířená a renovovaná restaurace, včetně kuchyně a rozsáhlé venkovní terasy, se nachází v patře hned nad wellness centrem.



Celé přízemí hotelu patří již zmíněnému wellness a relaxaci. Najdete zde novou saunu, kosmetický areál, dvě relaxační místnosti a krytý bazén. V jižní části se nachází nový zahradní salonek a z části krytý venkovní bazén. Po vzoru asijských tradic zde nechybí ani provoněná čajová knihovna.






Z prostor hotelu na vás dýchne opravdové mystično, v němž se nedá dělat nic jiného, než se podvolit zdejší atmosféře a užívat si plnými doušky opojné relaxace.


Architekti v tomto koutě ryzích hor vytvořili komplex, z něhož si hosté odnesou příjemné zážitky. Podařilo se jim propojit architekturu i design s okolní přírodou, a vytvořit tak intimní tajemnou atmosféru hotelu Silena.
Přemýšlíte-li, kam za relaxací a Itálie vás neláká, co takhle zavítat do exotičtější destinace. Třeba do Číny do Bývalého cukrovaru, jež se proměnil v exkluzivní resort Alila Yangshuo.
Jaký je Váš názor?
Související články

Tady je Trautenberkovo. Ateliér ADR navrhl horský pivovar s ubytováním
Tmavé chodby plné erotiky. Lenka Míková navrhla tajuplný hodinový hotel
Bývalý cukrovar se proměnil v exkluzivní resort Alila Yangshuo
Autor:
Přidejte se k Insidecor komunitě...
Insidecor
Insidecor na Instagramu