Jak vhodně proměnit panelákovou nástavbu z 90. let v moderní byt pro mladou rodinu? Možná banálně znějící problém, který však svými dispozicemi skýtá mnohé limity a nesnadná řešení pro nejednoho architekta či interiérového designéra. Na začátku stála čtyřčlenná rodina, která se na první pohled zamilovala do rozměrné terasy a výhledu bytu v pražských Malvazinkách. Kdo by také zdejší vilové čtvrti odolal, vždyť již od 17. století se ve zdejším svažitém terénu zakládaly malebné vinice. Byt sice prošel základní rekonstrukcí, ale stále nabízel velký potenciál a chyběl mu individuální punc.
Investoři proto vyšli do boje s neutuchajícím pocitem nedostatečně využitých prostor. Především majitelka si přála dodat novému bydlení estetično a duši, ale nebyla si jistá, kdo by se uměl se složitou dispozicí úspěšně poprat. Při hledání vhodného kandidáta zabrousila také na insidecor a právě na náš tým se obrátila s žádostí o radu.
Tým insidecor majitelům nabídl konzultaci – na základě jejich požadavků a představ poté vybral čtyři nejvhodnější kandidáty z řad architektů a designérů. Majitelé poté přistoupili k osobnímu setkání s každým z nich. Velmi dobře si včas uvědomili, že v tak individuálním projektu, jakým je rekonstrukce bytových prostor, se nejedná pouze o vytvoření esteticky zajímavé koncepce, ale i o vytvoření vztahu k samotnému architektovi, dobrý pocit ze vzájemné komunikace i vybudování důvěry. Jen tak lze dosáhnout toho nejlepšího možného výsledku. Na základě několika schůzek se manželé rozhodli pro designérské duo Vrtiška•Žák, které jim sedlo nejen v otázkách vkusu a funkčnosti, ale i osobnostně.

Designéři Roman Vrtiška a Vladimír Žák ve svém studiu na Praze 2. Více o nich a jejich projektech se můžete dočíst v našem rozhovoru.
Hlavními požadavky pro manžele se dvěma dětmi bylo obsáhnout v projektu pro čtyři členy navíc i hostinský pokoj. Manžel pochází z Portugalska, a proto u sebe mají časté návštěvy. Z tohoto důvodu se v návaznosti na omezené limity mezonetového bytu hlavním tématem stalo vhodné vyřešení dispozic, které by do sebe pohodlně vměstnaly veškeré požadavky na životní styl mladé rodiny. Dosavadní půdorys tak musel projít mnoha nutnými změnami.

Původní podoba bytu na Malvazinkách před zásahem designérů.

Originální dispozice bytu, která byla několika klíčovými zásahy adaptována na současné požadavky rodiny.

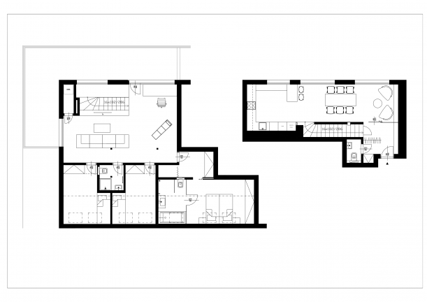
Půdorys prostor z pera designérů ze studia Vrtiška-Žák.

Již v původním návrhu bytu byl záměr jasný – spojení moderních materiálů a skla s přírodními.

Srovnání původního stavu jídelny se schodištěm a po zásahu designérů.

Prvotně problematický prostor s nešťastně řešeným schodištěm - dnes prosvětlený a rozlehlý obývák s dětskou "schovkou".

Z tmavé, dispozičně nepromyšlené koupelny se stala po zásahu designérského dua chlouba celé realizace.
Vstupní chodba upustila od zděných příček a byla nahrazena odlehčenou variantou v materiálu průhledného skla. Prostor mezi chodbou a jídelnou se tak vizuálně propojil, otevřel a opticky zvětšil. Celou realizaci pak designéři prosvětlili precizními svítidly od belgických Delta Light - zde například zapuštěnou variantou osvětlení z řady Grid.

Původní zděnou nahradila vzdušná skleněná příčka mezi chodbou a jídelnou.
Základním rysem interiéru se staly jednoduché linie a moderní materiály, které se smísily se starším nábytkem a doplňky rustikálního rázu. Pro setkávání členů rodiny a případných návštěv bylo potřeba vytvořit vhodný společný prostor, který pro samotnou rodinu nebude působit příliš předimenzovaně a zároveň poskytne dostatek prostoru kamarádům či příbuzným. Jednou z prvních dispozičních změn se stala transformace původního obývacího pokoje na prostor s několika funkcemi – kuchyni s jídelnou a mohutným stolem i útulným čtenářským posezením. Čistou linku interiéru designéři udrželi i v detailech použitých podnožek pod masivní jídelní deskou, a to konstrukcí Diamond od Master & Master nebo v ikonických Eamesových křesílkách DSW, která prostor příjemně provzdušnila i opticky přitažlivým kobercem.


V kuchyni převládá bílá barva, žlutá křesílka a tmavé dřevo vytváří svěží barevný kontrast.

Masivní dřevěná deska stolu dominuje jinak jednoduché kuchyni.
Schodiště vedoucí do druhého patra prošlo kompletní přestavbou. V přízemí jídelny bylo sice kompletně uzavřeno stěnou, díky novému otvoru nad schodištěm však nebyl omezen přísun denního světla. Zábavným a originálním prvkem se zde totiž stala síť, kde si můžou hrát děti. Tzv. „schovka“ také slouží jako příjemný komunikační bod mezi jídelnou a horním obývákem. Tento prvek navíc obě patra nenásilně propojil a vyřešil problematické čištění okna, které bylo v předchozí koncepci jen obtížně přístupné.

Síť dává najevo, že byt obývají hravé děti.
Původní zeď u schodiště v patře byla nahrazena rozměrným úložným systémem na míru, ve kterém nalezla vhodné útočiště třeba televize a další elektronika. Právě v této části vidíme ukázkový příklad kombinace starého a nového, kdy se nové neutrální prvky mísí s domáckými elementy a eklektickým stylem. Moderní sedačka v ocelově šedé barvě je doplněna starším konferenčním dřevěným stolkem v rustikálním stylu a orientálním kobercem. Jako jemná nitka se bytem line zářivě žlutý akcent, tentokrát v prvku pracovního stolku, který nenápadně doplňuje průhledná sedací ikona Louis Ghost Chair od Kartell. S několika málo dispozičními změnami provedenými s jemnou lehkostí a citem, se tak podařilo z prostoru vytvořit prosluněný obývací pokoj.

Neutrální tóny opět rozbíjí žlutá barva jako jemný akcent celé realizace.

V bytě byla původně velká ložnice a koupelna, která se přeměnila na pokoj pro děti, pokoj pro hosty a menší koupelnu. Z dětského pokoje se stala velká ložnice pro majitele, kde nechybí druhá koupelna – designéři se opět rozhodi eliminovat zeď a nahradit ji sklem, které povýšily na další originální a odvážný prvek celého interiéru. Koupelnu vyzdvihli zajímavě řešenou stěrkou od BOCA, která místnosti dodala funkčnost a strukturu příjemně rezonující s měděnými prvky zrcadla, okenic i vanových podnoží. I zde se designéři museli potýkat s nemalým úkolem a přizpůsobit současné produkty stávajícím kanalizačním rozvodům. Kdyby se jim to nepodařilo, museli by zcela měnit již hotovou dispozici.

Sklo místo zdi je zvlášť u koupelny odvážný prvek.
Místo ušetřili i přípojkami ukrytými za čelem postele vyrobené na míru, kde skrze mezery ve dřevěných prknech vedli zásuvky s přípojnými body. Jemně kolorované podlahy v celé realizaci pak dodával Princ Parket.

Pomocí několika zkušených zásahů designérů ze studia Vrtiška•Žák se podařilo ze standardizovaných prostor panelové nástavby vytvořit umělecký kus interiéru s vlastní duší, ušitý přímo na míru potřeb a přání jejich obyvatel. A co vy, už vyhlížíte svého architekta?
Jaký je Váš názor?
Související články

V hlavní roli bílá
Secesní moderna ateliéru OOOOX
Skrz dveře do zahraničí
Byt plný hudby
Autor:
Přidejte se k Insidecor komunitě...
Insidecor
Insidecor na Instagramu