Není nad to, být obklopen tím, co máte nejraději. Majitelé apartmánu v Kyjevě jsou vášniví čtenáři a milovníci umění. Proto je jejich byt tak trochu knihovna a zároveň minigalerie s jedinečnými uměleckými díly.



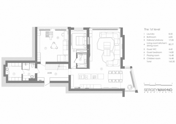
Dvoupodlažní byt o 212 metrech čtverečních vytvořili architekti ze studia Sergey Makhno Architects, kteří do něj na přání majitelů vnesli ducha umění. Interiér je z větší části otevřený, bez výrazného dělení jednotlivých obytných zón. Prostor získal více přirozeného světla a příjemně se provzdušnil.


Při rekonstrukci se architekti zaměřili na jednoduchost s důrazem na detaily a zajímavé textury. V bytě není mnoho nadbytečných věcí. Vše, co má být vidět, vidět je, a naopak co má být skryto, je šikovně schováno. Například úložné prostory byly zabudovány tak, aby zachovaly vizuální jasnost bytu.


Z chodby je díky otevřenému prostoru vidět do hlavní obytné části, která začíná obývací místností s přilehlou kuchyní a pokračuje až do jídelního koutku. Všechny zóny propojuje dřevěná podlaha, která dodává celému interiéru teplo domova.


Navzdory doteku umění je byt laděný do minimalismu. Každý detail interiéru má nějakou funkci, ať už estetickou, či multifunkční. Jídelnu zdobí plastické obrazy, které jsou moderní připomínkou prehistorických otisků do kamene. U velkého jídelního stolu se mohou majitelé bytu kochat nejen uměním, ale i výhledem na město.



Kuchyni oživuje velký obraz domorodé ženy, která jako kdyby držela ochrannou ruku nad srdcem domova. Převládá zde neupravený beton, doplněný bílými akcenty, dřevěným kuchyňským nábytkem a měděnou stěnou, která postupně pokračuje až do obývací části bytu.




Jak jsme již zmínili, majitelé bytu velice rádi čtou. Proto architekti zvolili obývací pokoj jako vhodné místo pro založení velké knihovny s oblíbenými knihami.

Dlouhá sedací souprava nabízí dost místa také pro návštěvy. Tento společenský prostor přímo láká k dlouhým večerům s přáteli u sklenky vína a debaty nad literárními autory i napínavými příběhy.


V prvním podlaží se nachází jedna z ložnic. Její stěny jsou celoplošně obložené dřevem. Skříň ze stejného materiálu se tak stává téměř neviditelnou. Pokoj oživují designové lampy i výrazné, tyrkysové povlečení.


Hned u ložnice najdete koupelnu. Tmavé tóny, obklady připomínající beton, dřevo i bílé doplňky dodávají intimní atmosféru určenou pro nic nerušenou očistu těla i mysli.








Hlavní ložnice v prvním patře má hromadu denního světla. Prosklená stěna nabízí opět krásný výhled na okolí Kyjeva. Součástí ložnice je také koupelna a toaleta, oddělená skleněnými bloky, díky nimž se i sem dostává dostatek světla.



Zaujal vás interiér tohoto múzou políbeného bytu? Vydejte se s námi na prohlídku také do jiných ukrajinských apartmánů, které svým minimalistickým řešením a zajímavými materiály okouzlí nejednoho návštěvníka. Poznejte Byt v Odesse od kyjevského studia 2B.group nebo Apartmán v Kyjevě s elegantními prvky.
Jaký je Váš názor?
Související články

Maximální využití prostoru se v Kyjevě povedlo bez ztráty elegance
Vzdušnost + útulnost = byt kyjevského ateliéru 2B.group
Autor:
Přidejte se k Insidecor komunitě...
Insidecor
Insidecor na Instagramu