Na malebném řeckém ostrově Paros najdete rezidenci, která vyniká otevřeným prostorem a krásou přilehlé krajiny. Atmosféru okolní přírody a čerstvý vzduch zde mohou obyvatelé nasávat přímo z pohovky obývacího pokoje, jež je samotným centrem domu. Vydejte se s námi na prohlídku do teplých krajin.

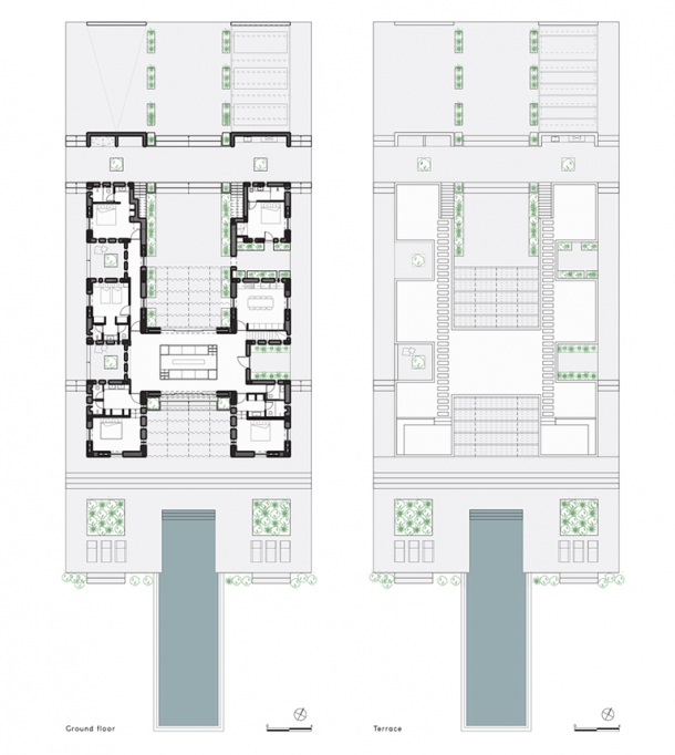
Za vznikem budovy stojí architekti ze studia VOIS Architects, kteří toto letní sídlo nazvali Horizon. A to ze dvou důvodů. Nejen že stavba připomíná písmeno „H“, ale také proto, že z interiéru jsou nádherné výhledy na venkovní horizont, a to z obou stran. Propojení interiéru s exteriérem dělá toto místo ještě kouzelnějším.

Ostrov Paros se nachází v Egejském moři a svou rozlohou 194,5 metrů čtverečních patří k jedněm z největších kykladských ostrovů. Je také jedním z nejvyhledávanějších cílů tohoto souostroví, které navštěvují turisté z celého světa.


Dům vystupuje z krajiny, která se lineárně vyvýjí, jako by byla sama jeho součástí. Vstup vede přes rozšířenou cestu v lehce nakloněné rovině a umožňuje návštěvníkům pozvolnou procházkou dojít až k hlavní obytné zóně, při níž mohou obdivovat scenérii řecké přírody.





Budova je tvořena dvěma hlavními obytnými částmi, s otevřeným prostorem přesně mezi nimi. Skrze tuto centrální část domu, která je uzavíratelná v případě špatného počasí, proudí v jinak krásných dnech čerstvý vzduch. A nejen ten, ale i energie a střídavé obrazy mořského horizontu s tamními vrcholky kopců dělají z tohoto místa ústřední bod celého domu.


Právě obývací část, ve které lidé tráví nejvíce času a kde se odehrávají společně strávené chvilky, se nachází v samém centru domu. Posezení je zapuštěno pod úroveň podlahy, takže tvoří vlastní ohraničený prostor, a sedačka po obou stranách dává na výběr z jedinečných pohledů. Je libo horizont moře, nebo zeleň vnitrozemí? Stačí si vybrat.


Před domem se nachází velký bazén, v němž voda sahá až po okraj. Kopíruje a prodlužuje tak samotný horizont až k tyrkysovému moři.

Pokoje jsou díky velkým oknům prosvětlené a výhledy z nich zpříjemňují běžné denní aktivity.

Koupelna vyniká přírodními materiály ve dřevě a mramoru, to vše je doplněné bílou barvou nábytku i stěn.



Architekti zvolili jednoduchý design také pro kuchyň s jídelnou. Bílá barva zdí, která se opakuje ve všech místnostech, tomuto prostoru dodává pocit lehkosti a odráží teplé řecké paprsky. Kuchyňská linka a židle v tmavých odstínech i terakotové nádobí dodávají barevné oživení.

Hlavní zdroj denního světla obstarává v ložnici velké okno, orientované na východ. Tak, aby vás při probouzení vítaly do nového dne lehké ranní paprsky. Také malá okna dodávají přísun sluníčka, ale svou velikostí zároveň brání přílišnému teplu.


Keře i stromy kolem domu a v jeho nejbližší blízkosti hrají všemi barvami.


V Řecku je prostě krásně, nemyslíte? Pokud vás zajímá, jak vypadá bydlení také na jiných řeckých ostrovech, zavítejte s námi například na Santorini, které je jako ráj na zemi nebo do Olivových hájů na ostrov Sithonia.
Jaký je Váš názor?
Související články

Řecký ostrov Santorini nabízí ubytování, které je jako nebe na zemi
Olivová romance. Na řeckém poloostrově Sithonia vznikl víkendový dům
Designová oáza na ostrově
Autor:
Přidejte se k Insidecor komunitě...
Insidecor
Insidecor na Instagramu