Architekti z ateliéru Platau vytvořili v Libanonu krásný byt, který originálním způsobem propojuje přízemí s prvním podlažím. Apartmán s názvem Sursock se tak může pochlubit dominantním prvkem v podobě lineární ocelové konstrukce, která je zároveň i nejzajímavějším rysem celého interiéru.




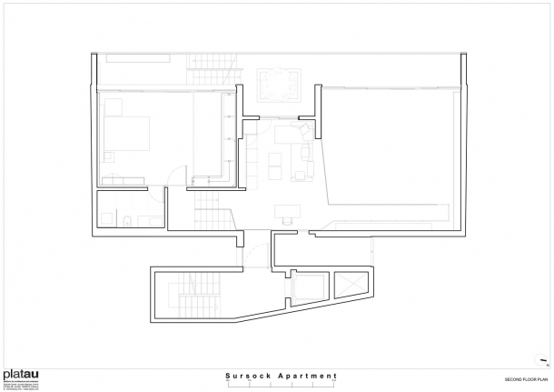
Prostorové uspořádání bytu odhaluje také betonovou zeď, která prochází po celé délce bytu. Architekti ji využili nejen k upevnění kovové konstrukce, ale také k vytvoření knihovny, která začíná v přízemí hlavní obytné části a souvisle pokračuje až do prvního patra. Z druhé strany pokoje se otevírá krásný výhled na terasu, a to skrz prosklenou stěnu. Poblíž knihovny byste našli nenápadný jídelní koutek a opodál také kuchyň.


Velký jídelní stůl je vyroben ze stejného dřeva jako police knihovny a může k němu usednout osm až deset hostů.


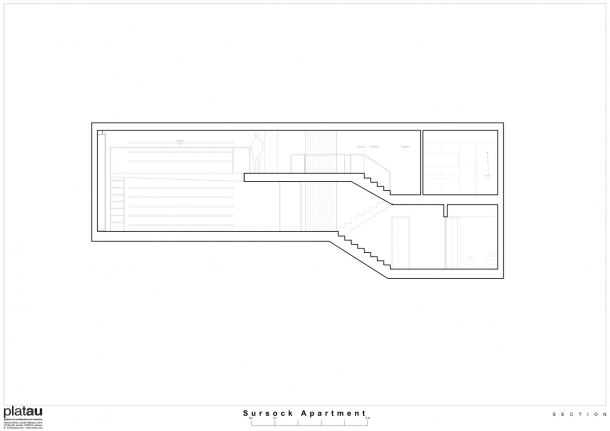
Ocelová konstrukce se stává páteří celého bytu. Propojuje ho lineárně po celé šíři a díky žebříku v obývacím pokoji i od vrchu dolů.


Ze světlé a prostorné kuchyně je možné projít ven na terasu. Kuchyň je přirozeným středem bytu, kde mají jeho obyvatelé dokonalý přehled o všem okolo. Kovová konstrukce zde slouží jako strop, který sympaticky kontrastuje s bílým nábytkem.



V přízemí se nachází dvě sousedící ložnice. Každá je zařízena v jiném duchu, ale obě mají jedno společné, a to komfort. A velká okna s krásným výhledem na okolní krajinu.



Koupelna je lazena do stejných tónů jako kuchyň, ale převažují zde naopak tmavé barvy. Sprchový kout vyniká obložením se stylizovaným stromem, který se tak trochu podobá tomu živému na terase.




Do prvního patra se lze dostat buď rovnou z obýváku po kovovém žebříku, nebo po schodišti poblíž kuchyně. I tudy prochází betonová zeď, kterou kromě polic a knih zdobí také zajímavé osvětlení.



V horní části knihovny architekti vytvořili menší stolek, vycházející ze samotného zábradlí. Lampička zde zachovává jistou intimitu, ani v přítmí neruší okolní otevřený prostor.


Podél diagonální knihovny se dostanete až k pracovně a menšímu odpočinkovému koutku se sedací soupravou a velkou televizí.


V horním patře se nachází další ložnice s přilehlou koupelnou. Světlo hraje velkou roli i zde, kdy okna přes celou stěnu pouští do pokoje velké množství světla. Krásné obložení za postelí plynule přechází v podlahu a podsvícená postel jako by levitovala.


Jaký je Váš názor?
Související články

Byt v Moskvě ožil v japonském stylu: zdobí ho příroda i fazetové dřevo
Když barevné akcenty dodají šmrnc: poznejte byt v Tel Avivu
Malý stromový dům v Hong Kongu má ložnici téměř ve hvězdách
Stará půda se proměnila v elegantní byt s betonovými prvky
Byt v Poznani: klasika, která neomrzí
Autor:
Přidejte se k Insidecor komunitě...
Insidecor
Insidecor na Instagramu