Může existovat závislost na přírodě? Ano, tvrdí teorie biofilie, kterou se zabýval například německý filozof Erich Fromm a kterou v 80. letech proslavil americký vědec Edward O. Wilson. Biofilie mluví o podvědomém instinktu, který nás nutí vyhledávat kontakt se zelení a jinými formami života. Tento pohled se také mnohdy odráží v architektuře a designu.

Biofilie zastává názor, že vše, co je živé, člověka přitahuje. Biofilní architektura se snaží o znovunalezení vztahu k zeleni, a to zejména v době, která je plná aut a v níž člověk stále méně přichází do kontaktu s přírodou. Proto v kancelářských budovách stále častěji vídáme třeba tzv. živé stěny, zelená zákoutí a terasy. Stejné pravidlo ale platí i pro jiné komerční objekty či rodinné domy.


Biofilní architektura jednoduše vychází z předpokladu, že je pro lidi žádoucí, nutné a zároveň příjemné žít v propojení se zelení. Jak upozorňují organizátoři letošního ročníku veletrhu Heimtextil a Světová zdravotnická organizace, devět z deseti lidí na naší planetě dnes dýchá znečištěný vzduch, který ročně zabije až sedm milionů lidí. Se špinavým vzduchem se snaží poprat vlády, architektura, design i jednotlivci. Stále častěji vznikají projekty, které člověka a přírodu propojují.


Soukromou zelenou oázu navrhlo například studio Judith Fassbender a Benjamin Schief. Designéři přišli s instalací In/Out, již tvoří tři objekty. Rostliny vyžadují oxid uhličitý a vlhkost, kterou jim může poskytnout lidský dech – stačí se například položit pod zelenou bránu a dýchat, či dýchat do hadičky propojené s rostlinou. Projekt tak dostává přírodu a člověka alespoň do dočasné symbiózy.



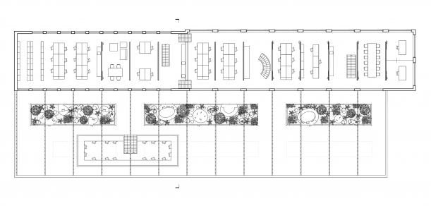
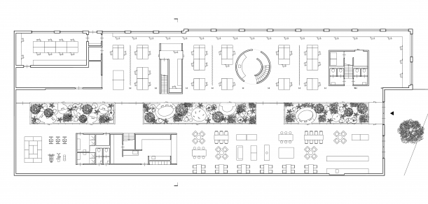
Rostliny najdete i v novém amsterdamském sídle nizozemské firmy Joolz, která vyrábí mimo jiné kočárky. Studio Space Encounters renovovalo interiér bývalé továrny, v jejímž nitru dnes stojí tři skleníky s pečlivě pěstovanými rostlinami. V zeleni můžou zaměstnanci firmy i pracovat – změní tak prostředí a dostanou nové impulsy.









Před dvěma lety představil architekt Asif Khan na londýnském festivalu designu tři pavilony se zelení. Objekty vyzývaly k souznění s přírodou a také interakci s ostatními kolemjdoucími a sousedy. Návštěvníci si dokonce mohli některé rostliny odnést domů, případně naopak darovat květiny, o které se už nemůžou starat – sám architekt projekt popsal jako jakousi „knihovnu rostlin”.







Možné užití rostlin v interiéru nastínil i melbournský ateliér Stella Collective. V britském Brightonu navrhl kavárnu a ukázal spojení bílých stěn a živých rostlin, které mají připomínat džungli. Sami designéři projekt nazvali „botanickým punkem“. Cílem bylo vnést exteriér do interiéru tak, aby hostům přišlo, že i v zimě můžou pít kávu venku.



Ukázkové spojení civilizace a přírody ukázal v roce 2013 také singapurský projekt ateliéru Wilkson Eyre. Ten pracoval s týmem krajinných architektů ze studia Grant Associates. Projekt zahrnuje velké oblé skleníky, které obyvatelům slouží k odpočinku a zchlazení– tedy opačnému kontextu, než je u skleníků běžné. Za projekt dostaly ateliéry prestižní ocenění RIBA Lubetkin Prize.





Nejen tyto projekty dokazují, že spojení s přírodou je v architektuře a designu stále aktuálnější téma. Zdá se, že čím víc se přírodě odcizujeme, tím víc ji zároveň vyžadujeme – a teorie biofilie tak nepozbývá na platnosti, ba naopak je dnes více platná, než kdy jindy.
Jaký je Váš názor?
Související články

Renata Koneski z květinářství Floren: Do zakázek dávám kousek sebe
Není plevel jako Plevel
Markéta Motlová z Inspirito: Vázání květin je freestyle
Soho: pohádkový prostor, v němž se rokoko snoubí s modernou
Autor:
Přidejte se k Insidecor komunitě...
Insidecor
Insidecor na Instagramu