Kdyby zdi mohly mluvit, dozvěděli byste se obdivuhodné příběhy. Když architekti ze studia Archiplanstudio rekonstruovali malý byt v Itálii, nechali zdi vyprávět svůj příběh. Historická hodnota nástěnných maleb se harmonicky prolíná do jinak moderního interiéru, a propojuje tak dva odlišné světy. Ty se však vzájemně doplňují a tvoří zajímavé a neotřelé bydlení plné vzpomínek.

Byt s názvem BROLETTOUNO se nachází v centru italského města Mantova a slouží jako ubytování pro turisty, kteří sem přijíždějí obdivovat krásy historického města. Když při rekonstrukci architekti objevili nádherné historické malby na zdech a stropech, rozhodli se je částečně zachovat, a propojit tak staré s novým. „V podstatě jsme se snažili udržet společně dva různé světy. Jeden, představující to staré, a druhý, který odkazuje na současné a moderní. To vše v rovnováze, aby vyplynula jejich identita. I světlo a stín jsou drženy společně v jisté pluralitě, aniž by bylo obětováno jedno na úkor druhého," vysvětlují svůj záměr architekti.

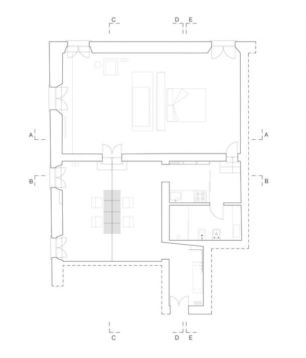
Projekt zdůrazňuje především rozdíly a heterogenitu jednotlivých prostorů, v nichž převažuje jistá nejednoznačnost. A právě ta se stává nejzajímavějším prvkem celého interiéru. Na 84 metrech čtverečních architekti vykouzlili zajímavé dispoziční řešení, jež uspokojí každého hosta, toužícího po intenzivních zážitcích.

V interiéru se objevuje přesnost konstrukčních prvků, ale i nedokonalosti materiálů, na nichž zub času zanechal svůj pevný otisk a jedinečnou energii.




Největší místnost je obývákem i ložnicí zároveň. Dělící prvek je zde originální dřevěný paraván, který slouží také jako odkládací stolek za postelí. „Krása se nachází všude kolem a nepatří pouze k vnitřní hodnotě materiálů. Objevuje se ve fragmentech, v evokativních formách a v jejich vztazích. Věříme, že právě vztahy představují nejdůležitější téma našeho návrhu,“ vysvětlují architekti.




Architekti zde vzdali hold poctivému řemeslu a několika historickým dekádám. Doplnili je novými, moderními prvky, které celému prostoru dodávají šmrnc.



V jídelně se ocitnete opravdu jako v minulosti, Kromě moderního dřevěného stolu a židlí zde vynikají krásné nástěnné malby. Jemné zelené tóny nechávají vyniknout jednotlivé detaily a oživují celou místnost.


Původní podlaha v cihlové barvě i dřevěné trámy na stropě dokreslují úchvatnou atmosféru, z níž sálá respekt k historii.




Menší kuchyně vznikla v moderním stylu. Jednoduchost a čisté linie designu nijak nenarušují okolní interiér.


V moderním a minimalistickém duchu se nese i koupelna. Bílé zdi, dřevo a kov. Nic víc, nic méně.


Architektům se v interiéru podařilo propojit různorodé prvky a zachovat protiklady, jako jsou síla a křehkost, dokonalost s nedokonalým, lesk nově vytvořeného prvku i nepředvídatelnost původních materiálů. Každý kus zdi, trámu či podlahy zde představuje jakousi cestu životem i samu historii, již mohou zdejší hosté naplno čerpat.
Zaujal vás interiér plný historie? Vydejte se s námi do Čech na Usedlost Salabka: s historií, duchem místa a hodnotou pro budoucí generace, nebo do Staré usedlosti za Prahou, kde najdou ráj milovníci historie i světového designu.
Jaký je Váš názor?
Související články

Stará usedlost za Prahou: ráj pro milovníky historie i světového designu
Alivar: Interiéry s italským šarmem
Usedlost Salabka: Historie, duch místa a hodnota pro budoucí generace
Spojením historie a moderny k unikátnímu minimalismu
Autor:
Přidejte se k Insidecor komunitě...
Insidecor
Insidecor na Instagramu