V barcelonské čtvrti Gràcia nedávno dokončilo designérské duo Jan Plecháč a Henry Wielgus, které mimo jiné získalo hlavní ocenění Zlaté polínko na letošním Designbloku, byt v tradičním činžovním domě. Tento ateliér je známý především skvělým produktovým designem, showroomy či instalacemi, na výbornou si ovšem poradí i s rezidenční realizací. Více se o designérech a jejich práci můžete dozvědět v našem velkém rozhovoru.
Byt patří Janově sestře, která bydlí v Barceloně. „Na začátku měla úplně jinou představu než my. Nějakou dobu totiž žila ve Francii a uchvátil jí provensálský a etno styl. I proto žije v Barceloně, kde se mísí spousta kultur. Přesvědčil jsem ji, aby k prostoru přistoupila tak, aby ji neustále bavil. Bála se, že prostor bude chladný, teď je ale naprosto spokojená,“ popisuje Jan Plecháč.

Designéři v bytě neponechali jedinou stěnu na původním místě a kompletně změnili dispozice bytu. Zachovali ovšem některé původní prvky prostoru: oživili staré cihlové stěny, dveře a okna. „Jsou pro barcelonské činžovní domy typické a dávají interiéru charakter,“ říkají. Pouze do obývacího pokoje umístili nové velké stahovací okno.

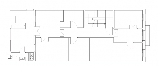
Originální dispozice bytu.

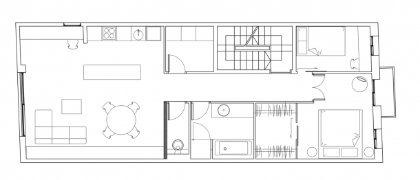
Nový půdorys bytu podle návrhu Jana a Henryho.
Byt má 80 metrů čtverečních a je stavěný pro dva lidi. Jeho součástí je ale i hostinský pokoj pro návštěvy či nového člena rodiny. K bytu patří veliká střešní terasa, která teprve čeká na renovaci – opět se jí ujmou Jan s Henrym. „Byt je do jisté míry nadstandardní, barcelonské byty jsou v takových domech většinou opravdu malé,“ říká Jan.

Skandinávská svěžest
Modrá, bílá, červená, černá. To jsou barvy, které bytu udávají tón. I když se na první pohled může zdát tato kombinace zvláštní, v místnostech funguje perfektně. Zářivé barvy interiéru dodávají šmrnc, energii a mladistvost.
V obývacím pokoji visí na stěně svítící kruh od firmy Elektroneon. „Rádi používáme neony, chtěli jsme něco schematického, čistého až galerijního,“ vypráví ateliér.

Dubovou podlahu i pastelově modrou sedačku Mags od dánských Hay koupili Jan a Henry sice přímo ve Španělsku, u nás ale také k dostání – třeba v portfoliu Stockist. K sofa ladí zářivě modrý stolek Ondulé, který pochází přímo z limitované edice designérů. Černé topení pak dodala tuzemská firma Radiana.

Nad jídelním stolem, který je dělaný na míru, visí světlo značky Normann Copenhagen Bell, které v Čechách prodává třeba Designpropaganda. Při stolování lze usednout do ikonických židlí od manželů Eamesových nebo do dvou vintage sedacích kousků koupených v aukci.



Svítivě červený i bílý úložný systém Stavebnice 01 pochází přímo z pera Jana a Henryho. Na pracovním stolku stojí přiznaně surová a vizuálně neobvyklá Wood Lamp od firmy Muuto, kterou v našem prostředí dodává třeba DesignVille. Černé pulty v kuchyni jsou pokryty španělským mramorem a kuchyňské skříňky tabulovou barvou. Nápis za digestoří All you need is love dodatečně pořídila Janova sestra.


Na šedivém nočním stolku DLM opět od dánských Hay stojí blankytná vintage lampička. Černé retro vypínače jsou vyrobené z bakelitu. „Často kombinujeme dánský nábytek s vlastní tvorbou,“ říkají designéři.

Katalánská překvapení
Na stavbě pracovala španělská projektantka, která interiér doladila podle tamních norem. „Ve Španělsku nerozlišují mezi projektanty a dodavateli, dodavatel je vlastně zároveň projekční firma. Kupujete si v podstatě takový balíček. Zaplatili jsme za jejich služby mnohem více než v České republice, uvažovali jsme kvůli tomu i o stavební firmě od nás,“ říká studio.
Honoráře pro katalánské stavaře ale nebyly jediným překvapením. Starší španělské domy mají totiž odvody odpadů nalepené na vnitřní fasádě směrem do vnitrobloku, na stejném místě je tedy i hygienické zázemí. „Bylo tomu tak i v sestřině bytě, my se ale rozhodli záchod a koupelnu přesunout a na tom místě vytvořit obývací pokoj, přičemž jsme museli vytvořit nový, alespoň pětiprocentní spád odpadu na druhé straně bytu. Trubky jsme nenápadně schovali pod sokl. U nás se toto často řeší bytovými jádry. Manipulace byla velmi složitá, s ničím takovým jsme předem nepočítali,“ vzpomínají autoři návrhu.

Jan Plecháč a Henry Wielgus nakonec všechny překážky přeskákali a za tři měsíce vytvořili interiér, kde není nic navíc, a zároveň nepůsobí chladně a odtažitě. Díky barevným intervencím a použitému nábytku je byt hravý a příjemně kontrastní. Brzy vám na další realizaci jednoho pražského bistra ukážeme, že tyto vlastnosti se pomalu stávají rukopisem jejich realizací.
Jaký je Váš názor?
Související články

Hravý skvost pražského Smíchova
Secesní moderna ateliéru OOOOX
Jan Plecháč & Henry Wielgus: Jsme vypravěči příběhu
Byt plný hudby
Autor:
Přidejte se k Insidecor komunitě...
Insidecor
Insidecor na Instagramu