Centrum Prahy je nepopiratelně jednou z nejatraktivnějších lokací pro bydlení. Z praktického hlediska to ocení pracující i studenti, bydlet v centru našeho hlavního města je však i módní záležitostí - být na blízku téměř veškeré kultuře a těm nejlepším restauracím a podnikům je aspektem, který může vnést nový a zábavný prvek do našeho života.


Detaily náměstí
My však vidíme to největší kouzlo v budovách, které se v centru Prahy nachází. Jsou to stavby z přelomu 19. a 20. století a mají naprosto odlišný charakter než domy moderní architektury. Zažily mnoho dekád, několik režimů a možná proto se zdá, že stojí hrdě a neoblomně. A jednoduše zrají tak, jako dobré víno.

Po vstupu do budovy
V části Nového města se nachází Petrské náměstí – malé náměstí, které tvoří přirozené centrum severní části historického jádra Prahy. Spolu se čtvrtí „Na Františku“ je tato bývalá „Petrská čtvrť“ považovaná za inspiraci románů Jaroslava Foglara. Navíc se v bezprostředním okolí Petrského náměstí se nachází veškerá občanská vybavenost, od designových obchodů a kulturního zázemí po restaurace a kavárny.


Detaily budovy
Právě v této lokalitě, v secesním domě byly postaveny tři nové, nadstandardně řešené penthousy. Historie domu s adresou Petrské náměstí 5 sahá až do roku 1883, kdy byl postaven jako činžovní dům Matějem Blechou, stavitelem, který vystudoval ve Vídni.

Pohled na mapě
Řešení penthousů, které jsou většinou dvoupodlažní, navrhl architektonický ateliér Design4function. Jsou citlivě zasazeny do historické budovy, přičemžnabízí velké prostory, vnitřní galerie i střešní zelené terasy s Whirlpool pro venkovní relaxaci v naprostém soukromí. Moderní styl řešení bytů nezapomíná ani na integrované chlazení, podlahové vytápění v koupelnách, inteligentní systém řízení energií a ovládaní bytu. Penthousy Petrské náměstí budou připraveny přivítat nové majitele již letos na podzim.


Byt A + B


Byt C
Penthousy jsou nabízeny v provedení Shell & Core, což je heslo, které interiéroví designéři slyší nejraději - následná výbava interiéru bude prováděna na základě samostatné objednávky dle přání klientů. Parkování, které je hlavně na Praze 1 oříšek, je zajištěno ve dvoře domu. Aktuálně se v rámci celkové rekonstrukce vestavují dva panoramatické dvorní výtahy.


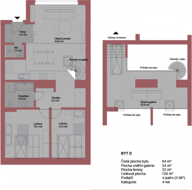
Byt D
Tento projekt zajišťuje butiková realitní kancelář Asten Property, která spolupracuje s developery a poskytuje široké spektrum služeb spojené s prodejem a pronájmem nemovitostí - od konzultace a vyhledání kupce či nájemníka, přes služby související se změnou vlastníka nemovitosti, financováním nemovitosti, zpracováním odhadu výnosu při investičním nákupu až po poradenství a realizace v oblasti interiérového designu.

Stavba bytů
Kdo se stane majitelem bytů a jak se rozhodne naložit s prostory? Bude to milovník minimalismu a jednoduchosti, nebo barev a doplňků? Který interiérový designér se chopí štětce a udělá z bílého plátna hotové dílo? Insidecor tým těší na výslednou podobu bytů, aby o nich mohl napsat nový inspirativní příběh.

Fotografie Petrského náměstí
Jaký je Váš názor?
Související články

Noblesní hra s prostorem ateliéru Ivana Dombková Architektura
Hravý skvost pražského Smíchova
Loft vítězící nad časem
Autor:
Přidejte se k Insidecor komunitě...
Insidecor
Insidecor na Instagramu