Studio mf + arquitetos vytvořilo úchvatné letní sídlo v brazilské Rifaině, která leží na břehu řeky Rio Grande. V domě s netradičním označením Q04L63 tráví volný čas pětičlenná rodina. Oáza klidu stvořená pro relaxaci a načerpání energie do dalších dní.



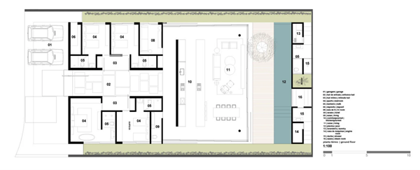
Víkendová rezidence upoutá hned na první pohled. Do domu se vstupuje velmi originálním způsobem. Dominantní otočné dveře na čelní fasádě zvou přímo do haly, do které také proplouvá i tropická vegetace, která živou formou propojuje venkovní svět s vnitřním.


V přední části domu jsou umístěny čtyři ložnice a televizní místnost, do které se vstupuje z prostorné haly umístěné hned za otočnými dveřmi. Vstupní část je tedy trochu netradičně obklopena intimní rodinnou zónou. Soukromé zázemí tvoří pomyslnou vstupní bránu do hlavního společenského prostoru.

Volná příčka v prostoru, která z jedné strany tvoří bariéru mezi halou a společenským prostorem, je z opačné strany tvořena kuchyňskou linkou. Ta se díky dřevěnému kompaktnímu obkladu stává velmi decentní součástí interiéru. Materiálové provedení koresponduje s exteriérem i obkladem stropu v interiéru. Kuchyňský ostrůvek z černé břidlice přirozeně odděluje kuchyňskou část od odpočinkové zóny.

Celému domu vévodí přírodní materiály v teplých tónech, které dodávají sídlu příjemně útulnou atmosféru a zároveň nadčasovost. V interiéru je to mimo všudypřítomného dřeva také kámen. Egyptský travertin pokrývá podlahu i stěny v hlavní hale, stejně tak i v centrálním obývacím prostoru.



S velkou pečlivostí architektů byl vybírán nábytek. Majitelé nemovitosti jsou na každém kroku obklopeni designovými kousky od různých návrhářů, jako jsou Brazilci Jader Almeida a Paulo Alves nebo Rakušan Martin Eisler. Přednost samozřejmě dostaly výrobky ze dřeva, kůže a dalších přírodních materiálů.

Centrální obytný prostor, kterému vévodí obývací pokoj a jídelna, volně navazuje na venkovní terasu. Součástí venkovní relaxační zóny je bazén a přilehlá sauna umístěná v menší stavbě respektující horizontální linie, které jsou symbolické pro koncept celého sídla.

Přírodní materiály i v jejich surové podobě podtrhují jednoduchost a záměr architektů. Relaxace v tomto víkendovém sídlu je nejen pro rodinu majitele, ale i jejich hosty nezapomenutelným zážitkem.
Brasil House
mf + arquitetos
Jaký je Váš názor?
Související články

Brazilský modernismus 30. let v současném pojetí. Vítejte v domě B+B
Brazilský dům ožil africkým uměním
V Brazílii vzniklo bydlení plné přírodní harmonie
Autor:
Přidejte se k Insidecor komunitě...
Insidecor
Insidecor na Instagramu