Když se do interiéru zakomponují prvky jiné kultury, může vzniknout jedinečné a zcela atypické bydlení. Přesně takový záměr měli architekti ze Studia MK27, kteří v rodinném sídle v Sao Paulu nechali rozehrát daleké zvuky Afriky. Různorodé umělecké předměty a specifické architektonické řešení daly vzniknout krásnému domu, z něhož by se v budoucnu mělo stát muzeum.


Dům zatím slouží jako rodinné sídlo. Jeho majitelé milují africké umění, které se stalo důležitou součástí samotného interiéru. V budoucnu, až se jejich sbírka rozroste, plánují udělat z domu kulturní nadaci. A tak museli architekti hledat flexibilní řešení.



Výrazným prvkem, který architekti s přihlédnutím na budoucí funkci domu zvolili, se stala 25 metrů dlouhá, nakloněná rampa. Ta propojuje přízemí s prvním patrem, kde se nacházejí soukromé prostory. Šikmá chodba navíc vytváří jakousi architektonickou promenádu a umožňuje pozorovat prostor z mnoha různých perspektiv.


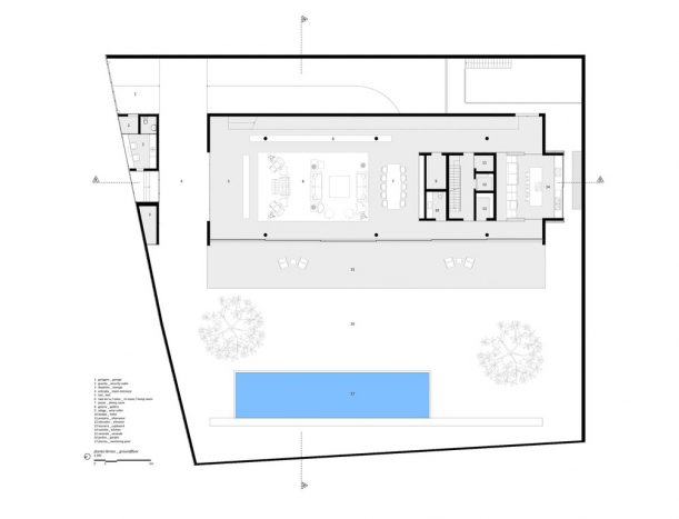
Obytná plocha domu je opravdu veliká. Rozkládá se v několika podlažích a měří celých 950 metrů čtverečních. V přízemí najdete rozlehlou obývací místností, která je díky nábytku rozdělená do jednotlivých zón, dále jídelnu i skrytou kuchyni. Vše je řešeno tak, aby se v budoucnu mohly tyto volné a průchozí prostory snadno přepracovat na instituci věnovanou umění. Vrchní patra slouží ložnicím, koupelnám a pracovnám, v nejvyšším patře je navíc k dispozici sauna s průchodem na střešní terasu.


Celý dům obklopuje svěží zeleň. Soukromá zahrada i bazén stylově doplňují exteriér. Už z dálky upoutá dřevěná fasáda, která jako krychle vykukuje zpoza stromů. V kombinaci s betonovými pilíři, jež jsou rozmístěné ve vnitřním prostoru, tak tvoří dokonalý celek. Pro výrobu dřevěných panelů architekti využili místní brazilské dřevo, které tvoří nejen vnější fasádu, ale zasahuje i dovnitř v podobě stropu. Díky tomu je celý prostor útulný a pocitově teplý.



Dekorace a interiérový design byly koncipovány jako základní součást celého projektu. Architekti zde zkombinovali staré s novým, a tak se tu setkáte s židlemi, křesly i stoly od brazilských designérů jako jsou Joaquim Tenreiro nebo Sergio Rodrigues, ale i od těch mezinárodních v čele s Vladimirem Kaganem či Georgem Nakashimou, které zdůrazňují architekturu domu a jeho umělecké poslání.



Z hlavní společenské místnosti se dostanete na verandu. Posuvné skleněné dveře, jež tento prostor oddělují, lze zcela otevřít, a spojit tak obývací pokoj rovnou se zahradou. Rozlehlá veranda pod konzolou o šířce čtyř metrů vytváří chráněný, ale přesto otevřený obytný prostor, který je příjemný především v horkých dnech. Toto řešení jde ruku v ruce s tradicí brazilské architektury, a to jak koloniální, tak také té moderní.






Obývací pokoj odhaluje důležitou sbírku umění. Můžete zde spatřit nádherné africké masky, jež jsou pečlivě umístěné na speciální dřevěné polici, kterou nechali architekti vytvořit na zakázku. Má přes devět metrů a perfektně zapadá do prostoru. Umění se tu mísí s běžnými předměty, které rodinna dennodenně používá.





V prvním patře, kde se nacházejí soukromé prostory, se také setkáte s místním kvalitním dřevem. Architekti dbali na to, aby se materiály, které jsou použité vně, objevovaly také uvnitř. Vztah s brazilskou architektonickou kulturou je přítomen i v dřevěných panelech na fasádě, které mají svou funkci: během horkých dnů umožňují zastínění i cirkulaci vzduchu v ložnicích. Výsledkem jsou příjemné vnitřní prostory, které působí teple po celý rok.



Koupelnu s výhledem do zahrady definují přírodní materiály a zemité tóny. Vzniká tu tak další příjemná a relaxační zóna. Kromě toho můžou majitelé využívat také svou domácí saunu, která se nachází v nejvrchnějším patře. Z ní lze pokračovat dál na střešní terasu a odpočívat na jednom z pohodlných lehátek.




Architektům se podařilo vytvořit krásný rodinný dům, který nebude problém v budoucnu přebudovat na již zmíněné muzeum. Na přání majitelů prostupuje umění a design všemi kouty vily a do značné míry je interiér propojený s exteriérem.



Zaujal vás rodinný dům s africkým uměním? Uhranula vám okolní příroda? Vydejte se s námi i do jiných zajímavých míst. Líbit by se vám mohl také Dům v Tel Avivu, s kouzlem přírody, světel a stínů nebo Rodinná vila v Íránu, která ožila díky vzpomínkám z dětství.
Jaký je Váš názor?
Související články

Restaurace Icha Chateau v Šanghaji vyzařuje krásu čajových plantáží
Dům v Tel Avivu: kouzlo přírody, světla a stínů
V Brazílii vzniklo bydlení plné přírodní harmonie
U Havířova vznikl prosklený dům s výhledy na panorama Beskyd
Architektka Daniela Polubědovová navrhla dům připomínající srdce
Autor:
Přidejte se k Insidecor komunitě...
Insidecor
Insidecor na Instagramu