U Havířova se zrodil jedinečný rodinný dům, z kterého mohou majitelé obdivovat krásy přírody českých Beskyd. Navrhli ho architekti z ateliéru Kamil Mrva Architects, kteří díky originálnímu řešení ztenčili hranice mezi interiérem a exteriérem. Dům, jenž je ze tří stran prosklený, nábízí spoustu výhledů nejen do rozlehlé zahrady, ale i na vzdálené vrcholky hor.

Pro realizaci tohoto projektu bylo osloveno více architektů z různých ateliérů. Avšak se svou atypicky řešenou studíí u investora uspěl ateliér Kamil Mrva Architects v čele s architekty Kamilem Mrvou a Martinem Rosou.

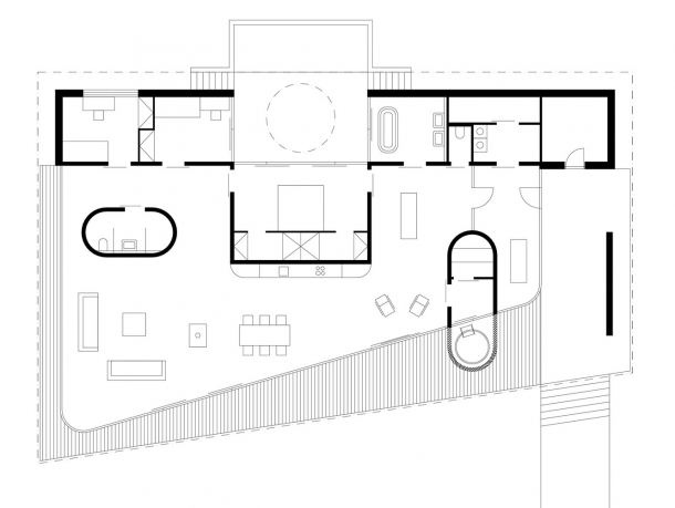
Nový domov je určený manželskému páru s dospívajícími dětmi, jejichž představa byla jasná. Přáli si dům na konkrétním pozemku poblíž Havířova, který by byl co nejvíce otevřený směrem na panorama nedalekých Beskyd.

Architekti situovali dům do horní části pozemku na jižním svahu, přičemž do prostoru spodní části parcely navrhli garáž. V exteriéru každého upoutá nápadná geometrie: horizontálně položené betonové desky určují tvar domu.
A čím se architekti inspirovali? „Inspirací jsme měli více. Například skleněný dům od Miese van der Rohe v Illinois nebo náš realizovaný dům v Brušperku,“ vzpomíná architekt Kamil Mrva na počátky realizace.


„Návrh dispozičního uspořádání se od studie nezměnil. Snažili jsme se o otevřený dům směrem do zahrady a s výhledem na beskydské hory. Zároveň jsme představili uzavřený koncept pro větší soukromí ložnice s atriem směrem k lesu,“ vysvětlují architekti.



Jedinečnost domu tkví v převaze skla. Dům je totiž ze tří stran prosklený, a umožňuje tak dokonalé propojení s okolní přírodou. Architekti navíc zvolili kombinaci fixních a posuvných oken, čímž přispěli k lehké variabilitě a možnosti otevřít prostor v různých částech domu.



Už z venku každého jistě zaujmou oblé linie domu, které se ve větší míře opakují i uvnitř interiéru. Na dřevěnou terasu, kde majitelé v budoucnu plánují vytvořit bazén, vybíhá z vnitřku solitér sauny.




Centrem domu je moderní, prostorná kuchyně, kolem které se odehrává veškeré dění. Minimalistický design v bílých a černých tónech působí čistě a nerušeně v kombinaci s přírodní kulisou prostupující zvenčí. Na kuchyň volně navazuje jídelna a prostor pokračuje až do obývací části, odkud jsou nejzajímavější panoramatické výhledy.


Z ložnice si mohou majitelé užívat výhled do zeleně na terasu, v níž je zasazený živý strom. Také ložnice leží v samém centru domu. Je dimenzovaná tak, aby v budoucnu mohla případně sloužit jako golfový trenažér.

Akcenty v bílých a černých tónech, doplněné surovým materiálem z betonu, se objevují v celém interiéru. Na hranaté rohy tu jen tak nenarazíte. Zaoblené zdi a ladné linie propojují jednotlivé obytné zóny a dodávají jim šmrnc nevšednosti.


Zajímavým designovým prvkem je například také zaoblená koupelna pro pána domu, které opět dominuje sklo a světlé i přírodní tóny.


„Celý proces projektu byl zajímavý, od studie až po samotnou realizaci. Investor je strojař, a proto si mnoho detailů a příprav realizoval svépomocí. Přičemž velkou pozornost jsme věnovali zasklení,“ říká Kamil Mrva na závěr a dodává: „Děkuji rodině investora, že jsme s mými kolegy mohli pracovat na tak výjimečném projektu.“


Máte-li rádi podobný styl bydlení jako v rodinném domě u Havířova, podívejte se také na naše další projekty v podobném duchu. Vydejte se s námi do jiného českého Domu, který připomíná srdce nebo do lesů Kapského města, v nichž „vyrostl“ Stromový dům s krásnými výhledy.
Záhumenní 1358/30c
Kopřivnice
Jaký je Váš názor?
Související články

Architektka Daniela Polubědovová navrhla dům připomínající srdce
Řadový dům v Brooklynu - designové bydlení se střešní ložnicí
Hotel Mezi plůtky: bydlení v malebných Beskydech
V lesích Kapského města se skrývá stromový dům s okouzlujícími výhledy
Autor:
Přidejte se k Insidecor komunitě...
Insidecor
Insidecor na Instagramu