Přímo v centru Varšavy, na více než 260 metrech čtverečních, najdete obdivuhodnou restauraci s názvem OpaslyTom. Podává se tam moderní polská kuchyně a interiér překvapí svými zákoutími, za nimiž stojí architekti z ateliéru BUCK.STUDIO.
Restaurace si zakládá na kreativní nabídce pokrmů, jež zahrnuje koncept slow food čili přesného opaku fast foodů. Stejně tak upřednostňuje i princip sezónní stravy, včetně produkce kvalitních surovin z polských regionů.

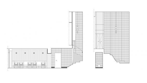
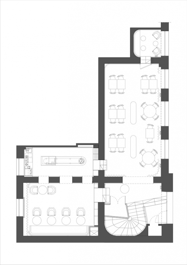
Prostor restaurace je tak trochu spletitý. Jsou zde propojené místnosti různých funkcí a velikostí. Najdete tu mimo jiné i bar se studovnou, vinný sklípek nebo dokonce tajnou místnost.


Když vejdete do restaurace, upoutá vás moderní až minimalistický přístup k designu, který však vytváří silnou atmosféru. Architekti mysleli i na akustiku, která je díky zvlněnému obložení interiérových stěn perfektní. Na míru navržený nábytek a povrchové úpravy pak dodávají i lehký nádech dramatična.


Největší výzvou pro architekty bylo nestandardní funkční rozvržení prostoru s řadou místností s různými velikostmi a výškami. Proto chtěli navrhnout takové řešení, které by všechny místnosti propojilo do jednoho, designem koordinovaného celku. A výsledek? Vznikl nový, výrazný a esteticky zajímavý interiér, nabízející nejen gastronomické zážitky.

Jedním z vizuálních prvků, které architekti využili, jsou například barvy. Zvolili bohatou paletu korálových, šalvějových, medových i modře inkoustových tónů inspirovaných přírodou. A právě tyto odstíny, na všudypřítomných záhybech vlnitých stěn, definují a odlišují jednotlivé části restaurace.

Kromě výrazného schéma odstínů, materiálových textur a vlnitých sametových stěn zdobí restauraci také původní osvětlovací systém. Najdete tu řadu lamp navržených na míru a ručně vyrobených v polských sklárnách. Svítidla byla do jednotlivých částí restaurace volena podle své funkce i měřítka prostoru.




V horním patře je možné pořádat společenské oslavy a mimořádné sešlosti. Velký sál nabízí výhledy na malebné varšavské staré domy, jež se odrážejí ve vysokých zrcadlech. Velkolepé osvětlení a terrazzo podlaha s geometrickým vzorem jsou dalším prvkem, který prostor příjemně oživují.



V restauraci najdete dokonce i tajnou místnost, které se říká „oáza“. Jde o speciální soukromý salonek pouze s jedním stolem, který je inspirovaný art decem s originálními květinovými vzory. Název „Oasis“ i odlišný design jsou odkazem na historii budovy, když tu ještě před druhou světovou válkou bývala restaurace s kabaretem.


V méně formální spodní části restaurace OpaslyTom najdete samotné srdce podniku - polootevřenou kuchyni, kde se připravují prvotřídní polské dobroty. V přízemí se nachází také vinný sklípek a menší místnosti se třemi odlišnými funkcemi i designem: medová místnost, ze které budete mít ten nejlepší výhled do kuchyně, inkoustově modrá vinotéka, v níž si užijete ochutnávky výtečných vín, a tichá šalvějová místnost, která je určená pro ničím nerušené soukromé stolování.





Podnik OpaslyTom se stal nedílnou součástí varšavské gastronomické scény, stejně jako kdysi kabaret vévodil místní zábavě. Výrazné prvky jako rozličná osvětlení různých tvarů a velikostí i barevné odstíny jednotlivých místností dávají restauraci šmrnc a tu pravou grácii.
Nahlédněte s námi také do jiné restaurace v netradičním duchu: Restaurace v kostele? I to jde, ukazuje londýnský podnik Duddell's.
Jaký je Váš názor?
Související články

Restaurace v kostele? I to jde, ukazuje londýnský podnik Duddell's
Bývalá mexická továrna se proměnila v restauraci s duchem minulosti
10 stylových restaurací a kaváren v Praze
Autor:
Přidejte se k Insidecor komunitě...
Insidecor
Insidecor na Instagramu