Tropický prales, exotické rostliny, vůně ranní kávy, lahodné jídlo i večerní drink. To vše v sobě nese útulný podnik Bar Botanique Café Tropique v Holandsku, za nímž stojí architekti ze Studia Modijefsky. Ti navrhli samotný interiér, ale také celkovou vizuální identitu, od loga až po typografii. Originální písmo ve velkých oknech už zvenčí láká návštěvníky dovnitř. Račte tedy vstoupit do tropického baru.


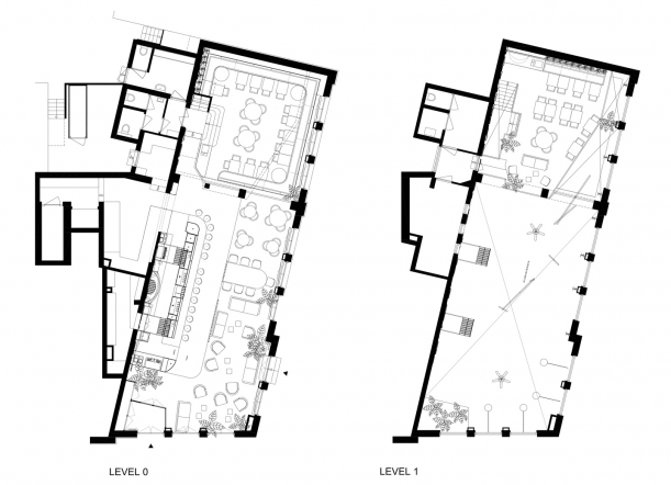
Podnik se nachází v okrese Dapperbuurt v Amsterdamu. Podlouhlý půdorys rohové stavby je ze dvou stran takřka prosklený. Velká dvojitá okna, jejichž horní část zdobí název B A R B O T A N I Q U E, dodávají prostoru hromadu denního světla a spolu s rostlinami připomínají tak trochu skleník. Dvoupatrový bar s 350 metry čtverečními je prostorný a rozdělený do jednotlivých zón. Přední část patří dlouhému baru pro posezení s přáteli u drinku a zadní intimnější část naopak pro klidné chvíle u dobrého jídla.


Interiér je plný barev. Převládají zde zelené tóny doplněné živými palmami, kapradím, filodendrony a dalšími rostlinami. Architekti oživili jednu ze zdí i teplými odstíny oranžové, která vede až do jídelního salónku. Barevné akcenty najdete i v jednotlivých kouscích nábytku a doplňcích. Různé prvky navíc odkazují na pestrou historii budovy, která dříve sloužila jako tělocvična a později také jako kavárna s názvem De Ponteneur. Ze stropu visí designová zrcadla, která představují stylizované cvičební kruhy. Ty zachycují světla a pohybující se stíny, které následně jako živé obrazy promítají dál na stěny i strop interiéru.
„Zrcadla odrážejí světlo i rostliny v prostoru. Vytvářejí pocit jako v lese, kde paprsky světla pronikají skrze stromy i rostliny,“ vysvětluje architektka Zahra Rajaei.

„Během dne se do prostoru rozlévá jemné světlo a vytváří přirozené stíny rostlin, zatímco v noci, když na ně svítí vnitřní osvětlení, vznikají dramatické stíny vytvářející až abstraktní scenérii,“ dodává architektka.


Detaily nábytku a zábradlí byly převzaty z původního baru. Stejně tak byla zachována i stará kovová balustráda a malovaná lesní zeleň oddělující barovou část od jídelního salonku. Dlouhý mramorový bar je obložen vzorovanými šestihrannými dlaždicemi, které připomínají palmové listy. Hosté si u něj mohou posedět na barových retro židlích, jejichž modrá barva je dalším přírůstkem do pestré palety této „džungle“.


Restaurační část se nachází v zadní části podniku, kde architekti vytvořili útulný salonek v oranžových tónech. Hosté si tak mohou vychutnat jídlo buď hned v přízemí, nebo v prvním patře, které se honosí krásnými výhledy na celý bar.




Hnědá kožená sedačka láká k pohodlnému posezení a doplňuje harmonickou paletu barev přírody.

Nově navržené písmo se nachází také v interiéru. Jsou jím označeny toalety, našli byste ho v jídelním menu a taktéž na webových stránkách. Vše do puntíku promyšlené tak, aby všechny detaily ladily, a vytvořily tak pro zákazníky jedinečný zážitek z každé návštěvy tohoto džunglí inspirovaného baru.


Odvážné geometrické tvary, organické motivy včetně živých rostlin, hravá barevnost i detaily nábytku, odrážející minulost a historii podniku jsou hlavními prvky, díky kterým se stal tento bar jedinečným a oblíbeným místem v celém Amsterdamu.


V pozdějších hodinách, kdy slunce zapadá a čím dál více a zřetelněji ožívají dramatické stíny, tak noční život baru právě začíná...

Okouzlil vás interiér tohoto tropického baru? Pak s námi nahlédněte i na jiná místa, kde architekti přeměnili prostor v oázy přírody a harmonie. Podívejte se například do pražské Restaurace NOSTRESS, oázy klidu v centru města nebo na španělský ostrov, kde se nachází La Granja Ibiza – rustikální hotel, vracející se ke kořenům.
Jaký je Váš názor?
Související články

La Granja Ibiza – rustikální hotel, který se vrací ke kořenům
Restaurace NOSTRESS – oáza klidu v centru města
Parlor Café: zaměřeno na sladké detaily
10 stylových restaurací a kaváren v Praze
Autor:
Přidejte se k Insidecor komunitě...
Insidecor
Insidecor na Instagramu