Mateřská školka Riedlepark v Německu představuje moderní prostředí, na míru vytvořené dětem. Architekti z ateliéru Lanz Schwager Architekten se zaměřili na vzdušný prostor s dostatkem světla, přírodními materiály v čele se dřevem a originálními prvky, jež podnítí dětskou zvídavost a podpoří jejich začlenění do kolektivu.




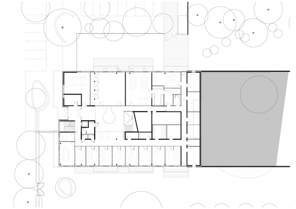
Architektonické linie budovy se závanem urbanismu ukrývají dvoupodlažní prostor se 2277 metry čtverečními. Vstupní fasáda školky posiluje charakter pouličního prostoru. Za to z druhé strany se dětem otevírá svěží příroda tamního parku, přístupná rovnou z horního patra budovy.





V přízemí byste našli „veřejné“ prostory, seskupené kolem centrálního fóra. Jsou zde jídelny i tematické místnosti. Foyer spojuje široké schodiště podobné tribuně, fórum v přízemí i skupinové místnosti v horním patře. Co vás ale jistě na první pohled upoutá, je „levitující“ dřevěný korpus, připomínající jakýsi kokon, z něhož se ozývá radost a dětský smích. Je to jeden z prvků, který slouží ke hrám a vzájemné interakci.



Jídelna disponuje částečně oddělenými koutky, kde mohou děti nerušeně jíst. Prostor je perfektně prosvětlený a nabízí výhled do parku.


Výklenky přístupových prostor architekti vyplnili skříňkami. Zkombinovali teplé dřevo s chladnými plochami betonu a vytvořili tak příjemný a ucelený prostor. Průhlednost a otevřenost v podlažích vytvářejí rozmanité kontaktní a komunikační prostory, ve kterých si mohou děti společně povídat a blbnout.



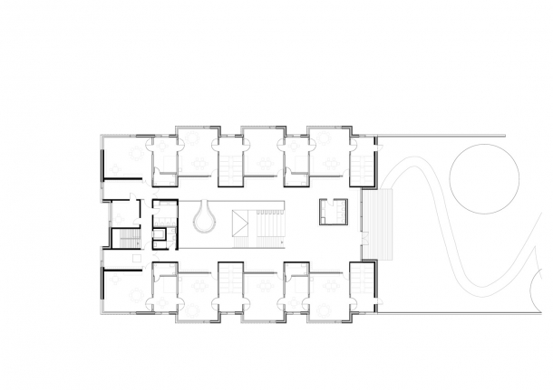
Horní patro je vyhrazeno výhradně společným dětským místnostem, orientovaným na východ a západ. Odtud lze také vstoupit do dřevěného „kokonu“, který díky své organické podobě tvoří ideální kontrast ke geometrickému zbytku budovy. Slouží jako místo pro setkávání i hrátky.




Dřevěná konstrukce je částečně průhledná. Odtud mohou děti pozorovat dění v celé školce a mít tak přehled, kde se jejich kamarádi zrovna nachází. Prostor je doplněný o lavičku, obkreslující tvar „kokonu“. Toto doslova sochařské dílo značným dílem oživilo celý interiér a přispělo k zábavě a interakci malých předškoláků.



Jednotlivé třídy získaly šmrnc díky jemným pastelovým barvám, které architekti pro oživení využili. Z horního patra mohou děti pokračovat dál po rampě, která je dovede až k venkovním hracím plochám. Protože trávení dostatečného času na čerstvém vzduchu je jednou z priorit moderních školek.
Tip na další článek: Začíná revoluce ve školství? Architektura budov a design tříd se mění.
Jaký je Váš názor?
Související články

Jak na vzdělávací prostory? Zkuste doplňky, které si děti zamilují
Začíná revoluce ve školství? Architektura budov a design tříd se mění
Vztah dětí k přírodě je přínosný, ukazuje školka od italských architektů
Autor:
Přidejte se k Insidecor komunitě...
Insidecor
Insidecor na Instagramu