Kdo by nechtěl čas od čas uniknout od civiliazce? Žijeme ve světě, kde jsou shon, stres a povinnosti na denním pořádku. Někomu pomáhá meditace a různé formy cvičení, jinému návrat k našim kořenům, k živé harmonizující přírodě.
Slovenští architekti z ateliéru Ark-shelter ukazují, jak se co nejvíc přiblížit přírodě. Navrhli chatku, z jejíž ložnice se majitelům otevírá nádherný výhled na nebe plné hvězd a z prosklených stěn vykukují panoramata okolních hor.


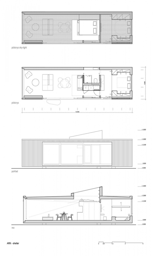
Architekti, kteří se podobným projektům věnují poslední tři roky, nazvali tuto minimalistickou kabinu z tmavého dřeva „Into the wild“ neboli „Do divočiny“. „Chceme vytvářet místa, která poskytnou pohodlí v srdci přírody a budou perfektním prostředím pro detoxikaci mysli,“ vzkazují architekti.


V přední straně kabiny, kde najdete vchod, se vyjímá z větší části prosklená stěna. Ta maximálně propojuje interiér s exteriérem. I uvnitř chatky budete součástí venkovní přírody. Jako kdyby mezi vámi žádné sklo nebylo.


Další skleněný modul je přímo ve střeše. Toto velké okno nabízí každou noc nádherné kompozice plné hvězd a přes den zase hromadu světla.


Okno z mléčného skla v koupelně propouští přirozené světlo. Teplé přírodní dřevo najdete v celém objektu. Podlaha a doplňky vznikly ze dřeva s výraznější kresbou. Kontrast zase dodává tmavý středový prvek. Ten v sobě ukrývá vířivku, z bočních stran sprchu, toalety i kuchyň. Zvrchu si užijete postel s nejlepší noční podívanou.




Ložnice je stejně jako okolní místnosti nízko posazená. Zdá se, že usínáte přímo v trávě na mírně kopcovitém terénu.


Celá chata je vybavená chytrým automatickým systémem, kde lze předem naprogramovat vytápění, chlazení i zastínění. Tento dokonalý úkryt před světem navíc funguje zcela mimo síť: beží pouze přes solární panely, baterie a za pomoci sběrače dešťové vody.




Hlavním cílem architektů byl návrat k přírodě. Ve své prefabrikové kolekci vytvořili již řadu cenově dostupných off-gridových domků s nulovým dopadem na okolní krajinu.
Pokud máte rádi eko bydlení, pak s námi zavítejte také do Alp, kde se nachází stromové domy, které mají blízko k přírodě, nebo až do Brazílie, kde vzniklo bydlení plné harmonie.
Jaký je Váš názor?
Související články

V Brazílii vzniklo bydlení plné přírodní harmonie
Architektka Daniela Polubědovová navrhla dům připomínající srdce
Stromový dům v italských Alpách - resort, který má blízko k přírodě
V lesích Kapského města se skrývá stromový dům s okouzlujícími výhledy
Autor:
Přidejte se k Insidecor komunitě...
Insidecor
Insidecor na Instagramu