Uvnitř pařížského bytu pro trojčlennou rodinu během rekonstrukce návrháři Toledano + Architects vztyčili dřevěnou stuhu, která slouží nejen jako obytná stěna, ale i jako sochařská instalace. Tento bytelný, avšak velmi lehký prvek umožnil využít prostor zcela novým způsobem, a zároveň neubral bytu nic z jeho pařížské haussmannské noblesy. Na 130 m2 tím vytvořili architekti mnohem větší užitnou plochu, která působí vzdušně a skvěle kombinuje to nejlepší ze starého a nového designu.



Dřevěná konstrukce je nižší než původní stropy, aby zachovala všechny známky původního historického plánu. „Zachovat historické vrstvy a zároveň zajistit silnou současnou identitu, to byla opravdová výzva,“ říkají Toledano + Architects. V bytě byly typické haussmannské prvky včetně hojných štuků, dřevěných parket se vzorem fishbone a dlouhého balkonu. Stuha se ovíjí kolem zdobených stěn, rozptyluje vchody do jednotlivých pokojů, funguje jako obytná stěna a vytváří svými křivkami nové užitečné prostory. V jednom z nich se dokonce ukrývá kuchyně.







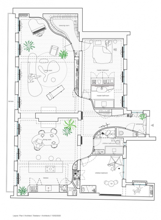
Tato impozantní interiérová stuha je vyrobena kompletně ze dřeva, a to pomocí forem a laserového řezání. Všechny stěny byly nejprve vyrobeny v tesařské dílně, tam také smontovány – a pak během jednoho dne sestaveny přímo na místě. „Nové rozložení bylo zcela jasné, jakmile jsme se rozhodli zcela zbourat původní příčky, které prostor omezovaly,“ vysvětluje pařížská designérka Gabrielle Toledano. Na jedné straně bytu je hlavní apartmá s ložnicí, otevřenou koupelnou a šatnou, na druhé straně je dětský koutek s ložnicí a koupelnou. Dvě linie dřevěné stuhy tyto dvě oblasti definují zcela jasně.






Úzká chodba spojuje široké a prostorné společné prostory obývacího pokoje, kuchyně a jídelny. Hlavním materiálem je ohýbané dřevo, které je ponecháno co nejpřirozenější – ve výklencích bylo využito i mosazi a travertinu. V hlavní koupelně se snoubí elegantní šedý onyx s lehkou překližkou. V dětském pokoji jsou materiály světlejší a hravé – s výrazným oranžovým akcentem. Strom je – mimo ložnice – vyroben z alveolárního polykarbonátu tak, aby pokojům poskytoval přirozené světlo a zároveň je roztančil hravými zákruty kopírujícími dřevěnou stuhu.





Studio Toledano + Architects založila roku 2013 Gabriella Toledano s vědomím, že architektura stojí na křižovatce s mnoha dalšími disciplínami, jako je sociologie, městské plánování, krajinotvorba, technika, filozofie a umění. Hlavním heslem studia, které je situováno v Paříži a v Tel Avivu, je modularita a flexibilita. I tento dřevěný unikát tak zcela sedí do ostatní tvorby studia.
Soukromá rezidence
Wood Ribbon
Paříž, Francie
Jaký je Váš názor?
Související články

Povedená rekonstrukce pařížského bytu v budově z 30. let
Jak se bydlí v bunkru? Válečný bunkr v Hamburku se proměnil v útulný byt
Podzemní dům v londýnské městské zahradě zdobí netradiční střecha
Byt pro hudebního skladatele kombinuje beton, mosaz a mramor
Autor:
Přidejte se k Insidecor komunitě...
Insidecor
Insidecor na Instagramu