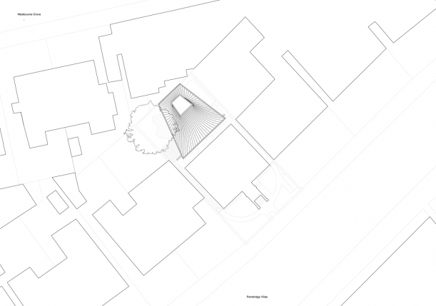
Když není místa nazbyt, jsou nutná netadiční řešení. Architekti ze studia Gianni Botsford Architects se tímto heslem řídili a navrhli v Londýně podzemní dům s neobvyklou střechou. Přišli s originálním řešením, díky kterému se denní světlo dostane do všech podzemních pater. Dům, který najdete ve skryté městské zahradě hned vedle vily Notting Hill z osmdesátých let, zdobí měď, dřevo i mramor.



Než se architekti do projektu pustili, museli zdemolovat bungalov z 60. let. Nahradili ho velkým podzemním domem. Zvolili měděné zastřešení a přístup do tříúrovňového obydlí zajistili úzkou chodbou. Na první pohled by tak nikdo neřekl, že se tento dům rozprostírá na takřka 253 metrech čtverečních.





Hlavním cílem a zároveň výzvou bylo dostat denní světlo až do hloubky osmi metrů. Dům je situován na sever a architekti světlo analyzovali pomocí nejrůznějších digitálních nástrojů, které jim mimo jiné pomohly určit, jak může v prostoru fungovat.






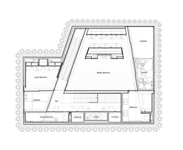
Nejviditelnější částí domu je samotná střecha pokrytá mědí. Z vnitřní strany se skládá z komplexní dřevěné konstrukce, jejíž dvojité zakřivení zakončuje skleněný světlík. Každý kus střešní konstrukce, který vznikl ze smrkového dřeva těženého v Dolomitech, je unikátní a přesně zakřivený.


„Pracovali jsme se světlem a tmou, které stavbě dávají hlavní kontext. Tato kombinace na jednu stranu přináší omezení, ale i příležitosti. Střecha ve tvaru stanu budovu oživuje,“ vysvětlují architekti.


Strop s elegantně zakřivenými ornamenty zahrnuje velký světlík, pod nímž se nachází obývací pokoj. „Otevřená“ střecha, ale i prosklené stěny dodávají celé místnosti pocit lehkosti a propojují interiér s okolní krajinou a městským kontextem.


Měď se objevuje nejen zvenčí, ale i uvnitř. Kuchyně v přízemí doslova září blýskavým povrchem, a poskytuje tak místnosti příjemné teplo. Kontrast mezi chladnými a teplými tóny dřeva, mědi a kararského mramoru dodává na smyslnosti a útulnosti podzemním částem domu. K jedinečné atmosféře pak přispívá i samotná hra světel a stínů.


Když pokračujete dál do podzemí, objevíte další dvě úrovně bydlení. Bezprostředně pod zemí se nacházejí ložnice, v jejichž blízkosti architekti počítali i s kouskem přírody. Vytvořili zde menší otevřenou zahradu, kterou mohou majitelé díky proskleným stěnám pozorovat rovnou z postele nebo přilehlé koupelny. Takže i v tomto podlaží není nouze o dostatek denního světla a svěží zeleně.






V nejnižším podlaží se pak nachází velkorysá plocha s desetimetrovým bazénem a relaxační místností. Denní světlo, procházející střechou, sem taktéž prostupuje a prosvětluje hladinu bazénu. V místech, kde je větší přítmí, se o lepší viditelnost postaralo umělé osvětlení.





Architektům se i přes nepříznivé podmínky podařilo díky netradičnímu řešení vytvořit krásný dům. I když se částečně nachází v podzemí, denní světlo najdete ve všech jeho úrovních a okolní příroda je díky proskleným částem nedílnou součástí samotného interiéru.
Líbí se vám projekty, které mají blízko k přírodě? Pak by vás mohl zajímat také Brazilský dům plný přírodní harmonie nebo Prosklený dům s výhledem na panorama Beskyd.
Jaký je Váš názor?
Související články

V Brazílii vzniklo bydlení plné přírodní harmonie
U Havířova vznikl prosklený dům s výhledy na panorama Beskyd
Byt v Moskvě ožil v japonském stylu: zdobí ho příroda i fazetové dřevo
Dotek přírody uprostřed pulzujícího velkoměsta
Autor:
Přidejte se k Insidecor komunitě...
Insidecor
Insidecor na Instagramu