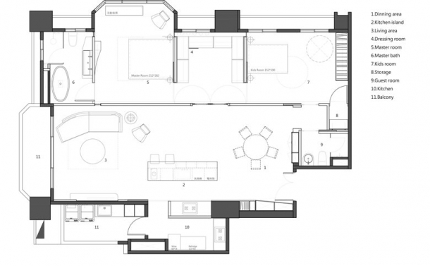
Majitel bytu se po dlouhé době strávené v cizině rozhodl, že se usadí na místě, kde strávil dětství. Okolí řeky Xindian vybral jako místo, kde chce založit domov i pro svoji rodinu. Rekonstrukci bytu o ploše téměř 125 metrů čtverečních dostalo na starost KC Design Studio. Interiér zaujme přívětivou atmosférou i škálou použitých materiálů.

V hlavní společenské místnosti bytu jsou nepřehlédnutelným a velmi výrazným prvkem cihelné klenby. Stavební konstrukce, která se stává dominantou interiéru, mu dodává punc jedinečnosti. Cihly svým odstínem korespondují s ostatními zemitými tóny, které jsou zde použity. Paleta barev od krémové a pískové přes měděnou a hnědou až po černou,se stává charakteristickou pro celý byt.


Ve stylu vybavení interiéru se překvapivě harmonicky prolíná odlišný vkus majitelů. Touha po moderních prvcích, které upřednostňuje muž, a přírodní tradiční prvky, které preferuje žena.



Jídelní stůl je součástí obývacího pokoje a je umístěn volně u vstupu do hlavní společenské místnosti. Světlá výška tří metrů nabízí velkolepý otevřený a vzdušný prostor nejen pro každodenní pohodlné stolování mladé rodiny.

Stejně jako se v interiéru mohou snoubit různé styly, najdeme tu i rozličné materiály na stropech, stěnách a podlahách. Například hlavní obývací prostor a ložnice mají odlišnou podlahovou krytinu. Vizuálního propojení však autoři projektu dosáhli díky tomu, že na stěnách vždy použili totožný materiál.

Kuchyň tvoří centrální prvek hlavního společenského prostoru mladé rodiny. Poměrně výrazná kresba dřeva na vertikálách se doplňuje s barevností použitou na ostrůvku. Černá s měděnými tóny kontrastuje, ale zároveň poutavě opticky přidává prostoru na hloubce.



Intarzovaná podlaha a obklady stěn i stropů odkazují na umění starých mistrů. Dřevěné desky v opakujícím se vzoru dodávají místnostem na výjimečnosti. Nádech minulosti je díky tomu patrný i v této šatně, umístěné mezi ložnicí a dětským pokojem.


Ložnice majitelů je místem, kde se setkává historie se současností. Najdete tu prvky jako intarzie, kazetový strop nebo přiznaný vystupující nosník v kombinaci s moderní stěrkou. Svislý prosklený pruh ve stěně slouží jako doplněk a přirozeně prosvětluje sousední koupelnu.



Koupelna rodičů se celá nese v odstínech chladné šedé. Kamenná mozaika na podlaze volně přechází v horizontální pás na všechny stěny místnosti, a koupelnu tím působivě sjednocuje.

I v dětském pokoji, stejně jako v ložnici rodičů, je výrazná dřevěná intarzovaná podlaha, která je pro tyto dvě místnosti společně s šatnou jednotícím prvkem. Podlaha se rozšiřuje na stěnu a stěna přechází ve strop. Dle slov autorů projektu se tímto způsobem „vytváří prostorová integrace a vizuální napětí.“


V malé koupelně je nepřehlédnutelný terakotový obklad stěny. Tvoří ho trojúhelníkové prvky, které vytvářejí nezvyklou hru světla a stínu. Použití tří různých formátů obkladů stěn působí, díky umírněné barevnosti, velmi vkusně. Neotřelá kombinace materiálů a struktur provází celý interiér tohoto taiwanského bytu a opět dokazuje smysluplnost rekonstrukcí.
Residence Wang
KC Design Studio
Jaký je Váš názor?
Související články

Dva materiály, tři barvy a geometrie - moderní domov pro mladý pár
Dům na Taiwanu má díky variabilnímu osvětlení mnoho tváří
Rodinné bydlení v taiwanském Pingtungu
Autor:
Přidejte se k Insidecor komunitě...
Insidecor
Insidecor na Instagramu