V asijských zemích, kde jsou možnosti bydlení limitované velkým počtem obyvatel, je zcela běžné spokojit se s menším místem pro život. Pro tamní architekty je vždy výzva navrhnout vhodný koncept bydlení, které by bylo moderní, praktické a pro budoucí majitele atraktivní, a přesto na malé ploše. Přesně takový je i byt na Taiwanu, který najdete přímo Taipeii. Pojďte se s námi podívat do domu, jenž má díky osvětlení a vhodně zvoleným úhlům mnoho tváří.


Architekti ze studia LCGA Design měli za cíl vytvořit jednoduché a moderní bydlení pro mladý pár, kde měly hrát hlavní roli detaily. Těmi se nakonec staly zkosené úhly i zajímavé světelné prvky. Celý koncept architekti navrhli v duchu lehkosti, a to nejen díky dostatku přirozeného světla, ale také právě díky různorodému osvětlení.

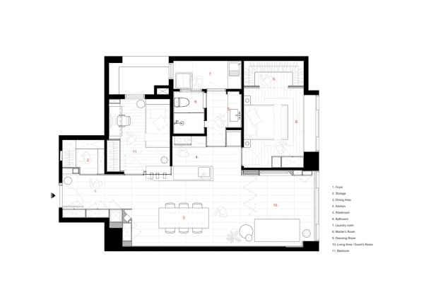
Na ploše 75 metrů čtverečních architekti zvolili praktické rozvržení místností, přičemž některé z pokojů mají rovnou dvojí funkci. Jídelna je zároveň pracovnou a obývací pokoj zase pokojem pro hosty. Stačí vysunout skládací dveře, rozložit pohovku a hosté zde mohou přespat v pohodlí i soukromí.



Jemná paleta barev s různými odstíny šedi, doplněná bílým stropem a béžovou podlahovou dlažbou, která na některých místech přechází až ve zdi, tvoří v kombinaci s teplým tónem osvětlení útulný interiér. Trochu kontrastu přináší do prostoru tmavě šedá rohová skříň, vedoucí od vstupních dveří až do hlavní obytné části. Poskytuje hromadu úložného prostoru.



Vertikální osvětlení, podsvícení skládacích dveří i světla v otevřeném dělícím panelu vytváří různé podoby. „Aplikovali jsme koncept úhlů na mnoho detailů v interiéru, abychom díky odrazům docílili různých nálad světla,“ vysvětlují architekti.



Dominantou a zároveň také centrální částí bytu je betonový kuchyňský ostrůvek, který připomíná skulpturu vytesanou do skály. Ostré geometrické hrany a minimalistická strohost ladí s celkovou atmosférou, kterou se zde snažili architekti navodit.






Z rozkládací pohovky v obývacím pokoji se snadno a rychle vytvoří postel. Hosté tak mají o pohodlný nocleh postaráno. Ložnice majitelů se nachází v přední části bytu a má díky otevřenému dělícímu panelu výhled až do jídelny. Navíc zde najdete i pracovní stůl, takže vzniká další místo pro pracovní koutek.



Architektům se díky světlům podařilo vykouzlit jedinečné prostředí s lehkým industriálním nádechem, originálně řešenými doplňky a elegantní grácií.
Pokud máte rádi industriálně laděné interiéry, pak by se vám mohl líbit také projekt české architektky Kláry Valové Loft F5.04 - industriální byt s houpačkami pro mladé nebo Apartmán v Melbourne, odkud si lze odnést jak zážitky, tak i designové produkty.
Jaký je Váš názor?
Související články

Pražský byt od studia SMLXL oživuje zářivá modrá
Z apartmánu v Melbourne si odnesete zážitky i designové doplňky
Loft F5.04 - industriální byt s houpačkami pro mladé
Long Story Short – ráj nomádů v centru Olomouce
Portugalský hotel Armazém čerpá z industriální krásy bývalého skladu
Autor:
Přidejte se k Insidecor komunitě...
Insidecor
Insidecor na Instagramu