Takový projekt jako Rodinné hřiště od tchajwanského studia HAO Design nevidíme často. Málokdo z nás si totiž dovolí natolik experimentovat se svým domovem, Manželé Stoneovi, kteří mají malé děti, se však byli ochotní odvázat a studiu dali za úkol vytvořit přírodní a otevřený prostor, který bude podporovat kreativitu jejich dcery a přispívat k tomu, že rodina bude trávit svůj čas pohromadě.


Již na začátku projektu se manželé shodli na tom, že nejdůležitější je poskytnout své dceři prostor, kde si bude moci hrát a učit se. Stoneovi jsou velmi otevření, liberální a přírodně orientovaní lidé, kteří chtěli vytvořit kreativní prostředí, jehož součástí bude i kousek přírody v podobě dětských výrobků z větviček, listů a podobně.


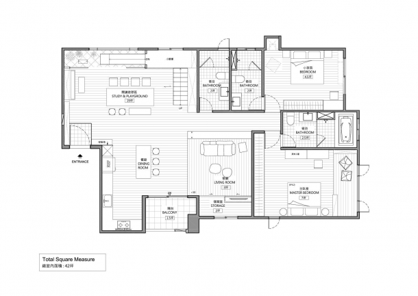
Hlavní částí bytu je společný prostor, jehož součástí je kuchyně, jídelna, obývací pokoj a hravá zóna malé dcerky. Místnost má kolem 60 m2 a tvoří tím téměř polovinu celého 138m2 bytu. Dále v bytě najdeme i dvě prostorné ložnice – jednu pro rodiče, jednu pro dceru, koupelny, spíž a menší balkón, do kterého se vchází z hlavní místnosti.



Po vchodu do bytu nevcházíte jako obvykle do předsíně a obývacího pokoje, ale hned do rozsáhlého společného prostoru, které vás jen vybízí k tomu, aby jste ho využili nějakým nevšedním způsobem. Zde také tráví rodina společně nejvíce času – vaří, jí, relaxuje nebo si hraje. Designeři využili mnoha originálních prvků, kterými prostor ozvláštnili – hned vedle domovních dveří najdeme tabuli, kde si členové rodiny mohou psát navzájem vzkazy nebo si zde může paní domu psát třeba recepty. Celý koncept místnosti je navržen k tomu, aby byl prostor přizpůsobený potřebám rodiny a zároveň byl co nejvíce interaktivní.


Zajímavým prvkem je svítilna „Oblíbená věc“ (v angličtině „Favourite thing“) nad jídelním stolem. Její spodní část je vyrobená z průhledného krytu, do kterého se můžou dávat různé věci, například dětské výrobky.

Kuchyň je sice součástí tohoto prostoru, ale nachází se vpravo ode dveří, kde vytváří přechodný prostor mezi společným a soukromým prostorem. Důkladně promyšlená ukládací místa poskytují dostatek prostoru k uložení ingrediencí. Design kuchyně je sladěný s poličkami v relaxační části a vše dohromady působí velmi pospolitě. Součástí kuchyně je i ostrůvek, nad kterým jsou umístěny visící police, které do bytu přináší industriální nádech. Závěsné rostliny však tento industriální nádech mírní a přináší sem opět kousek přírody.

Nejzajímavější část tohoto projektu však tvoří prostory pro malou dcerku Stoneových. Ne mnoho dětí by se mohlo pyšnit, že doma mají vlastní skluzavku a houpačku, zde tomu tak je. K rohové skluzavce vedou posuvné schody, které se dají zastrčit do stěny, aby nepřekážely. Prostor nad skluzavkou je vlastně takovým malým hradem pro holčičku. Skluzavka vede na verandu, kde najdeme také mnoho rostlin, takže dítě neztratí kontakt s přírodou. Může se také zabavit na příjemné houpačce, která nemusí nutně sloužit jen dětským obyvatelům bytu.




Obývací pokoj je snad nejdecentnější z celého bytu. Skládá se totiž hlavně ze sedacích pytlů, kde si mohou členové domácnosti číst nebo jen tak odpočívat.

Designerům z HAO Design se podařila velmi důležitá věc – vytvořit prostředí, které bude rodinu sbližovat a pomáhat jí v trávení společného volného času tvořivým způsobem. V dnešní době, když se říká, že klasický typ rodiny postupně mizí, je zpráva o takovém projektu velmi osvěžující a inspirativní. Dalo by se říci, že studio HAO Design mělo veliké štěstí, že mělo za klienty lidi otevřené troše netradičnosti a experimentování. Věříme, že se jim to rozhodně vyplatilo. A co si myslíte vy?
Jaký je Váš názor?
Související články
-
Díky této švédské školce budete chtít prožít své dětství znovu
-
Ze starého a přeplněného dvora hravým a kreativním místem pro děti
-
Vztah dětí k přírodě je přínosný, ukazuje školka od italských architektů
-
Japonská školka od Archivision Hirotani připomíná jednu velkou prolézačku
-
Hravý dětský pokoj aneb podporujme dětskou fantazii

Autor:
Přidejte se k Insidecor komunitě...
Insidecor
Insidecor na Instagramu