Architekti ze studia Mario Cucinella Architects se u této italské školky v městečku Guastalla na severu Itálie zaměřili na to, aby se děti již od malička věnovaly přírodě a utvářely si k ní vztah. Design této školky je velmi šetrný k okolnímu prostředí a možná i proto získali architekti za tento projekt v minulém roce ocenění v architektonické soutěži za design. Školka by měla pojmout až 120 dětí do tří let. To by mělo pokrýt nedostatečný počet míst v mateřinkách, který vznikl v květnu 2012, kdy tuto oblast zasáhlo zemětřesení a zničilo dvě bývalé místní školky.




Na celém projektu je jasně patrná snaha co nejvíce propojit venkovní a vnitřní prostor a přivést děti k tomu, aby se co nejvíce pohybovaly venku a vnímaly venkovní prostor okolo nich. Není tedy jen tak, že uvnitř školky najdeme rostoucí stromy pevně zakomponované jako části celku. A i okolní stromy tvoří důležitou část objektu, kde si děti mohou hrát či procházet se.



Dalším důležitým prvkem je energetická soběstačnost školky. Objekt využívá vysoké míry izolačních materiálů, čímž zajišťuje nízké náklady na udržování vnitřní teploty, rovněž využívá pokročilý systém na využití dešťové vody a fotovoltaický systém na výrobu elektřiny, který využívá slunečního záření. Vše je vyrobeno z přírodních materiálů, které zatěžují životní prostředí jen velmi málo. Čili šetrnost a respekt k přírodě nadevše.

Inspiraci v přírodě architekti použili i při vymýšlení interiérového designu. Ačkoliv z venku může školka z podélné části připomínat dlouhou stonožku s mnoha různými články těla, její pohled z boční části spíše připomíná okvětní lístky nějaké květiny.


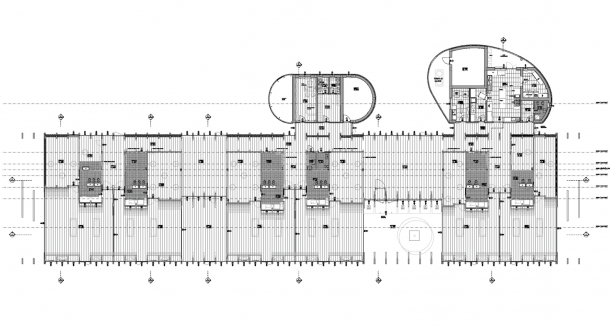
Ale venkovní struktura není zdaleka ta nejzajímavější. Školka uvnitř je rozdělena na tři podobně velké buňky, které jsou mezi sebou odděleny dvorky s otevřenou střechou. Základní kostra je ze dřeva, které je nejen ekologické, ale i vhodné pro udržování tepelné izolace. Místnosti jsou pak často odděleny skleněnými deskami, které opticky zvětšují prostor a umožňují dětem dobře vidět i do vzdálenějších částí školky, kde si mohou třeba zrovna hrát jejich kamarádi. Tvar ležícího čísla osm vyřezaný ze základní dřevěné kostry pak vytváří pohled připomínající ulitu, spirálu či květ.


Dalším důležitým aspektem je hravost, kterou v budově najdeme. Například u bočního obložení místností, které je šikovně přeměněné v menší rampu, na které se děti mohou vyhrát, nebo u laviček u velkých oken. Mimo to jsou u budovy velké dřevěné terasy a velký zelený park.


Výjimkou z poměrné symetričnosti stavby jsou dvě oválné buňky připojené k zadní pravé části školky, které stavbu zvenku ozvláštňují. Jsou také jediné, které zvenku nepoužívají kombinaci dřeva a skla, ale pouze dřeva, přesněji podélných dřevěných příček.

Dřevo je zde přítomné všude: dřevěné jsou podlahy, stropy, základní stavební konstrukce i nábytek. Díky tomu působí interiér pro děti velmi útulně a současně uchovává sounáležitost s přírodou, která je v celé koncepci jasně patrná. Díky kombinaci dřeva a skla je celý objekt velmi světlý a málokde najdeme celkově uzavřené prostory bez pohledu ven. Děti tím mohou být v kontaktu s venkovním prostředím a různě se přizpůsobovat každodenně měnícímu se počasí. Nápadité dřevěné konstrukce mají rovněž opticky zvětšovací efekt: školka působí delší, než ve skutečnosti je.




Architektům z MCA se podařilo vytvořit vzdělávací prostředí pro ty nejmenší, které obsahuje několik zásadních věcí: vztah k přírodě, ekologickou šetrnost a kvalitní design propojený s užitečností. Její promyšlený koncept je navržen přesně tak, aby to vyhovovalo nejen dětem, ale i pedagogickému dozoru – dětem je k dispozici hravé a inspirativní prostředí, učitelům pak prostor, kde mohou pracovat na rozvíjení dětských schopností a využívat jejich fantazie. Jen tak dál!
Jaký je Váš názor?
Související články

Japonská školka od Archivision Hirotani připomíná jednu velkou prolézačku
Krkonošská krajina Petra Hájka
Netradiční koncept De Hogeweyk
Škola Vittra ve Stockholmu
Koncertní hala pro Tyrolský festival od studia Delugan - Meissl
Autor:
Přidejte se k Insidecor komunitě...
Insidecor
Insidecor na Instagramu